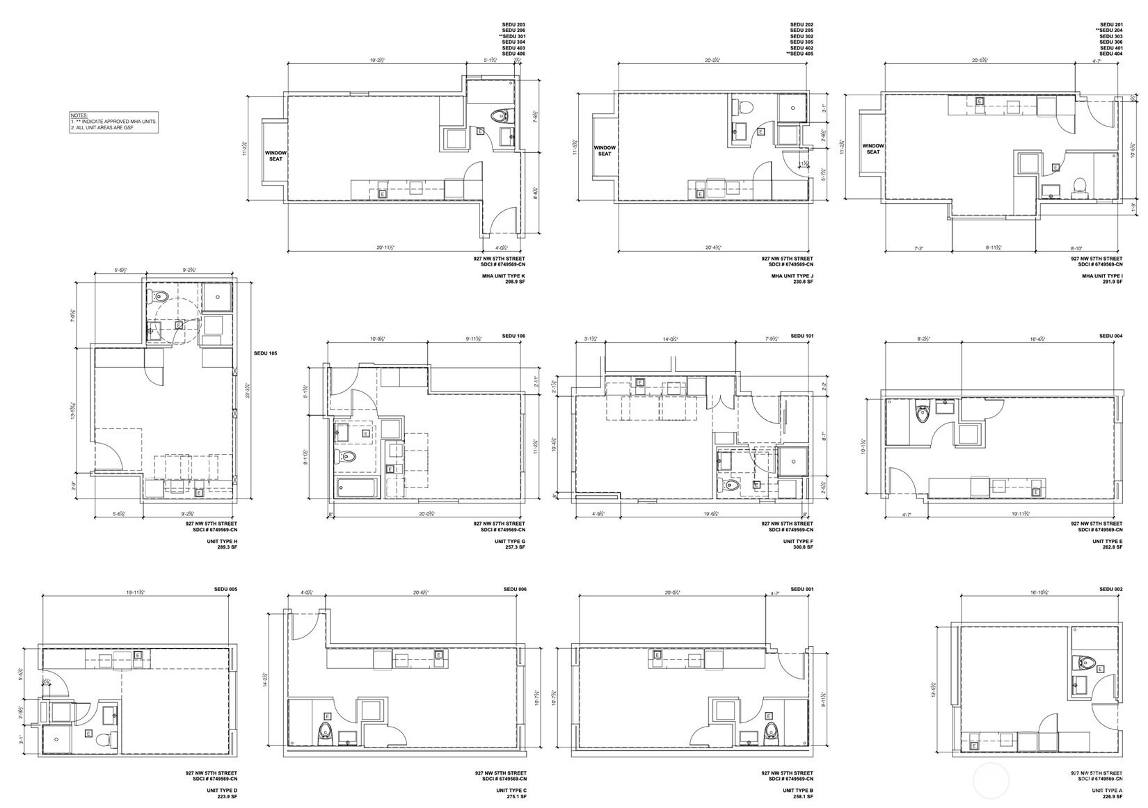
Builder/Investor/Developer Alert! Exceptional opportunity for a fully entitled, permits PAID, multifamily development in one of Seattle’s most desirable rental submarkets. Ballard Urban Village approved 26-unit apartment zoned LR2 (M1). benefits from zero parking requirements, delivering cost savings/improved project feasibility. Approved plans for a 4-story plus basement, Type V-A construction building featuring an efficient micro-unit / SEDU program optimized for strong rent-per-square-foot performance. Unit sizes range approximately 225–330 square feet, each designed to meet or exceed Seattle code requirements for habitable space and storage. Includes indoor bike storage, shared outdoor amenity space, and thoughtfully integrated landscaping. Design Review and all SDCI permit corrections have been completed, with construction documents approved ready to issue. MHA requirements have been satisfied on-site, eliminating future affordability uncertainty. The architectural design features articulated façades, projecting bay windows, durable exterior materials, and residential-scaled massing that integrates seamlessly with the surrounding neighborhood. Situated near transit, major employment centers, restaurants, retail, and everyday amenities, this offering presents a rare opportunity for developers/investors seeking a shovel-ready, low-entitlement-risk apartment project in a high-demand Ballard location. All plans, approvals, and due diligence materials available upon request.
Listing Provided Courtesy of Daniel Sebryakov, Berkshire Hathaway HS NW
General Information
NWM2459242
Land
1
DOM
5000.69 SqFt
0
Multi-F
King
West Woodland
Hamilton Mid
Ballard High
Land
Land
Listing Provided Courtesy of Daniel Sebryakov, Berkshire Hathaway HS NW
Krishna Realty data last checked: Jan 14, 2026 05:53 | Listing last modified Jan 14, 2026 00:32,
Source:
Download our Mobile app
Residence Information
0
40 - Res-Less thn 1 Ac
Features and Utilities
Available
Available
Financial
11753
Cash Out, Conventional, See Remarks
01-13-2026
Comparable Information
1
1
Cash Out, Conventional, See Remarks
$1,400,000
$1,400,000
Jan 14, 2026 00:32
Schools
Elementary : West WoodlandN/ARatings Middle : Hamilton Mid N/ARatings High : Ballard HighN/ARatings
Builder/Investor/Developer Alert! Exceptional opportunity for a fully entitled, permits PAID, multifamily development in one of Seattle’s most desirable rental submarkets. Ballard Urban Village approved 26-unit apartment zoned LR2 (M1). benefits from zero parking requirements, delivering cost savings/improved project feasibility. Approved plans for a 4-story plus basement, Type V-A construction building featuring an efficient micro-unit / SEDU program optimized for strong rent-per-square-foot performance. Unit sizes range approximately 225–330 square feet, each designed to meet or exceed Seattle code requirements for habitable space and storage. Includes indoor bike storage, shared outdoor amenity space, and thoughtfully integrated landscaping. Design Review and all SDCI permit corrections have been completed, with construction documents approved ready to issue. MHA requirements have been satisfied on-site, eliminating future affordability uncertainty. The architectural design features articulated façades, projecting bay windows, durable exterior materials, and residential-scaled massing that integrates seamlessly with the surrounding neighborhood. Situated near transit, major employment centers, restaurants, retail, and everyday amenities, this offering presents a rare opportunity for developers/investors seeking a shovel-ready, low-entitlement-risk apartment project in a high-demand Ballard location. All plans, approvals, and due diligence materials available upon request.