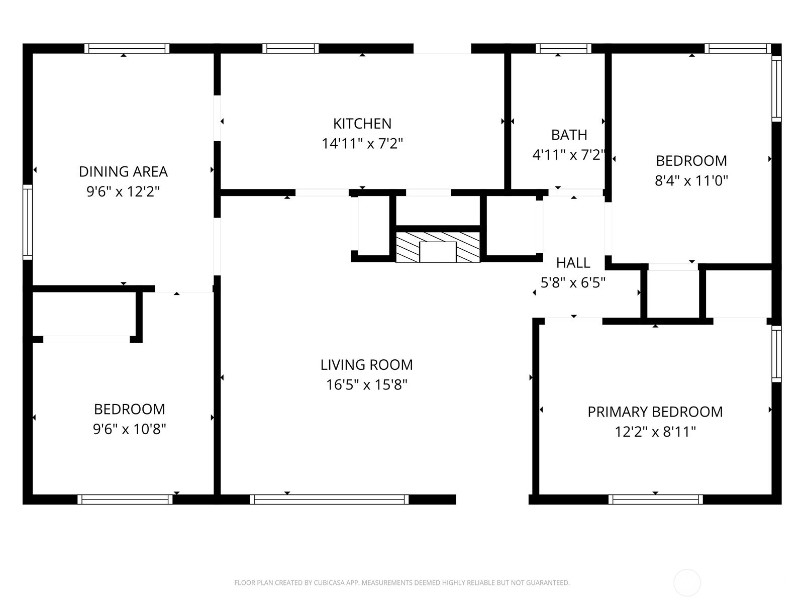
Discover the perfect blend of vintage character and modern outdoor living in this lovingly maintained 1942 home. The thoughtful layout & abundant natural light create an atmosphere that feels significantly more spacious than the square footage might indicate. Gleaming original hardwood floors run throughout the main living areas, preserved with care to maintain the home’s historic soul. Three well-proportioned bedrooms offer versatility for a home office, guest room, or hobbies. Step into the back yard to reveal a generous 6,000-square-foot lot, complete with amenities designed for both relaxation & utility. A recently-renovated deck overlooks the lush, oversized backyard—ideal for a sunny BBQ or a twilight deck party under twinkling bistro lights. A dedicated dog run ensures a safe space for your four-legged friend, or consider converting to a covered patio. The detached garage features ample room for your car + extra storage or a spacious workshop perfect for DIY enthusiasts. Located in a coveted pocket of South Seattle, convenience is unmatched: enjoy a weekend stroll through nearby Seward Park, or explore the unique cuisine offerings of the Rainier Valley. Proximity to two light rail stops & multiple bus routes provides easy access to the hustle and bustle of downtown. This is more than a house; it’s a move-in-ready retreat with space to breathe & functional room to grow. Welcome home!
Listing Provided Courtesy of Jayne C. Williamson, Windermere RE Greenwood
General Information
NWM2511357
Single Family Residence
0
DOM
3
5998.21 SqFt
1
960
1942
King
Emerson
Aki Kurose
Rainier Beach H
Residential
Single Family Residence
Listing Provided Courtesy of Jayne C. Williamson, Windermere RE Greenwood
Krishna Realty data last checked: Apr 23, 2026 11:41 | Listing last modified Apr 23, 2026 15:56,
Source:
Discover the perfect blend of vintage character and modern outdoor living in this lovingly maintained 1942 home. The thoughtful layout & abundant natural light create an atmosphere that feels significantly more spacious than the square footage might indicate. Gleaming original hardwood floors run throughout the main living areas, preserved with care to maintain the home’s historic soul. Three well-proportioned bedrooms offer versatility for a home office, guest room, or hobbies. Step into the back yard to reveal a generous 6,000-square-foot lot, complete with amenities designed for both relaxation & utility. A recently-renovated deck overlooks the lush, oversized backyard—ideal for a sunny BBQ or a twilight deck party under twinkling bistro lights. A dedicated dog run ensures a safe space for your four-legged friend, or consider converting to a covered patio. The detached garage features ample room for your car + extra storage or a spacious workshop perfect for DIY enthusiasts. Located in a coveted pocket of South Seattle, convenience is unmatched: enjoy a weekend stroll through nearby Seward Park, or explore the unique cuisine offerings of the Rainier Valley. Proximity to two light rail stops & multiple bus routes provides easy access to the hustle and bustle of downtown. This is more than a house; it’s a move-in-ready retreat with space to breathe & functional room to grow. Welcome home!