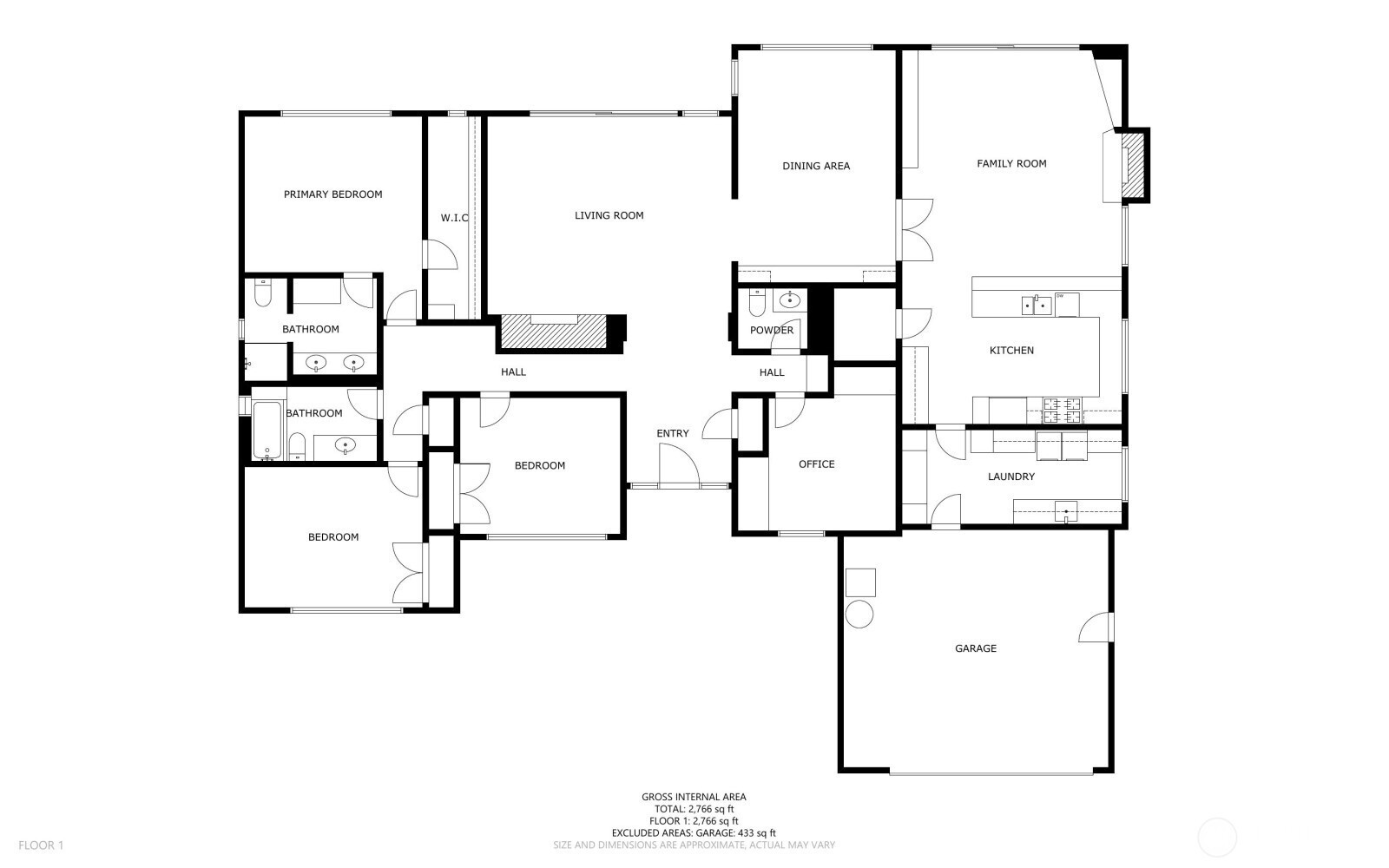
Distinctive Rambler on the Sand Point Country Club fairway was fully renovated in 2001, with planning and design by David Olson Architects. The quality found in this home is rare and the floor plan exceptional, incorporating a Living, Dining, and Family Room arranged enfilade, promoting natural sightlines and a gentle flow for ease of gathering. The rooms where you’ll live and entertain command the golf-course vistas, seamlessly extending your sense of space and privacy. Sleeping rooms inhabit the North wing, with two Bedrooms sharing a hall Bath, and the Primary with a walk-in-closet and en-suite, presenting dual sinks, artisan tile, and a towel warmer. The Powder and Den, also a possible guest area, are apart from the hub, recessed down a hall off the Entry. Outdoors, mature plantings intertwine through the courtyard and wind around back, where a bluestone patio invites you to stay a while. Irrigation for easy care! Fine finishes, including European fixtures in two Baths, extensive use of wood that adds warmth and depth to every room, natural surfaces, and light fixtures that are as much art as craft. Envy-worthy Kitchen with walk-in pantry, Sub-Zero fridge and Viking range will elevate your culinary pursuits. A true Laundry Room connects to the two-car Garage. Turnkey, with new and updated systems and a location that can’t be replicated. Restaurants, arts, culture, groceries, sporting opportunities, world class learning, lakes, and shopping - all within reach!
Listing Provided Courtesy of Joanna Dooley, John L. Scott, Inc.
General Information
NWM2510092
Single Family Residence
0
DOM
3
7200.47 SqFt
1.5
2670
1953
King
View Ridge
Eckstein Mid
Roosevelt High
Residential
Single Family Residence
Listing Provided Courtesy of Joanna Dooley, John L. Scott, Inc.
Krishna Realty data last checked: Apr 23, 2026 13:03 | Listing last modified Apr 23, 2026 18:56,
Source:
Distinctive Rambler on the Sand Point Country Club fairway was fully renovated in 2001, with planning and design by David Olson Architects. The quality found in this home is rare and the floor plan exceptional, incorporating a Living, Dining, and Family Room arranged enfilade, promoting natural sightlines and a gentle flow for ease of gathering. The rooms where you’ll live and entertain command the golf-course vistas, seamlessly extending your sense of space and privacy. Sleeping rooms inhabit the North wing, with two Bedrooms sharing a hall Bath, and the Primary with a walk-in-closet and en-suite, presenting dual sinks, artisan tile, and a towel warmer. The Powder and Den, also a possible guest area, are apart from the hub, recessed down a hall off the Entry. Outdoors, mature plantings intertwine through the courtyard and wind around back, where a bluestone patio invites you to stay a while. Irrigation for easy care! Fine finishes, including European fixtures in two Baths, extensive use of wood that adds warmth and depth to every room, natural surfaces, and light fixtures that are as much art as craft. Envy-worthy Kitchen with walk-in pantry, Sub-Zero fridge and Viking range will elevate your culinary pursuits. A true Laundry Room connects to the two-car Garage. Turnkey, with new and updated systems and a location that can’t be replicated. Restaurants, arts, culture, groceries, sporting opportunities, world class learning, lakes, and shopping - all within reach!