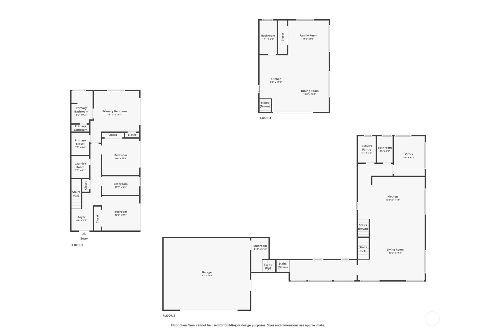
Luxury living in the heart of Greenwood. This 4 bed, 3 bath home is well thought out w/so many added amenities to make life easier, enjoyable & luxurious. When you enter you feel at home. The large main floor bedrooms give an abundance of space to relax & recharge. The 2nd floor offers an open floor plan w/the beautifully done kitchen, custom island & living space. High end appliance & so much cabinet space, but don’t forget about the butler’s pantry & all it has to offer. Upstairs you will find a kitchenette, another living space, beautiful deck & more. Each floor has the beauty of natural light & high-end finishes. Come check out every detail that makes this house the perfect home.
Listing Provided Courtesy of Ryan Gardner, KW Everett
General Information
NWM2465324
Condominium
112
DOM
4
8076.02 SqFt
3
2747
2022
King
Viewlands
Buyer To Verify
Ingraham High
Residential
Condominium
Listing Provided Courtesy of Ryan Gardner, KW Everett
Krishna Realty data last checked: Jan 09, 2026 18:56 | Listing last modified Jan 09, 2026 13:01,
Source:
Download our Mobile app
Residence Information
2747
4
3
0
3
Composition
34 - Condo (3 Levels)
2022
Features and Utilities
Dishwasher(s), Refrigerator(s), Stove(s)/Range(s)
Cooking-Electric, Dryer-Electric, Washer
Cement/Concrete
Financial
11026
Cash Out, Conventional, FHA, VA Loan
01-08-2026
Comparable Information
112
112
Cash Out, Conventional, FHA, VA Loan
$1,443,050
$1,443,050
Jan 09, 2026 13:01
Schools
Elementary : ViewlandsN/ARatings Middle : Buyer To Verify N/ARatings High : Ingraham HighN/ARatings
Luxury living in the heart of Greenwood. This 4 bed, 3 bath home is well thought out w/so many added amenities to make life easier, enjoyable & luxurious. When you enter you feel at home. The large main floor bedrooms give an abundance of space to relax & recharge. The 2nd floor offers an open floor plan w/the beautifully done kitchen, custom island & living space. High end appliance & so much cabinet space, but don’t forget about the butler’s pantry & all it has to offer. Upstairs you will find a kitchenette, another living space, beautiful deck & more. Each floor has the beauty of natural light & high-end finishes. Come check out every detail that makes this house the perfect home.