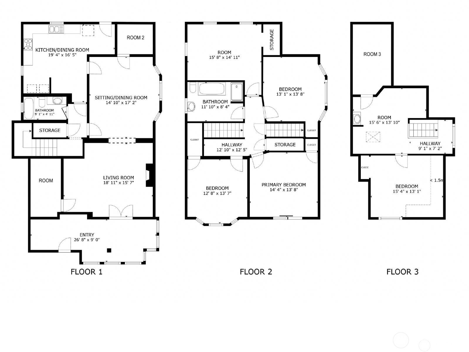
Grand Craftsman duplex in the heart of Capitol Hill offering exceptional flexibility: an expansive primary residence paired with an income-producing second unit. The primary residence spans three stories with six bedrooms and downtown views, providing substantial scale and livability for an owner-occupant or long-term tenant. The second unit is a separate, fully equipped studio, offering privacy and in-place income. Fix and flip, buy and hold as a full rental investment, live in one unit as an owner-occupant with supplemental rental income, or occupy the entire property to create space for guests or intergenerational living. The primary residence is currently tenant-occupied on a month-to-month basis, creating near-term flexibility for a qualified buyer. Extensive unfinished basement square footage presents an opportunity to expand rentable area or enhance owner use, subject to the buyer’s plans. Situated on a 4,311 SF corner lot with alley access and off-street parking for two vehicles, the property is zoned LR3 and includes near shovel-ready plans by Hybrid Architecture for four townhomes with MILs and one single-family residence with an ADU, providing a clear redevelopment alternative for a developer. Property tours are available to qualified buyers by appointment, with interior access coordinated to respect existing tenancy. A high-caliber Capitol Hill property for buyers seeking immediate livability, stable income, and long-term flexibility.
Listing Provided Courtesy of Matt Goyer, Urban Living
General Information
NWM2482102
Multi Family
9
DOM
4312.44 SqFt
3830
1904
Multi-F
King
Lowell
Meany Mid
Garfield High
Residential Incom
Multi Family
Listing Provided Courtesy of Matt Goyer, Urban Living
Krishna Realty data last checked: Mar 16, 2026 08:36 | Listing last modified Feb 27, 2026 18:54,
Source:
Grand Craftsman duplex in the heart of Capitol Hill offering exceptional flexibility: an expansive primary residence paired with an income-producing second unit. The primary residence spans three stories with six bedrooms and downtown views, providing substantial scale and livability for an owner-occupant or long-term tenant. The second unit is a separate, fully equipped studio, offering privacy and in-place income. Fix and flip, buy and hold as a full rental investment, live in one unit as an owner-occupant with supplemental rental income, or occupy the entire property to create space for guests or intergenerational living. The primary residence is currently tenant-occupied on a month-to-month basis, creating near-term flexibility for a qualified buyer. Extensive unfinished basement square footage presents an opportunity to expand rentable area or enhance owner use, subject to the buyer’s plans. Situated on a 4,311 SF corner lot with alley access and off-street parking for two vehicles, the property is zoned LR3 and includes near shovel-ready plans by Hybrid Architecture for four townhomes with MILs and one single-family residence with an ADU, providing a clear redevelopment alternative for a developer. Property tours are available to qualified buyers by appointment, with interior access coordinated to respect existing tenancy. A high-caliber Capitol Hill property for buyers seeking immediate livability, stable income, and long-term flexibility.