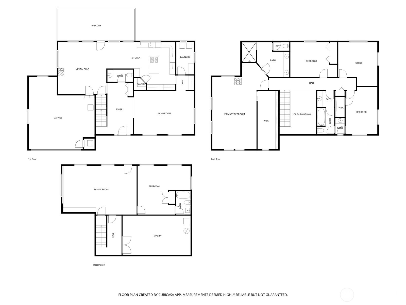
Find peace and serenity in this stunning Carnation home. Set on 5 beautiful acres, this 4,540 sqft home offers space, light, and Northwest beauty at every turn. Featuring 4 bedrooms (Plus an Office) and 3.5 baths, each room is filled with natural light from expansive windows, and vaulted ceilings. A grand foyer welcomes you with warm wood floors and an elegant wood banister, while the living room is bathed in sunlight. The oversized kitchen boasts Cambria counter tops, a brand new double oven, and opens seamlessly to a generous dining area. The thoughtful layout of the home lets you host large gathers and the patio space creates a unique indoor-outdoor entertainment space. The spacious primary suite easily accommodates a king bed and sitting area, complete with a cozy stove, large walk-in closet, and private ensuite with dual sinks and a walk-in shower. The finished lower level offers a massive bonus space ideal for a library, game room, or second living room, featuring a fireplace and bookshelves, plus a private bedroom with an en-suite. With a separate exterior entrance, the basement offers ADU potential. Don't forget about the large two-car garage (new garage door) & ample storage, an indoor storage room perfect for a workshop or home gym, and plentiful extra parking. The meticulously maintained grounds include a fully fenced pet area, a charming front-yard fish pond, and a peaceful creek. Call this peaceful home your own. Buyer walked, can't build permanent fence.
Listing Provided Courtesy of Jordan Coleman, Skyline Properties, Inc.
General Information
NWM2500476
Single Family Residence
55
DOM
4
5.03 acres
2.5
4540
2001
King
Buyer To Verify
Buyer To Verify
Buyer To Verify
Residential
Single Family Residence
Listing Provided Courtesy of Jordan Coleman, Skyline Properties, Inc.
Krishna Realty data last checked: Apr 01, 2026 01:07 | Listing last modified Mar 31, 2026 22:45,
Source:
Find peace and serenity in this stunning Carnation home. Set on 5 beautiful acres, this 4,540 sqft home offers space, light, and Northwest beauty at every turn. Featuring 4 bedrooms (Plus an Office) and 3.5 baths, each room is filled with natural light from expansive windows, and vaulted ceilings. A grand foyer welcomes you with warm wood floors and an elegant wood banister, while the living room is bathed in sunlight. The oversized kitchen boasts Cambria counter tops, a brand new double oven, and opens seamlessly to a generous dining area. The thoughtful layout of the home lets you host large gathers and the patio space creates a unique indoor-outdoor entertainment space. The spacious primary suite easily accommodates a king bed and sitting area, complete with a cozy stove, large walk-in closet, and private ensuite with dual sinks and a walk-in shower. The finished lower level offers a massive bonus space ideal for a library, game room, or second living room, featuring a fireplace and bookshelves, plus a private bedroom with an en-suite. With a separate exterior entrance, the basement offers ADU potential. Don't forget about the large two-car garage (new garage door) & ample storage, an indoor storage room perfect for a workshop or home gym, and plentiful extra parking. The meticulously maintained grounds include a fully fenced pet area, a charming front-yard fish pond, and a peaceful creek. Call this peaceful home your own. Buyer walked, can't build permanent fence.