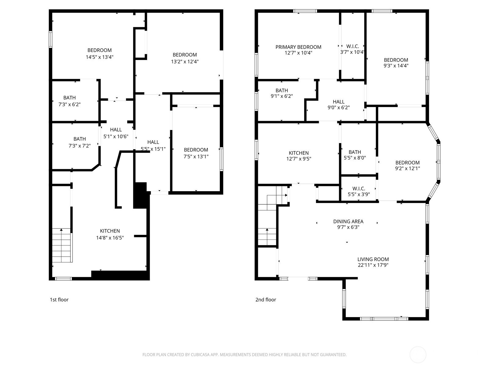
Welcome to a rare Ballard opportunity—where newly remodeled interiors, flexible living, and future potential come together. This early 20th-century Craftsman offers over 3,200 sq ft of refreshed living space, thoughtfully updated for modern comfort while maintaining its timeless appeal. The kitchen features newer appliances, making everyday living effortless. Designed with versatility in mind, the home features two separate entrances and an income-ready layout. The upper level includes its own private entrance, while the lower level offers a fully self-contained suite with a kitchen—live in one unit while generating income from the remaining space through Airbnb and short-term rentals-offering the potential to live nearly mortgage-free. The backyard also offers additional development potential. LR1 zoning provides strong opportunities for future redevelopment and value growth. (Buyer to verify) Enjoy elevated westerly views toward Magnolia and stunning sunsets from the upper floors. All just steps from Ballard’s best coffee, dining, and parks—this is more than a home, it’s a lifestyle and an investment.
Listing Provided Courtesy of Jocelyn Tu, Best Choice Network LLC
General Information
NWM2494994
Multi Family
30
DOM
5000.69 SqFt
3281
1928
Multi-F
King
West Woodland
Hamilton Mid
Ballard High
Residential Incom
Multi Family
Listing Provided Courtesy of Jocelyn Tu, Best Choice Network LLC
Krishna Realty data last checked: Apr 29, 2026 15:43 | Listing last modified Apr 18, 2026 15:52,
Source:
Download our Mobile app
Residence Information
3281
See Remarks
1,
52 - Duplex
1928
Poured Concrete
Features and Utilities
See Remarks
Public
Sewer Connected
1000
Financial
11035.66
Cash, Conventional
03-19-2026
Comparable Information
30
30
Cash, Conventional
$1,695,000
$1,695,000
Apr 18, 2026 15:52
Schools
Elementary : West WoodlandN/ARatings Middle : Hamilton Mid N/ARatings High : Ballard HighN/ARatings
Welcome to a rare Ballard opportunity—where newly remodeled interiors, flexible living, and future potential come together. This early 20th-century Craftsman offers over 3,200 sq ft of refreshed living space, thoughtfully updated for modern comfort while maintaining its timeless appeal. The kitchen features newer appliances, making everyday living effortless. Designed with versatility in mind, the home features two separate entrances and an income-ready layout. The upper level includes its own private entrance, while the lower level offers a fully self-contained suite with a kitchen—live in one unit while generating income from the remaining space through Airbnb and short-term rentals-offering the potential to live nearly mortgage-free. The backyard also offers additional development potential. LR1 zoning provides strong opportunities for future redevelopment and value growth. (Buyer to verify) Enjoy elevated westerly views toward Magnolia and stunning sunsets from the upper floors. All just steps from Ballard’s best coffee, dining, and parks—this is more than a home, it’s a lifestyle and an investment.