Seattle, WA 98105
Bed
Bath
1561 SqFt
111 DOM
Built: 2023
$949,900
$949900
Bed
Bath
1561 SqFt
111 DOM
Built: 2023
Principal Broker
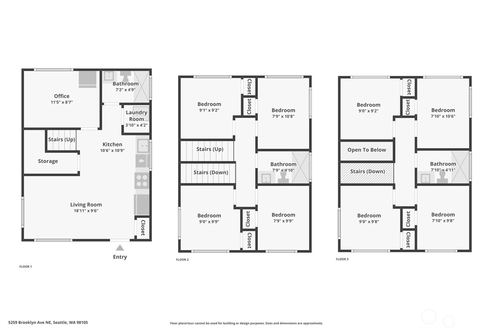
(503) 893-88748-bedroom, 3-bath UW townhouse near campus, surrounded by coffee shops, restaurants, and close to the light rail station and multiple bus stops, with a Walk Score of 98. The main floor features a modern kitchen with stainless steel appliances, ample cabinetry, and a pantry that opens to the living area, plus durable LVP flooring, a dedicated study room, an additional refrigerator, a washer/dryer, and a full bathroom. Upstairs, two levels each offer 4 bedrooms and 1 bathroom. Located in one of Seattle’s most sought-after rental markets, this property presents a rare opportunity to own a high-demand investment near UW.
Listing Provided Courtesy of Torrey Morales, Real Property Associates
NWM2474868
Multi Family
111 DOM
1389.56 SqFt
1561
2023
King
Buyer To Verify
Buyer To Verify
Buyer To Verify
Residential Incom
Multi Family
Listing Provided Courtesy of Torrey Morales, Real Property Associates
Krishna Realty data last checked: Feb 22, 2026 01:04 | Listing last modified Jan 29, 2026 23:18,
Source:
Download our Mobile app
1561
Composition
55 - 5-9 Units
2023
Poured Concrete
Wood Products
Public
Sewer Connected
0
8455.77
Cash Out, Conventional
01-29-2026
111
111
Cash Out, Conventional
$949,900
$949,900
Jan 29, 2026 23:18
Listing courtesy of Real Property Associates.
The content relating to real estate for sale on this site comes in part from the IDX program of the NWMLS of Seattle, Washington.
Real Estate listings held by brokerage firms other than this firm are marked with the NWMLS logo, and
detailed information about these properties include the name of the listing's broker.
Listing content is copyright © 2026 NWMLS of Seattle, Washington.
All information provided is deemed reliable but is not guaranteed and should be independently verified.
Krishna Realty data last checked: Feb 22, 2026 01:04 | Listing last modified Jan 29, 2026 23:18.
Some properties which appear for sale on this web site may subsequently have sold or may no longer be available.
Principal Broker
(503) 893-88748-bedroom, 3-bath UW townhouse near campus, surrounded by coffee shops, restaurants, and close to the light rail station and multiple bus stops, with a Walk Score of 98. The main floor features a modern kitchen with stainless steel appliances, ample cabinetry, and a pantry that opens to the living area, plus durable LVP flooring, a dedicated study room, an additional refrigerator, a washer/dryer, and a full bathroom. Upstairs, two levels each offer 4 bedrooms and 1 bathroom. Located in one of Seattle’s most sought-after rental markets, this property presents a rare opportunity to own a high-demand investment near UW.
Download our Mobile app