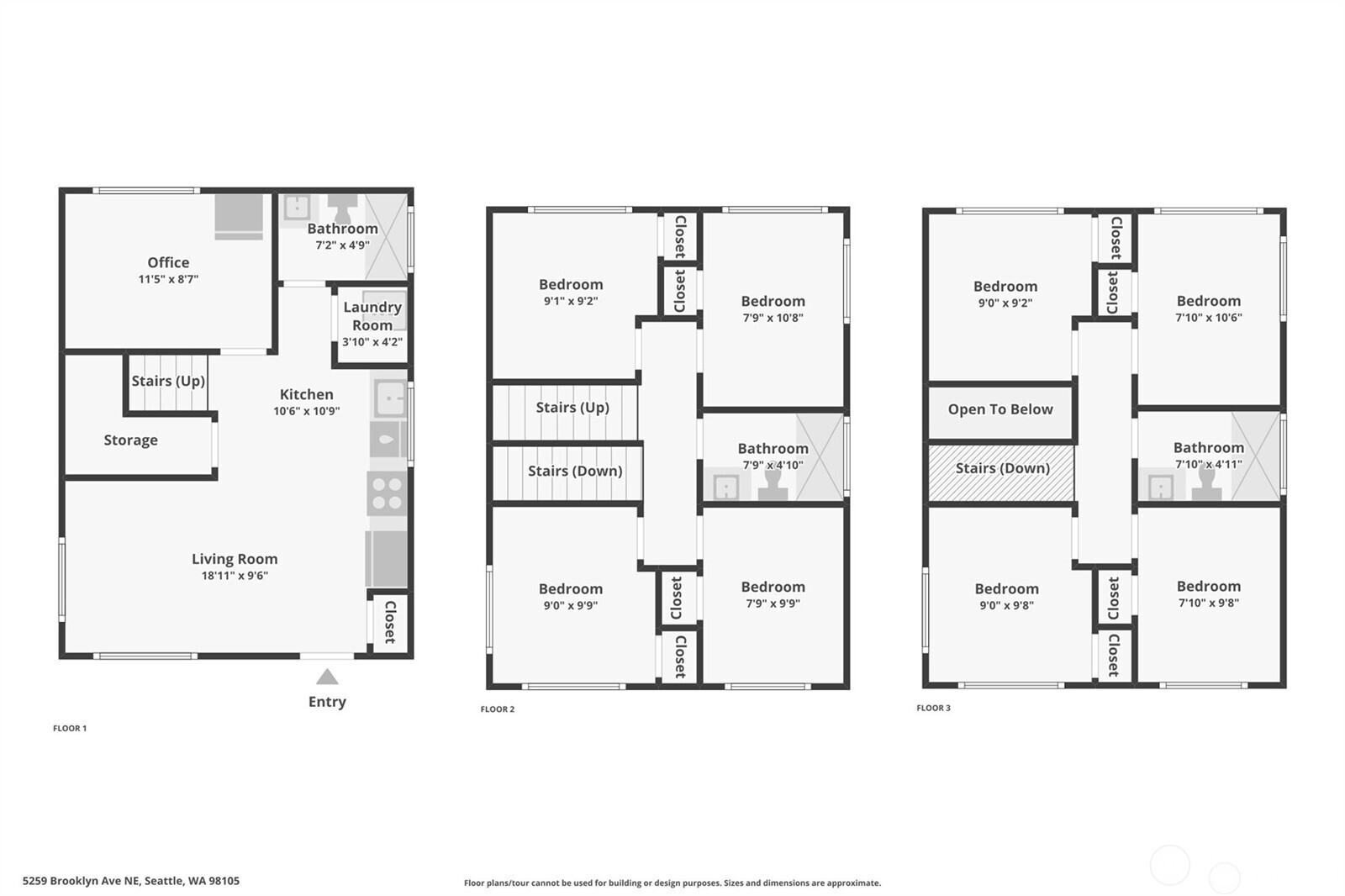
8-bedroom, 3-bath UW townhouse near campus, surrounded by coffee shops, restaurants, and close to the light rail station and multiple bus stops, with a Walk Score of 98. The main floor features a modern kitchen with stainless steel appliances, ample cabinetry, and a pantry that opens to the living area, plus durable LVP flooring, a dedicated study room, an additional refrigerator, a washer/dryer, and a full bathroom. Upstairs, two levels each offer 4 bedrooms and 1 bathroom. Located in one of Seattle’s most sought-after rental markets, this property presents a rare opportunity to own a high-demand investment near UW.
Listing Provided Courtesy of Torrey Morales, Real Property Associates
General Information
NWM2502509
Multi Family
4
DOM
1446.19 SqFt
1561
2022
Multi-F
King
Buyer To Verify
Buyer To Verify
Buyer To Verify
Residential Incom
Multi Family
Listing Provided Courtesy of Torrey Morales, Real Property Associates
Krishna Realty data last checked: Apr 24, 2026 13:06 | Listing last modified Apr 06, 2026 17:39,
Source:
Download our Mobile app
Residence Information
1561
Composition
55 - 5-9 Units
2022
Poured Concrete
Features and Utilities
Wood Products
Public
Sewer Connected
0
Financial
8007.01
Cash, Conventional
04-02-2026
Comparable Information
4
4
Cash, Conventional
$900,000
$900,000
Apr 06, 2026 17:39
Schools
Elementary : Buyer To VerifyN/ARatings Middle : Buyer To Verify N/ARatings High : Buyer To VerifyN/ARatings
8-bedroom, 3-bath UW townhouse near campus, surrounded by coffee shops, restaurants, and close to the light rail station and multiple bus stops, with a Walk Score of 98. The main floor features a modern kitchen with stainless steel appliances, ample cabinetry, and a pantry that opens to the living area, plus durable LVP flooring, a dedicated study room, an additional refrigerator, a washer/dryer, and a full bathroom. Upstairs, two levels each offer 4 bedrooms and 1 bathroom. Located in one of Seattle’s most sought-after rental markets, this property presents a rare opportunity to own a high-demand investment near UW.