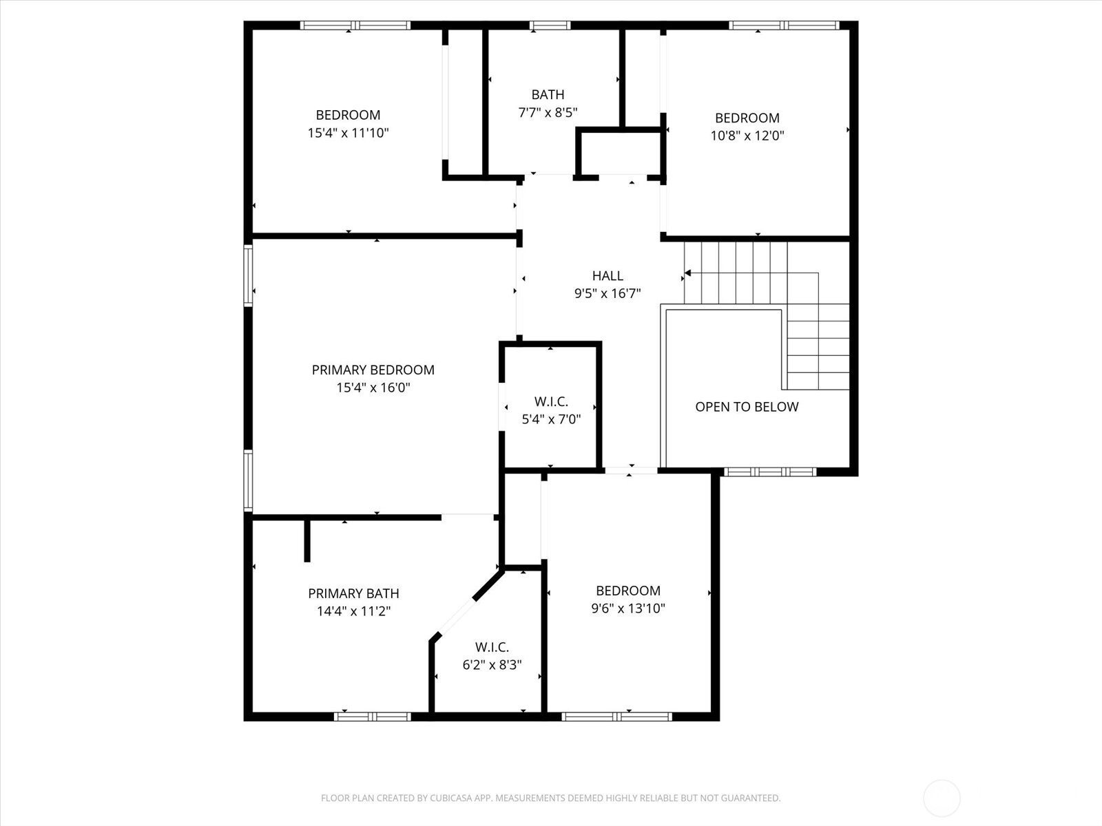
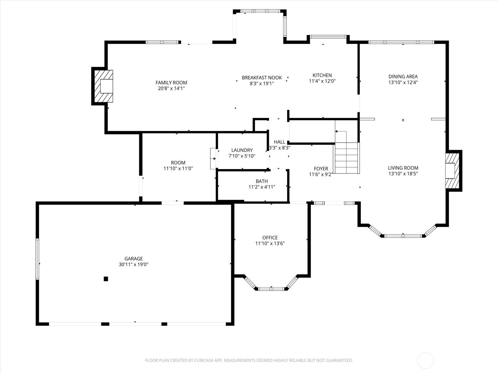
Welcome to Rainbow Lake Ranch, one of the Eastside's most treasured private enclaves, set within the highly sought-after Issaquah SD. Nestled among luxury estate homes; This exceptional property sits on an expansive 27,915 sq ft level lot, offering a serene park-like setting w/lush mature landscaping & unmatched privacy. This elegant traditional 2-story home, features 2,920 sq ft, 4 bedrooms plus a den, & 2.75 baths. Soaring vaulted living & dining spaces are complemented by gleaming hardwoods throughout the main level. The chef's kitchen shines w/a gas cooktop, granite countertops, & generous cabinet space; designed for both everyday living & effortless entertaining. The luxurious primary suite offers dual walk-in closets & a spa-inspired bath, while freshly remodeled bathrooms, a newly added main-floor walk-in shower, & thoughtfully updated interiors create a refined, move-in-ready experience. Major improvements include a 2025 furnace, A/C, 2018 water heater, & a 2020 Presidential architectural roof. Washer & dryer convey. Designed for elevated outdoor living, enjoy a spacious main deck plus a second deck overlooking the expansive backyard, with a private trail leading to the community park featuring a duck pond & sports courts. A 3-car garage & convenient access to Issaquah & I-90 complete this exceptional offering. A rare opportunity to own in one of Sammamish's most sought-after communities w/top-ranked schools, nature at your doorstep, & every major system already done.
Listing Provided Courtesy of Morgan Reick, Real Broker LLC
General Information
NWM2511468
Single Family Residence
0
DOM
4
0.64 acres
3
2920
1989
King
Sunny Hills Ele
Pacific Cascade
Issaquah High
Residential
Single Family Residence
Listing Provided Courtesy of Morgan Reick, Real Broker LLC
Krishna Realty data last checked: Apr 23, 2026 21:13 | Listing last modified Apr 23, 2026 23:37,
Source:
Welcome to Rainbow Lake Ranch, one of the Eastside's most treasured private enclaves, set within the highly sought-after Issaquah SD. Nestled among luxury estate homes; This exceptional property sits on an expansive 27,915 sq ft level lot, offering a serene park-like setting w/lush mature landscaping & unmatched privacy. This elegant traditional 2-story home, features 2,920 sq ft, 4 bedrooms plus a den, & 2.75 baths. Soaring vaulted living & dining spaces are complemented by gleaming hardwoods throughout the main level. The chef's kitchen shines w/a gas cooktop, granite countertops, & generous cabinet space; designed for both everyday living & effortless entertaining. The luxurious primary suite offers dual walk-in closets & a spa-inspired bath, while freshly remodeled bathrooms, a newly added main-floor walk-in shower, & thoughtfully updated interiors create a refined, move-in-ready experience. Major improvements include a 2025 furnace, A/C, 2018 water heater, & a 2020 Presidential architectural roof. Washer & dryer convey. Designed for elevated outdoor living, enjoy a spacious main deck plus a second deck overlooking the expansive backyard, with a private trail leading to the community park featuring a duck pond & sports courts. A 3-car garage & convenient access to Issaquah & I-90 complete this exceptional offering. A rare opportunity to own in one of Sammamish's most sought-after communities w/top-ranked schools, nature at your doorstep, & every major system already done.