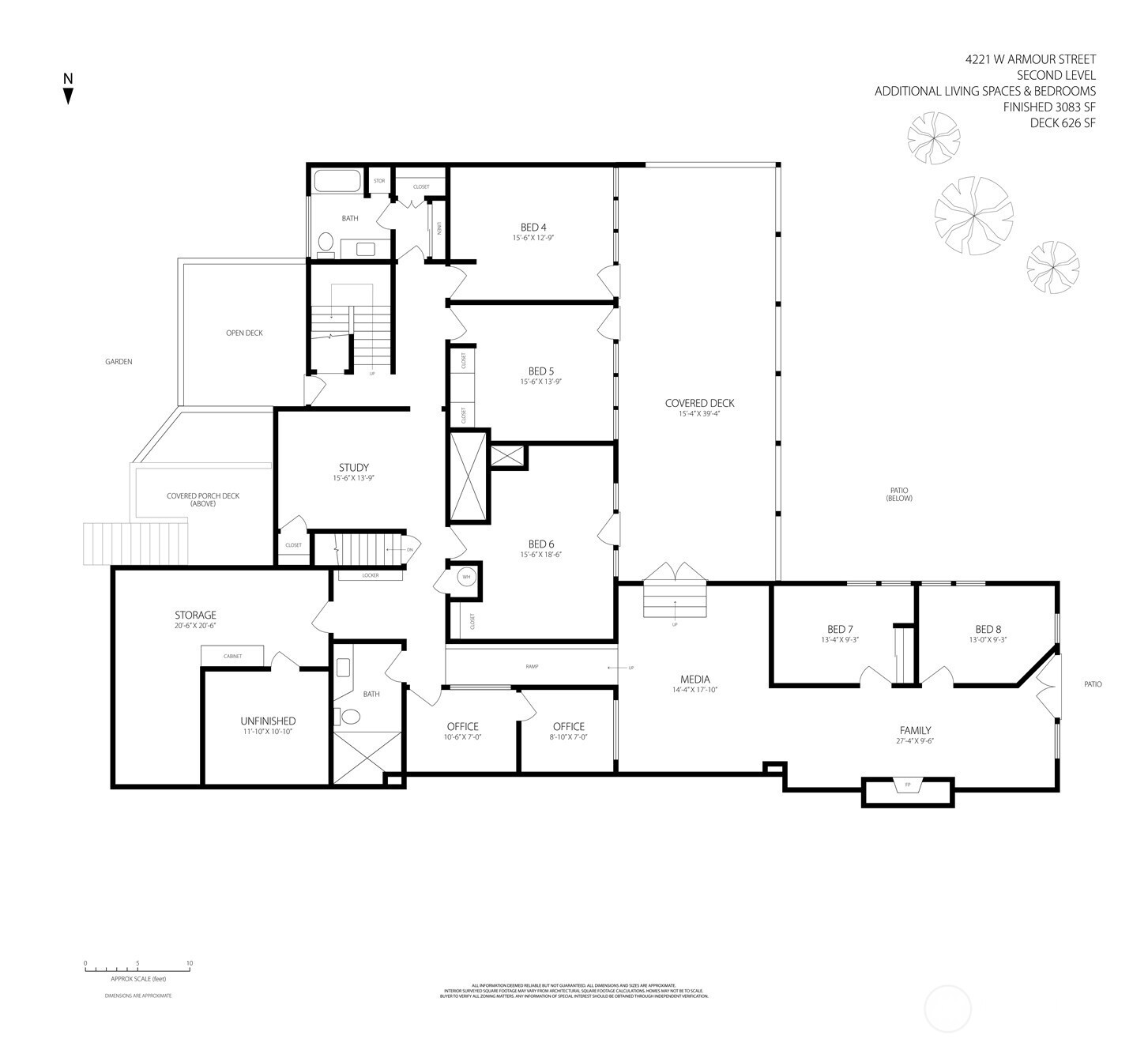
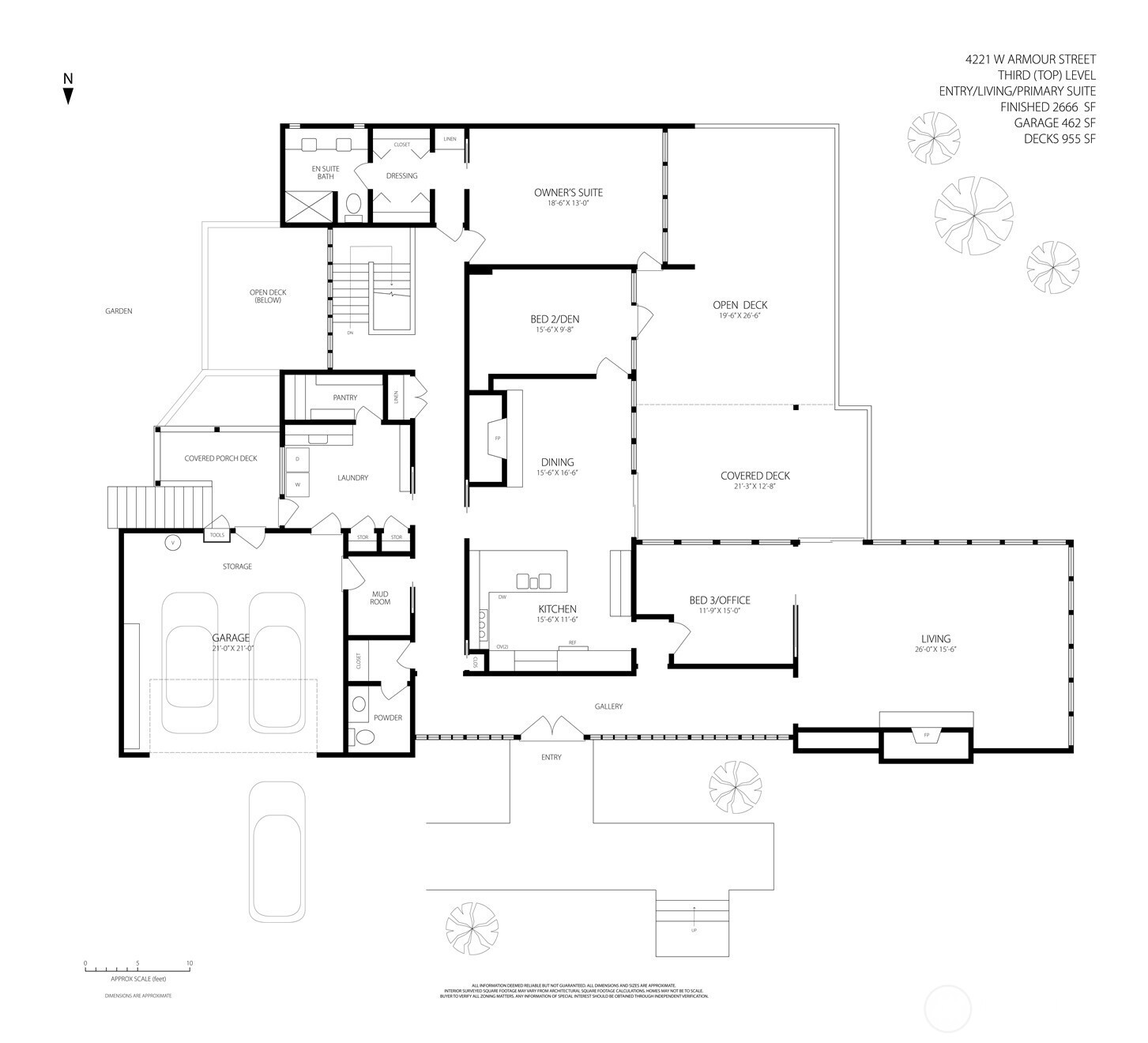
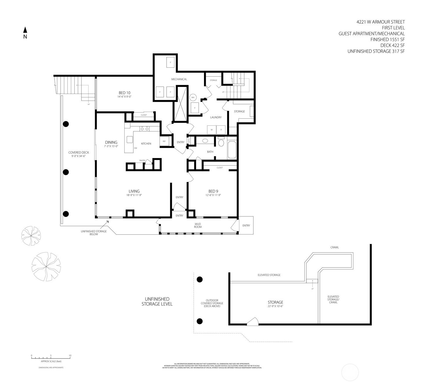
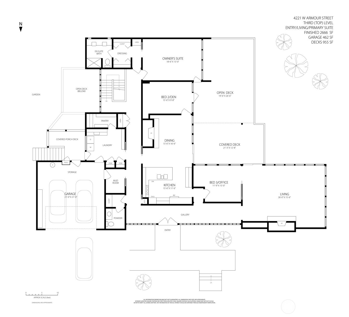
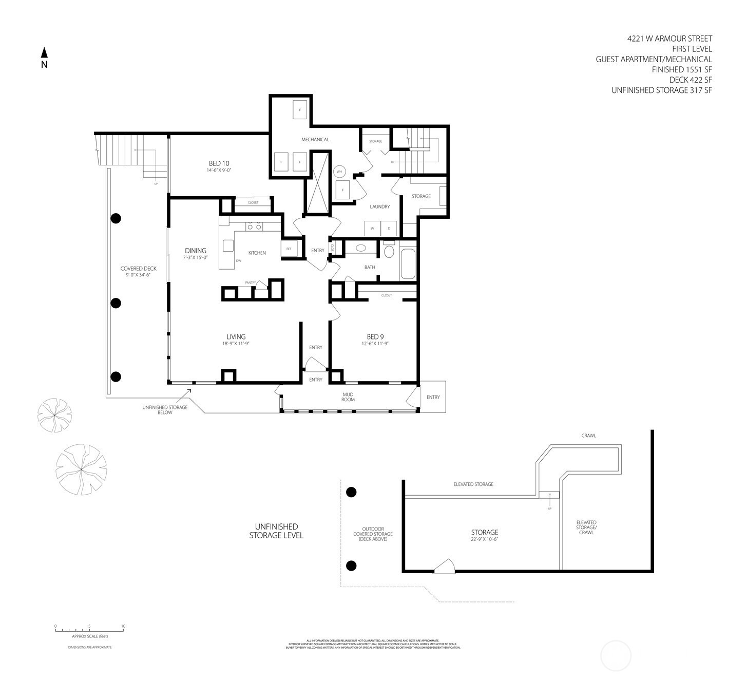
Perched high atop Magnolia in the highly regarded Carleton Park neighborhood, this architect-designed mid-century residence by Seattle firm Tucker & Shields invites rediscovery. Built in 1963 and thoughtfully set into Magnolia Bluff, the building spans more than 7,600 square feet on a wooded 13,350-square-foot corner parcel, where mature trees, layered decks and private garden spaces create a rare sense of seclusion. Behind its understated façade, a light-filled gallery introduces generous interior volumes shaped by floor-to-ceiling windows, exposed beams and natural materials emblematic of Pacific Northwest Modernism. A grand gathering space anchors the home, its wall of glass drawing in filtered light and quiet views through the surrounding landscape. The residence unfolds across three distinct levels with ten existing bedrooms, offering natural separation and versatility well suited to multi-generational households living under one roof, shared living arrangements, guest accommodations or live-in support. Long recognized as one of Carleton Park’s most sought-after Adult Family Homes, the property is licensed for six residents with the ability to support additional bedrooms. The business benefits from a strong reputation, consistent demand and a long-standing waiting list. An existing lower-level apartment with private access provides additional income and operational flexibility. Whether continued as a thriving care operation or held as a combined business and real estate.
Listing Provided Courtesy of Edward Krigsman, Windermere Real Estate Co.
General Information
NWM2477308
Single Family Residence
2
DOM
10
0.31 acres
3.5
7617
1963
King
Catharine Blain
Mc Clure Mid
Ballard High
Residential
Single Family Residence
Listing Provided Courtesy of Edward Krigsman, Windermere Real Estate Co.
Krishna Realty data last checked: Mar 16, 2026 22:06 | Listing last modified Mar 05, 2026 19:35,
Source:
Download our Mobile app
Residence Information
7617
3/Gas
10
3
1
3.5
Flat, Torch Down
13 - Tri-Level
1963
Daylight, Partially Finished
Daylight, Partially
Poured Concrete
Features and Utilities
Dishwasher(s), Disposal, Double Oven, Dryer(s), Microwave(s), Refrigerator(s), Stove(s)/Range(s), Wa
Second Kitchen, Bath Off Primary, Dining Room, Fireplace, Skylight(s), Walk-In Pantry, Water Heater
Wood
Accessible Approach with Ramp, Accessible Bath, Accessible Bedroom, Accessible Central Living Area,
Public
Sewer Connected
Financial
26359
Cash, Conventional
02-09-2026
Comparable Information
2
2
Cash, Conventional
$2,750,000
$2,750,000
Mar 05, 2026 19:35
Schools
Elementary : Catharine BlainN/ARatings Middle : Mc Clure Mid N/ARatings High : Ballard HighN/ARatings
Perched high atop Magnolia in the highly regarded Carleton Park neighborhood, this architect-designed mid-century residence by Seattle firm Tucker & Shields invites rediscovery. Built in 1963 and thoughtfully set into Magnolia Bluff, the building spans more than 7,600 square feet on a wooded 13,350-square-foot corner parcel, where mature trees, layered decks and private garden spaces create a rare sense of seclusion. Behind its understated façade, a light-filled gallery introduces generous interior volumes shaped by floor-to-ceiling windows, exposed beams and natural materials emblematic of Pacific Northwest Modernism. A grand gathering space anchors the home, its wall of glass drawing in filtered light and quiet views through the surrounding landscape. The residence unfolds across three distinct levels with ten existing bedrooms, offering natural separation and versatility well suited to multi-generational households living under one roof, shared living arrangements, guest accommodations or live-in support. Long recognized as one of Carleton Park’s most sought-after Adult Family Homes, the property is licensed for six residents with the ability to support additional bedrooms. The business benefits from a strong reputation, consistent demand and a long-standing waiting list. An existing lower-level apartment with private access provides additional income and operational flexibility. Whether continued as a thriving care operation or held as a combined business and real estate.