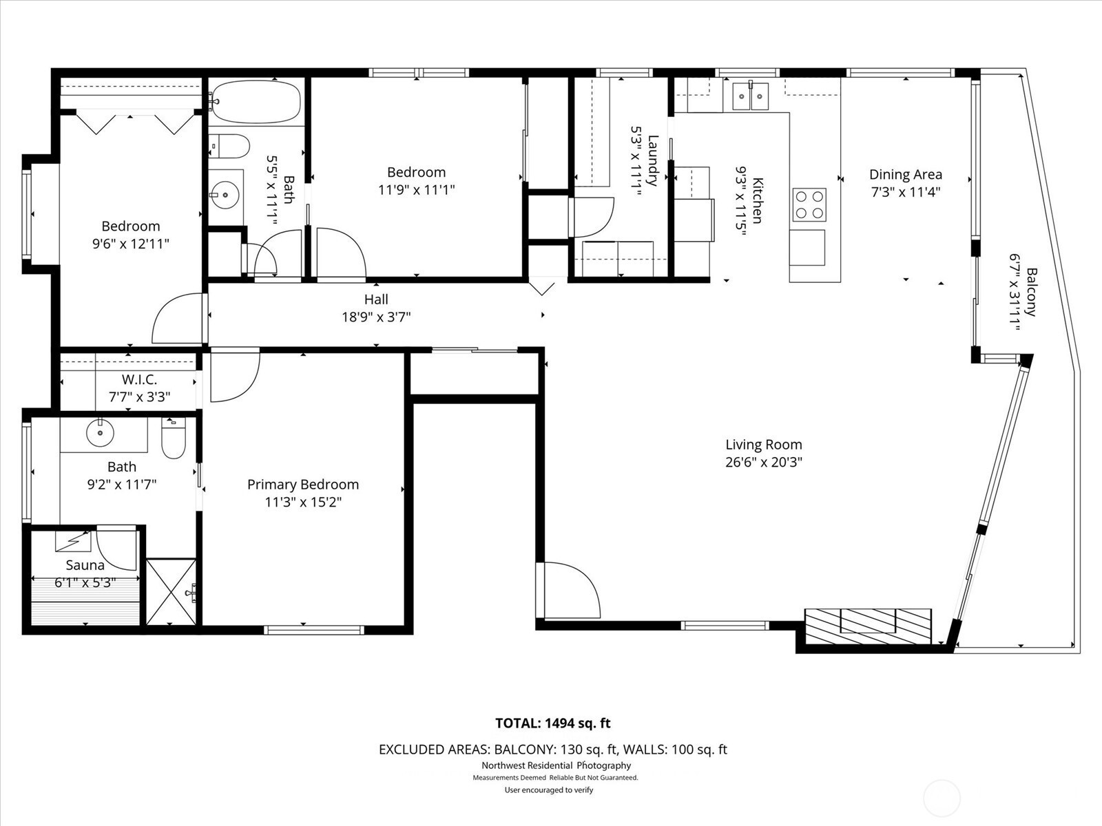
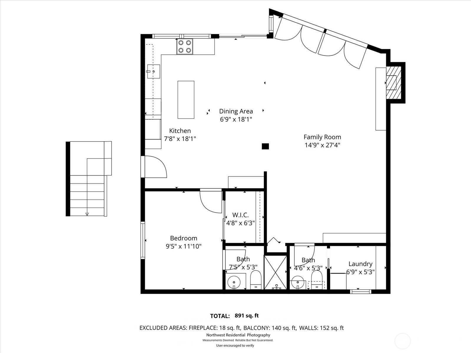
This wonderful 4 Plex has always been owner occupied. Only 2 owners. Very well loved & maintained. Three units have been totally renovated and one given a modest update. Long term tenants, zero vacancy rate. Lower unit has beautiful Brazilian walnut floors, open concept with L shaped living room allowing for library TV corner. European bi-folding doors open to beach side patio. Guest 1/2 bath off library area. Unit 2 is level entry with 2 bedrooms, one with double sliding doors that open to living room for the water view, remodeled kitchen that looks over the dining area to the water view. Unit 3 & Unit 4 have the same amazing floor plan. Open concept living space with large living room, good size dining area, kitchens with lots of working space and a walk in pantry/laundry room off the kitchen. Living room, kitchen and dining all have over 180' views of Puget Sound and the Olympic Mountains. Units 3&4 have 3 bedrooms, 2 baths & a sauna. Top 3 units have nice decks over looking the Sound. Waterfront fourplex owner occupied gets standard loan rates and other great considerations. Current tenants are on month to month. Please do not disturb. We have original plans. On the quiet side of Alki area Beach Dr is an amazing community. Location is minutes to downtown Seattle as well as West Seattle Junction. Check our WS's amazing parks, restaurants, shops and coffee shops. West Seattle is like a small town located very close to the heart of city of Seattle.
Listing Provided Courtesy of Susan Shelland, RSVP Brokers ERA
General Information
NWM2392952
Multi Family
276
DOM
10876.93 SqFt
5172
1979
King
Alki
Madison Mid
West Seattle Hi
Residential Incom
Multi Family
Listing Provided Courtesy of Susan Shelland, RSVP Brokers ERA
Krishna Realty data last checked: Apr 26, 2026 21:49 | Listing last modified Apr 22, 2026 22:09,
Source:
Download our Mobile app
Residence Information
5172
Composition
54 - 4-Plex
1979
Poured Concrete
Thermal Windows
Features and Utilities
Stucco
Public
Sewer Connected
0
Financial
17584
Cash, Conventional, FHA, VA Loan
07-20-2025
Comparable Information
276
276
Cash, Conventional, FHA, VA Loan
$3,700,000
$3,700,000
Apr 22, 2026 22:09
Schools
Elementary : AlkiN/ARatings Middle : Madison Mid N/ARatings High : West Seattle HiN/ARatings
This wonderful 4 Plex has always been owner occupied. Only 2 owners. Very well loved & maintained. Three units have been totally renovated and one given a modest update. Long term tenants, zero vacancy rate. Lower unit has beautiful Brazilian walnut floors, open concept with L shaped living room allowing for library TV corner. European bi-folding doors open to beach side patio. Guest 1/2 bath off library area. Unit 2 is level entry with 2 bedrooms, one with double sliding doors that open to living room for the water view, remodeled kitchen that looks over the dining area to the water view. Unit 3 & Unit 4 have the same amazing floor plan. Open concept living space with large living room, good size dining area, kitchens with lots of working space and a walk in pantry/laundry room off the kitchen. Living room, kitchen and dining all have over 180' views of Puget Sound and the Olympic Mountains. Units 3&4 have 3 bedrooms, 2 baths & a sauna. Top 3 units have nice decks over looking the Sound. Waterfront fourplex owner occupied gets standard loan rates and other great considerations. Current tenants are on month to month. Please do not disturb. We have original plans. On the quiet side of Alki area Beach Dr is an amazing community. Location is minutes to downtown Seattle as well as West Seattle Junction. Check our WS's amazing parks, restaurants, shops and coffee shops. West Seattle is like a small town located very close to the heart of city of Seattle.