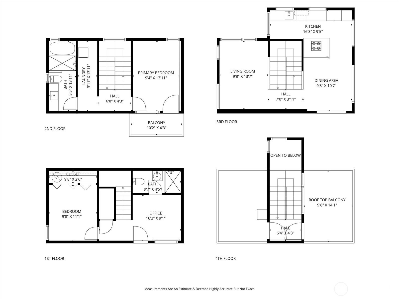
Congratulations!You have just found the unique urban dwelling of your dreams, located in the backyard of the iconic Aurora Bridge Troll! This intimate pocket development, located in the heart of Fremont, features 10 dynamic modern townhouse units, each with a roof top deck, situated around a lovely courtyard escape. Seasoned, this 10 year young townhouse, designed by the popular B9 Architects, remains aesthetically relevant with an airy Swedish aura: light faux wood flooring, organic color choices for walls, tile & counters, sleek lines, creative stying with the walk-in shower/tub space & large windows bouncing natural light throughout the entire home. This reverse living unit has bed/bath/living space on the main, with it’s polished concrete floors, perfect for guests, roommates, remote work or outdoor equipment storage (ie: bikes, skis, paddle board, snow boards, etc). 2nd level features 2nd bed/bath & laundry. 3rd floor features gorgeous loft space with living, kitchen & dining plus access to a fabulous roof top deck. Mini-splits on 2nd/3rd floor allow for efficient heating/cooling (main floor has wall heat). Location, location! Convenient to Gas Works Park, Burke-Gilman Trail, Fremont Canal + fantastic coffee shops, breweries, restaurants, boutiques, South Lake Union & downtown! Comes with 1 parking spot but easy access to street parking or bus line if need be. Also, no HOA's & no rental caps here. Come be a part of this quirky urban neighborhood and let it funk you up!
Listing Provided Courtesy of Sara Eglian, Windermere RE North, Inc.
General Information
NWM2485466
Single Family Residence
0
DOM
2
1258.88 SqFt
2
1490
2015
King
Buyer To Verify
Buyer To Verify
Buyer To Verify
Residential
Single Family Residence
Listing Provided Courtesy of Sara Eglian, Windermere RE North, Inc.
Krishna Realty data last checked: Mar 19, 2026 16:45 | Listing last modified Mar 19, 2026 22:24,
Source:
Congratulations!You have just found the unique urban dwelling of your dreams, located in the backyard of the iconic Aurora Bridge Troll! This intimate pocket development, located in the heart of Fremont, features 10 dynamic modern townhouse units, each with a roof top deck, situated around a lovely courtyard escape. Seasoned, this 10 year young townhouse, designed by the popular B9 Architects, remains aesthetically relevant with an airy Swedish aura: light faux wood flooring, organic color choices for walls, tile & counters, sleek lines, creative stying with the walk-in shower/tub space & large windows bouncing natural light throughout the entire home. This reverse living unit has bed/bath/living space on the main, with it’s polished concrete floors, perfect for guests, roommates, remote work or outdoor equipment storage (ie: bikes, skis, paddle board, snow boards, etc). 2nd level features 2nd bed/bath & laundry. 3rd floor features gorgeous loft space with living, kitchen & dining plus access to a fabulous roof top deck. Mini-splits on 2nd/3rd floor allow for efficient heating/cooling (main floor has wall heat). Location, location! Convenient to Gas Works Park, Burke-Gilman Trail, Fremont Canal + fantastic coffee shops, breweries, restaurants, boutiques, South Lake Union & downtown! Comes with 1 parking spot but easy access to street parking or bus line if need be. Also, no HOA's & no rental caps here. Come be a part of this quirky urban neighborhood and let it funk you up!