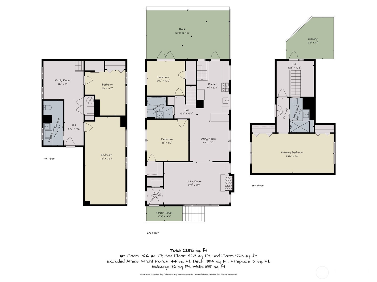
This thoughtfully updated, charming Phinney home offers 4 bedrooms, 2.25 baths and most of its original character intact. Over the past few years, upgrades have touched nearly every corner, culminating in a bright, effortless living space. The kitchen has been reimagined with an open layout, stainless steel appliances, and seamless access to an expansive new composite deck that overlooks the back yard. Light-filled and tranquil, the home flows with a relaxed ambience that invites both everyday living and entertaining. The entire top floor now serves as a luxurious primary suite, featuring a renovated 3/4 bath, a newer mini-split system for comfort (A/C), and a sunny deck with generous southern exposure. All hardwood floors have been replaced, and the fully finished lower level gains brightness and flexibility with the addition of two large egress windows. A possible 5th bedroom on the lower level awaits only a closet, while a dedicated laundry room and a half bath complete this level. Additional conveniences include a single-car attached garage and an extra off-street spot. The neighborhood is a pedestrian’s dream, with Phinney, Green Lake, Ballard, and Crown Hill all within easy reach. Nearby, you’ll find parks, restaurants, retailers, grocers, and even a superb butcher just a few blocks away. There is so much to love in this welcoming community—it's the kind of place you’ll be excited to call home.
Listing Provided Courtesy of Dustin Ziegelmann, Windermere Real Estate Midtown
General Information
NWM2497265
Single Family Residence
0
DOM
4
3859.42 SqFt
1.5
2230
1928
King
Greenwood
Robert Eagle St
Ballard High
Residential
Single Family Residence
Listing Provided Courtesy of Dustin Ziegelmann, Windermere Real Estate Midtown
Krishna Realty data last checked: Mar 25, 2026 12:52 | Listing last modified Mar 25, 2026 18:22,
Source:
This thoughtfully updated, charming Phinney home offers 4 bedrooms, 2.25 baths and most of its original character intact. Over the past few years, upgrades have touched nearly every corner, culminating in a bright, effortless living space. The kitchen has been reimagined with an open layout, stainless steel appliances, and seamless access to an expansive new composite deck that overlooks the back yard. Light-filled and tranquil, the home flows with a relaxed ambience that invites both everyday living and entertaining. The entire top floor now serves as a luxurious primary suite, featuring a renovated 3/4 bath, a newer mini-split system for comfort (A/C), and a sunny deck with generous southern exposure. All hardwood floors have been replaced, and the fully finished lower level gains brightness and flexibility with the addition of two large egress windows. A possible 5th bedroom on the lower level awaits only a closet, while a dedicated laundry room and a half bath complete this level. Additional conveniences include a single-car attached garage and an extra off-street spot. The neighborhood is a pedestrian’s dream, with Phinney, Green Lake, Ballard, and Crown Hill all within easy reach. Nearby, you’ll find parks, restaurants, retailers, grocers, and even a superb butcher just a few blocks away. There is so much to love in this welcoming community—it's the kind of place you’ll be excited to call home.