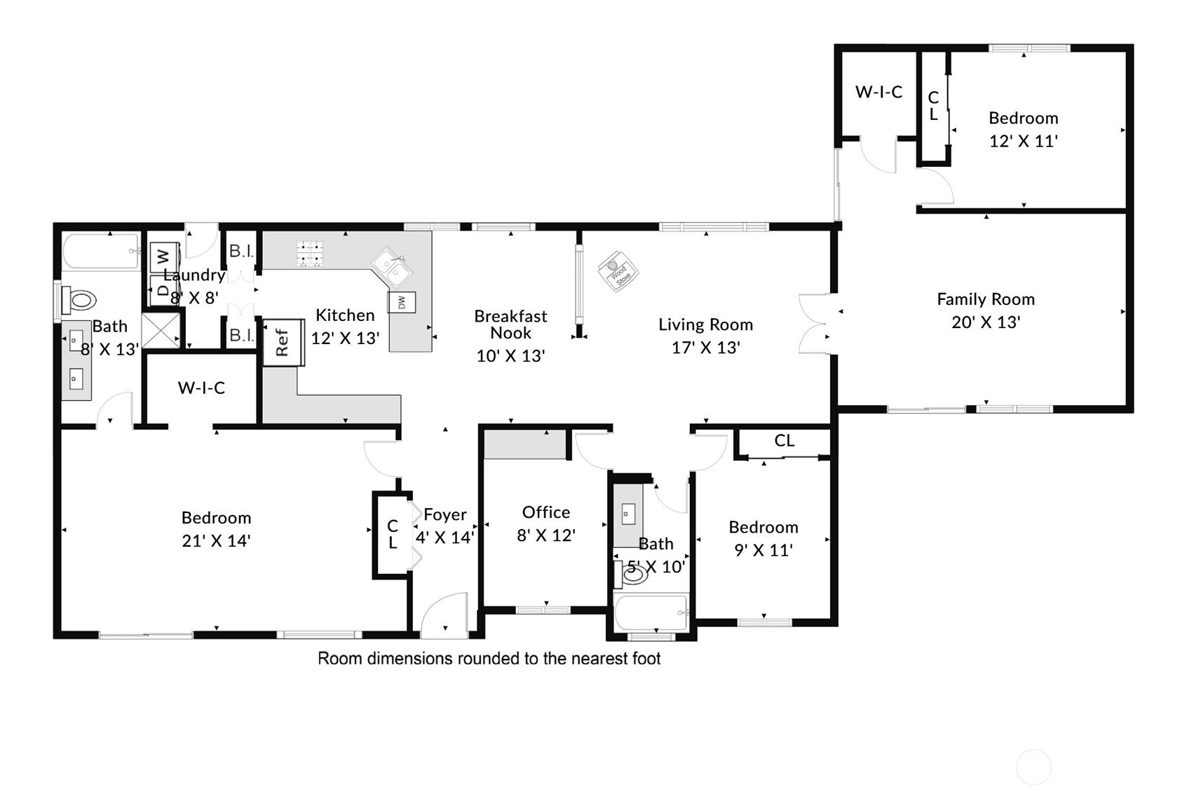
Welcome to Ames Lake, where nature and community come together! This single-level home sits on nearly 1 acre and offers 3 beds + flex/den, 2 bathrooms, and over $50K in upgrades since 2021. Thoughtfully designed with both comfort and function in mind, featuring LVP flooring in the kitchen and dining areas, hardwoods in the bonus living room and guest bedroom, and stainless steel kitchen appliances. Ample storage throughout plus wired for a generator for added peace of mind. Spacious primary suite includes a walk-in closet and 5-piece en-suite bath. New roof in 2026 and heat pump with A/C provide year-round comfort. Outside, enjoy the hot tub, chicken coop, and room to spread out and explore. Detached heated shop with oversized 2-car garage plus additional covered parking ideal for RVs, boats, or hobbies. Ames Lake Community Club membership offers private lake access and year-round events like egg hunts, plant exchanges, glow hikes, and neighborhood BBQs, it’s more than a home, it’s a lifestyle. Pre-inspected and no HOA!
Listing Provided Courtesy of Eric Kinzler, Windermere Real Estate/East
General Information
NWM2508678
Single Family Residence
1
DOM
4
0.97 acres
2
2000
1989
King
Fall City Elem
Chief Kanim Mid
Mount Si High
Residential
Single Family Residence
Listing Provided Courtesy of Eric Kinzler, Windermere Real Estate/East
Krishna Realty data last checked: Apr 18, 2026 02:48 | Listing last modified Apr 18, 2026 01:37,
Source:
Welcome to Ames Lake, where nature and community come together! This single-level home sits on nearly 1 acre and offers 3 beds + flex/den, 2 bathrooms, and over $50K in upgrades since 2021. Thoughtfully designed with both comfort and function in mind, featuring LVP flooring in the kitchen and dining areas, hardwoods in the bonus living room and guest bedroom, and stainless steel kitchen appliances. Ample storage throughout plus wired for a generator for added peace of mind. Spacious primary suite includes a walk-in closet and 5-piece en-suite bath. New roof in 2026 and heat pump with A/C provide year-round comfort. Outside, enjoy the hot tub, chicken coop, and room to spread out and explore. Detached heated shop with oversized 2-car garage plus additional covered parking ideal for RVs, boats, or hobbies. Ames Lake Community Club membership offers private lake access and year-round events like egg hunts, plant exchanges, glow hikes, and neighborhood BBQs, it’s more than a home, it’s a lifestyle. Pre-inspected and no HOA!