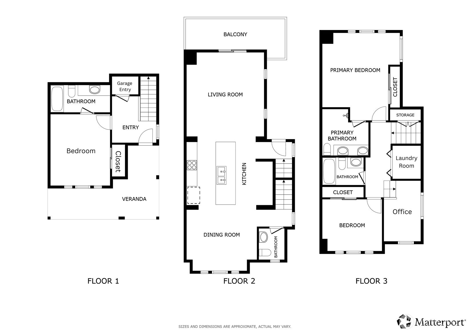
Tucked in a peaceful High Point community, this West Seattle townhome delivers luxury living with condo ease and a rare balcony view of the Seattle skyline. Light-filled interiors feature engineered hardwoods and an open-concept main level ideal for entertaining. The chef’s kitchen shines with sleek stone countertops, built-in stainless appliances, an oversized prep island with seating, and abundant cabinetry. Upstairs, the primary suite enjoys a private skyline outlook, while a second bedroom, bonus nook, and convenient laundry complete the level. A third bedroom with ensuite bath on the lower level offers ideal flexibility for guests or a home office. Step onto your private deck to savor sweeping views of Seattle — an added dimension not found in comparable homes. HOA covers professional lawn maintenance for effortless living. Just moments from parks, coffee shops, and the High Point library, this is elevated West Seattle living at its best.
Listing Provided Courtesy of Brian Rosso, Windermere Mercer Island
General Information
NWM2482940
Single Family Residence
41
DOM
3
0 SqFt
2.5
1679
2018
King
Buyer To Verify
Buyer To Verify
Buyer To Verify
Residential
Single Family Residence
Listing Provided Courtesy of Brian Rosso, Windermere Mercer Island
Krishna Realty data last checked: Apr 06, 2026 17:03 | Listing last modified Apr 01, 2026 18:49,
Source:
Download our Mobile app
Residence Information
1679
3
2
1
2.5
Composition
32 - Townhouse
2018
Poured Concrete
Features and Utilities
Dishwasher, Disposal, Dryer, Microwave, Refrigerator, Stove(s)/Range(s), Tankless Water Heater, Wash
Bath Off Primary, Dbl Pane/Storm Window, Dining Room, Water Heater
Cement Planked, Wood
Public
Sewer Connected
Financial
6674
Cash, Conventional, FHA, VA Loan
02-19-2026
Comparable Information
41
41
Cash, Conventional, FHA, VA Loan
$799,950
$799,950
Apr 01, 2026 18:49
Schools
Elementary : Buyer To VerifyN/ARatings Middle : Buyer To Verify N/ARatings High : Buyer To VerifyN/ARatings
Tucked in a peaceful High Point community, this West Seattle townhome delivers luxury living with condo ease and a rare balcony view of the Seattle skyline. Light-filled interiors feature engineered hardwoods and an open-concept main level ideal for entertaining. The chef’s kitchen shines with sleek stone countertops, built-in stainless appliances, an oversized prep island with seating, and abundant cabinetry. Upstairs, the primary suite enjoys a private skyline outlook, while a second bedroom, bonus nook, and convenient laundry complete the level. A third bedroom with ensuite bath on the lower level offers ideal flexibility for guests or a home office. Step onto your private deck to savor sweeping views of Seattle — an added dimension not found in comparable homes. HOA covers professional lawn maintenance for effortless living. Just moments from parks, coffee shops, and the High Point library, this is elevated West Seattle living at its best.