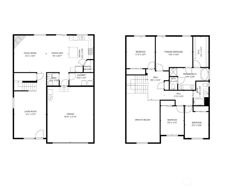
Located in the desirable Maple Ridge neighborhood of Maple Valley, this well-maintained home offers comfort, space, and an exceptional lifestyle. Inside, the generous layout features an informal family room connected to a large kitchen with an eat-in area, along with traditional living and dining spaces suited for both everyday living and entertaining. Warm cherry flooring and rich wood-tone kitchen cabinetry bring a timeless look throughout. Upstairs includes a relaxing primary suite plus three additional bedrooms. Recent updates include refreshed interior paint, new carpet and pad, an exterior cleaning, and new paint on the trim and front of the home. Updated landscaping with new sod enhances the home’s inviting curb appeal. The private backyard features a large patio, ideal for outdoor enjoyment or gatherings. Conveniently located near award winning schools, restaurants, grocery stores, and daily amenities plus three neighborhood access points to Henry’s Ridge Open Space - 250 acres of forested land and nearly 20 miles of trails for walking, running, or biking. Five nearby parks provide additional opportunities to enjoy the outdoors.Potential VA loan assumption with a 2.375% interest rate, subject to lender approval and buyer qualification.
Listing Provided Courtesy of Shannon Morey, The Amber Bills Group
General Information
NWM2482401
Single Family Residence
15
DOM
4
4329.86 SqFt
2.5
2300
2006
King
Rock Creek Elem
Summit Trail Mi
Tahoma Snr High
Residential
Single Family Residence
Listing Provided Courtesy of Shannon Morey, The Amber Bills Group
Krishna Realty data last checked: Apr 09, 2026 06:38 | Listing last modified Apr 03, 2026 16:08,
Source:
Located in the desirable Maple Ridge neighborhood of Maple Valley, this well-maintained home offers comfort, space, and an exceptional lifestyle. Inside, the generous layout features an informal family room connected to a large kitchen with an eat-in area, along with traditional living and dining spaces suited for both everyday living and entertaining. Warm cherry flooring and rich wood-tone kitchen cabinetry bring a timeless look throughout. Upstairs includes a relaxing primary suite plus three additional bedrooms. Recent updates include refreshed interior paint, new carpet and pad, an exterior cleaning, and new paint on the trim and front of the home. Updated landscaping with new sod enhances the home’s inviting curb appeal. The private backyard features a large patio, ideal for outdoor enjoyment or gatherings. Conveniently located near award winning schools, restaurants, grocery stores, and daily amenities plus three neighborhood access points to Henry’s Ridge Open Space - 250 acres of forested land and nearly 20 miles of trails for walking, running, or biking. Five nearby parks provide additional opportunities to enjoy the outdoors.Potential VA loan assumption with a 2.375% interest rate, subject to lender approval and buyer qualification.
Similar Properties
Download our Mobile app
$1,600,000
4 Bed
2.5 Bath
4460 SqFt
2 DOM
24360 270th Avenue SE,
Maple Valley, 98038
$789,950
5 Bed
2.5 Bath
2260 SqFt
2 DOM
27910 227th Court SE,
Maple Valley, 98038
$1,100,000
4 Bed
1.5 Bath
2220 SqFt
7 DOM
17401 Renton Maple Valley Road SE,
Maple Valley, 98038