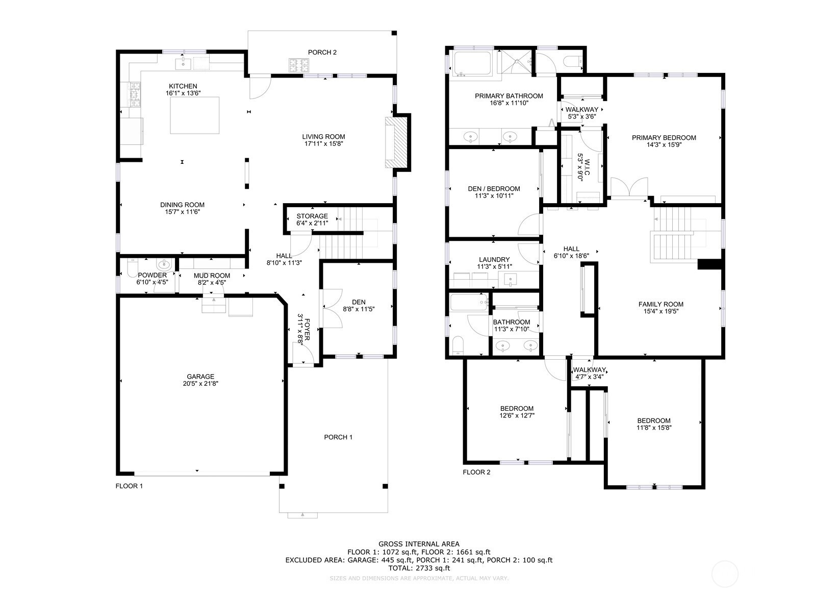
Built in 2019 and still like new, this 2,639 sq. ft. home offers 4 bedrooms and 2.5 baths in a quiet cul-de-sac within a beautifully maintained community, featuring a private neighborhood park at the end of the street. West-facing and backing to a serene greenbelt, the home enjoys abundant natural light and a fully fenced private yard. The open-concept main level showcases hardwood floors, a spacious kitchen with stainless steel appliances, large island with a formal dining area, gas fireplace in the living room, custom blinds throughout, Solar Panel, Tankless water heat, mudroom built-ins, EV charger in garage, new W/D and dishwasher, and A/C—ideal for both everyday living and entertaining. Upstairs features an inviting loft, comfortable secondary bedrooms and bathroom, and a spacious primary suite with a 5-piece en-suite bath and walk-in closet. Conveniently located minutes to the Star Lake Light Rail station with easy access to Sea-Tac Airport and downtown Seattle, and close to Redondo Beach, dining, and everyday amenities. A rare blend of comfort, privacy, and convenience—this home is a must-see. Seller has an assumable VA loan below 3%!
Listing Provided Courtesy of Kham Beitlers, Keller Williams Rlty Bellevue
General Information
NWM2482003
Single Family Residence
28
DOM
4
5000.69 SqFt
2.5
2639
2019
King
Buyer To Verify
Buyer To Verify
Buyer To Verify
Residential
Single Family Residence
Listing Provided Courtesy of Kham Beitlers, Keller Williams Rlty Bellevue
Krishna Realty data last checked: Apr 07, 2026 12:43 | Listing last modified Mar 26, 2026 00:30,
Source:
Download our Mobile app
Residence Information
2639
1/Gas
4
2
1
2.5
Composition
12 - 2 Story
2019
None
None
Poured Concrete
Features and Utilities
Dishwasher, Disposal, Dryer, Microwave, Refrigerator, Stove(s)/Range(s), Tankless Water Heater, Wash
Bath Off Primary, Ceiling Fan(s), Dbl Pane/Storm Window, Dining Room, Fireplace, French Doors, High
Cement Planked, Stone, Wood
Public
Sewer Connected
Financial
7923
Cash, Conventional, FHA, VA Loan
02-25-2026
Comparable Information
28
28
Cash, Conventional, FHA, VA Loan
$850,000
$850,000
Mar 26, 2026 00:30
Schools
Elementary : Buyer To VerifyN/ARatings Middle : Buyer To Verify N/ARatings High : Buyer To VerifyN/ARatings
Map
Listing courtesy of Keller Williams Rlty Bellevue.
Built in 2019 and still like new, this 2,639 sq. ft. home offers 4 bedrooms and 2.5 baths in a quiet cul-de-sac within a beautifully maintained community, featuring a private neighborhood park at the end of the street. West-facing and backing to a serene greenbelt, the home enjoys abundant natural light and a fully fenced private yard. The open-concept main level showcases hardwood floors, a spacious kitchen with stainless steel appliances, large island with a formal dining area, gas fireplace in the living room, custom blinds throughout, Solar Panel, Tankless water heat, mudroom built-ins, EV charger in garage, new W/D and dishwasher, and A/C—ideal for both everyday living and entertaining. Upstairs features an inviting loft, comfortable secondary bedrooms and bathroom, and a spacious primary suite with a 5-piece en-suite bath and walk-in closet. Conveniently located minutes to the Star Lake Light Rail station with easy access to Sea-Tac Airport and downtown Seattle, and close to Redondo Beach, dining, and everyday amenities. A rare blend of comfort, privacy, and convenience—this home is a must-see. Seller has an assumable VA loan below 3%!