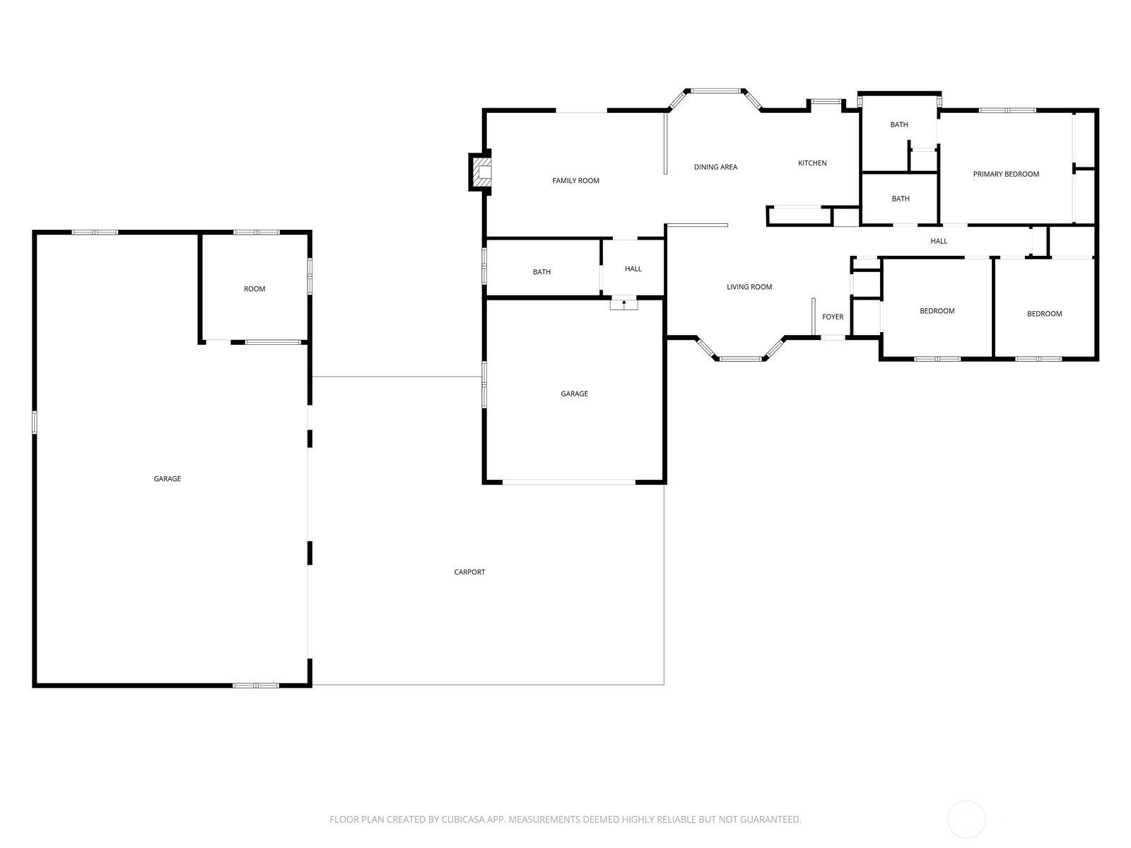
Welcome home to your One story Ravensdale 3 bedroom 2.25 bath home with large detached shop/garage in the award winning Tahoma School District. Nestled in a peaceful private setting. Beautiful kitchen with brand new appliances for your cooking enjoyment that over looks your open floorplan and beautiful backyard. The Kitchen flows easily to the rest of the home's living, dining and family rooms. Large Family room with cozy fireplace and french doors. Spacous primary suite. Enjoy your luscious landscaping from all of the rooms. A Car Buff's dream shop with the in-floor vehicle lift, plumbed external air compressor and an office space with its own electric meter. If you want a shop this is it. There is room for everyones hobby and recreation in this expansive space. Dream a little. Wood shop or cars, there is room for both. Currently used as a perfect recreation space. 2 more large outbuildings. A gardener's paradise with mature fruit trees including apple, plum, peach and Rainier Cherry. Raspberries, garden space and raised beds. Outdoor fire pit. Front yard with water feature. RV parking. Newer roof, new septic system in 2023. New Hot water heater, trex deck. LED lighting. Fully fenced. Large Dog Run. Close to Parks and shopping. Private yet an easy commute. Peaceful and quiet. Work from home and enjoy life. This could be exactly what you have been looking for.
Listing Provided Courtesy of Kathy Morrow, RE/MAX Integrity
General Information
NWM2490953
Single Family Residence
260
DOM
3
0.81 acres
1.5
1670
1990
King
Tahoma Elementa
Summit Trail Mi
Tahoma Snr High
Residential
Single Family Residence
Listing Provided Courtesy of Kathy Morrow, RE/MAX Integrity
Krishna Realty data last checked: Apr 23, 2026 18:17 | Listing last modified Apr 23, 2026 18:13,
Source:
Welcome home to your One story Ravensdale 3 bedroom 2.25 bath home with large detached shop/garage in the award winning Tahoma School District. Nestled in a peaceful private setting. Beautiful kitchen with brand new appliances for your cooking enjoyment that over looks your open floorplan and beautiful backyard. The Kitchen flows easily to the rest of the home's living, dining and family rooms. Large Family room with cozy fireplace and french doors. Spacous primary suite. Enjoy your luscious landscaping from all of the rooms. A Car Buff's dream shop with the in-floor vehicle lift, plumbed external air compressor and an office space with its own electric meter. If you want a shop this is it. There is room for everyones hobby and recreation in this expansive space. Dream a little. Wood shop or cars, there is room for both. Currently used as a perfect recreation space. 2 more large outbuildings. A gardener's paradise with mature fruit trees including apple, plum, peach and Rainier Cherry. Raspberries, garden space and raised beds. Outdoor fire pit. Front yard with water feature. RV parking. Newer roof, new septic system in 2023. New Hot water heater, trex deck. LED lighting. Fully fenced. Large Dog Run. Close to Parks and shopping. Private yet an easy commute. Peaceful and quiet. Work from home and enjoy life. This could be exactly what you have been looking for.
Similar Properties
Download our Mobile app
$1,995,000
4 Bed
3.5 Bath
4030 SqFt
0 DOM
31627 SE 280th Court,
Ravensdale, 98051
$3,150,000
4 Bed
2.5 Bath
4060 SqFt
6 DOM
27924 SE 268th Street,
Ravensdale, 98051
$1,850,000
4 Bed
2.5 Bath
3400 SqFt
8 DOM
29220 305th Court SE,
Ravensdale, 98051
$2,249,000
4 Bed
2.5 Bath
4290 SqFt
14 DOM
29816 SE Lake Retreat North Drive,
Ravensdale, 98051