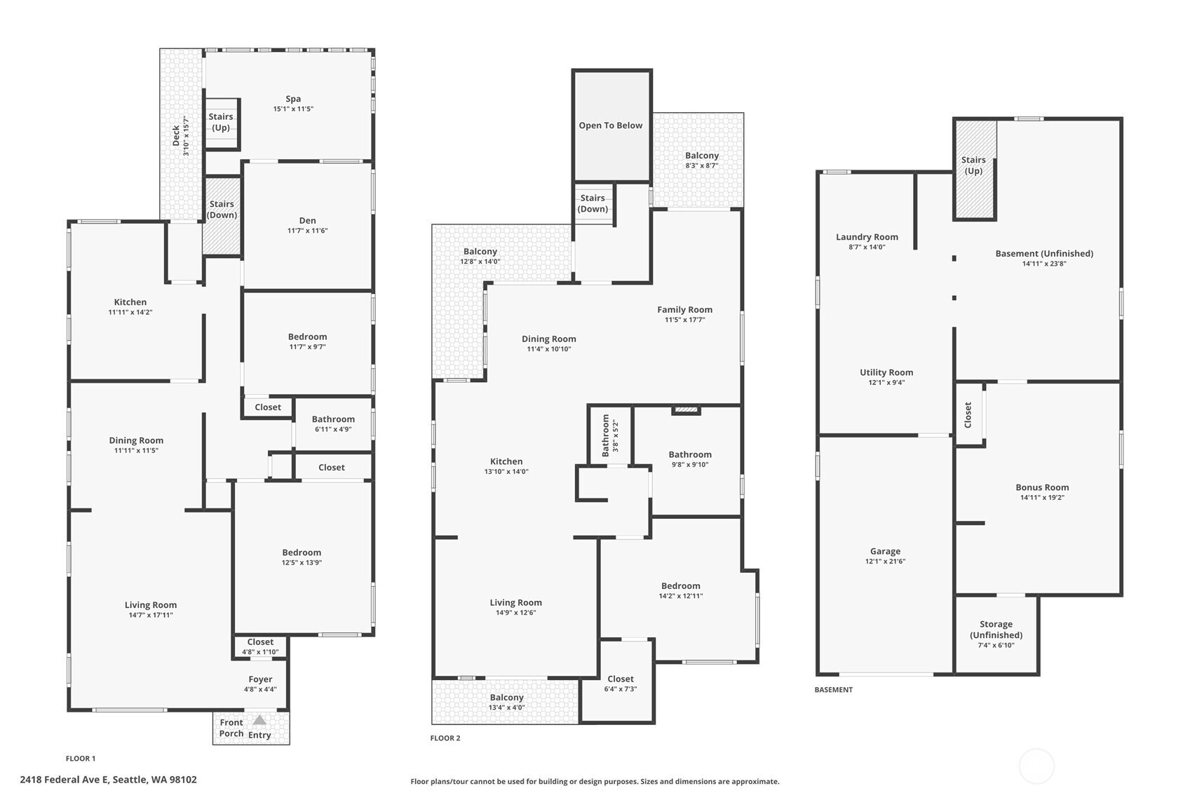
This charming and spacious home offers exceptional flexibility and timeless appeal. Newer hardwood floors, wood framed windows and light filled living spaces create a warm, inviting atmosphere throughout. Main level features a formal living, dining room, large kitchen and three generously sized bedrooms. Upstairs provides an incredibly versatile layout with a second living area, additional kitchen, bedroom, bath, and beautiful decks with territorial views - ideal for extended living, guests, or potential short- or long-term rental income. The flexible floor plan easily adapts to a variety of living arrangements. A sunny atrium with built-in spa/hot tub offers a relaxing year-round retreat and opens to a fully fenced backyard with mature landscaping and beautifully maintained gardens. Multiple decks extend the living space outdoors, perfect for entertaining or unwinding. Lower level includes a spacious basement with bonus room, utility area, abundant storage, and garage parking. Conveniently located just steps to parks, public transportation, schools, restaurants, and everything Capitol Hill has to offer. A rare opportunity combining space, versatility, and location.
Listing Provided Courtesy of Brent D. Lumley, Windermere RE Greenwood
General Information
NWM2481151
Single Family Residence
3
DOM
4
3998.81 SqFt
2
2660
1949
King
Residential
Single Family Residence
Listing Provided Courtesy of Brent D. Lumley, Windermere RE Greenwood
Krishna Realty data last checked: Feb 22, 2026 04:24 | Listing last modified Feb 22, 2026 00:26,
Source:
This charming and spacious home offers exceptional flexibility and timeless appeal. Newer hardwood floors, wood framed windows and light filled living spaces create a warm, inviting atmosphere throughout. Main level features a formal living, dining room, large kitchen and three generously sized bedrooms. Upstairs provides an incredibly versatile layout with a second living area, additional kitchen, bedroom, bath, and beautiful decks with territorial views - ideal for extended living, guests, or potential short- or long-term rental income. The flexible floor plan easily adapts to a variety of living arrangements. A sunny atrium with built-in spa/hot tub offers a relaxing year-round retreat and opens to a fully fenced backyard with mature landscaping and beautifully maintained gardens. Multiple decks extend the living space outdoors, perfect for entertaining or unwinding. Lower level includes a spacious basement with bonus room, utility area, abundant storage, and garage parking. Conveniently located just steps to parks, public transportation, schools, restaurants, and everything Capitol Hill has to offer. A rare opportunity combining space, versatility, and location.