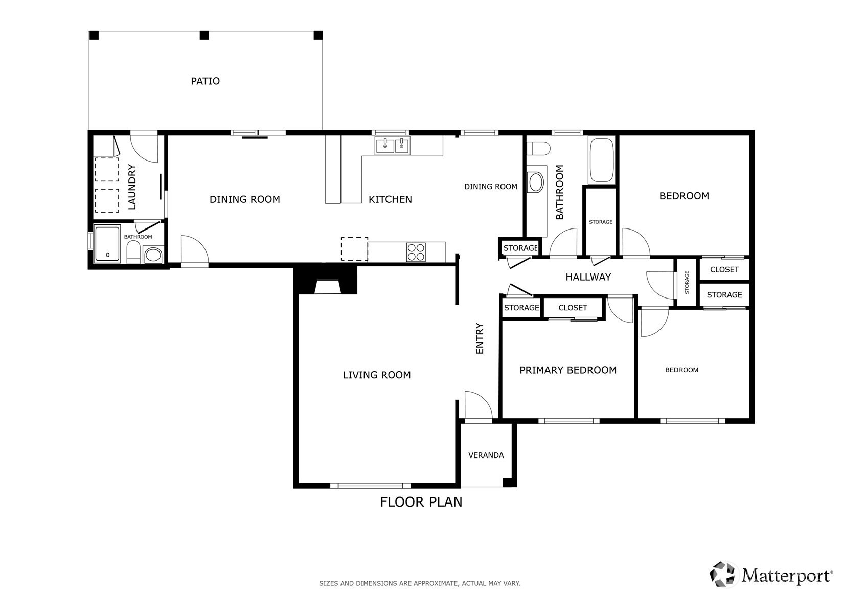
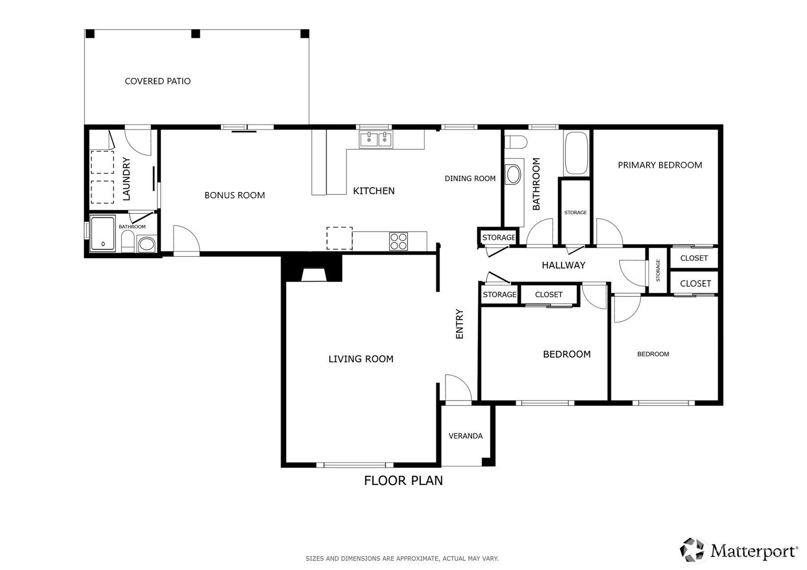
Superbly maintained 1,650 SF, 3-bedroom, 1.75-bath Glacier Vista rambler situated on a 14,400 SF lot backing to the White River corridor for added privacy. Spacious living room w/ brick fireplace & hardwood entry. Kitchen w/ abundant cabinet space, bar seating, luxury vinyl plank floors, eating area, & forest views. Sliding glass door leads to lgcovered back patio & maturely landscaped backyard. Full bath w/ oversized vanity. Laundry rm w/ adjacent 3/4 bath. Updated vinyl windows throughout. Architectural composition roof, forced-air gas furnace, front sprinkler system, & newer water heater. Detached garden shed w/ concrete floor for extra storage. Oversized 2-car garage. All in a desirable neighborhood near amenities & outdoor recreation.
Listing Provided Courtesy of David L. Hokenson, Redfin
General Information
NWM2446056
Single Family Residence
33
DOM
3
0.33 acres
2
1650
1972
King
Buyer To Verify
Buyer To Verify
Buyer To Verify
Residential
Single Family Residence
Listing Provided Courtesy of David L. Hokenson, Redfin
Krishna Realty data last checked: Dec 05, 2025 05:55 | Listing last modified Nov 20, 2025 00:40,
Source:
Superbly maintained 1,650 SF, 3-bedroom, 1.75-bath Glacier Vista rambler situated on a 14,400 SF lot backing to the White River corridor for added privacy. Spacious living room w/ brick fireplace & hardwood entry. Kitchen w/ abundant cabinet space, bar seating, luxury vinyl plank floors, eating area, & forest views. Sliding glass door leads to lgcovered back patio & maturely landscaped backyard. Full bath w/ oversized vanity. Laundry rm w/ adjacent 3/4 bath. Updated vinyl windows throughout. Architectural composition roof, forced-air gas furnace, front sprinkler system, & newer water heater. Detached garden shed w/ concrete floor for extra storage. Oversized 2-car garage. All in a desirable neighborhood near amenities & outdoor recreation.