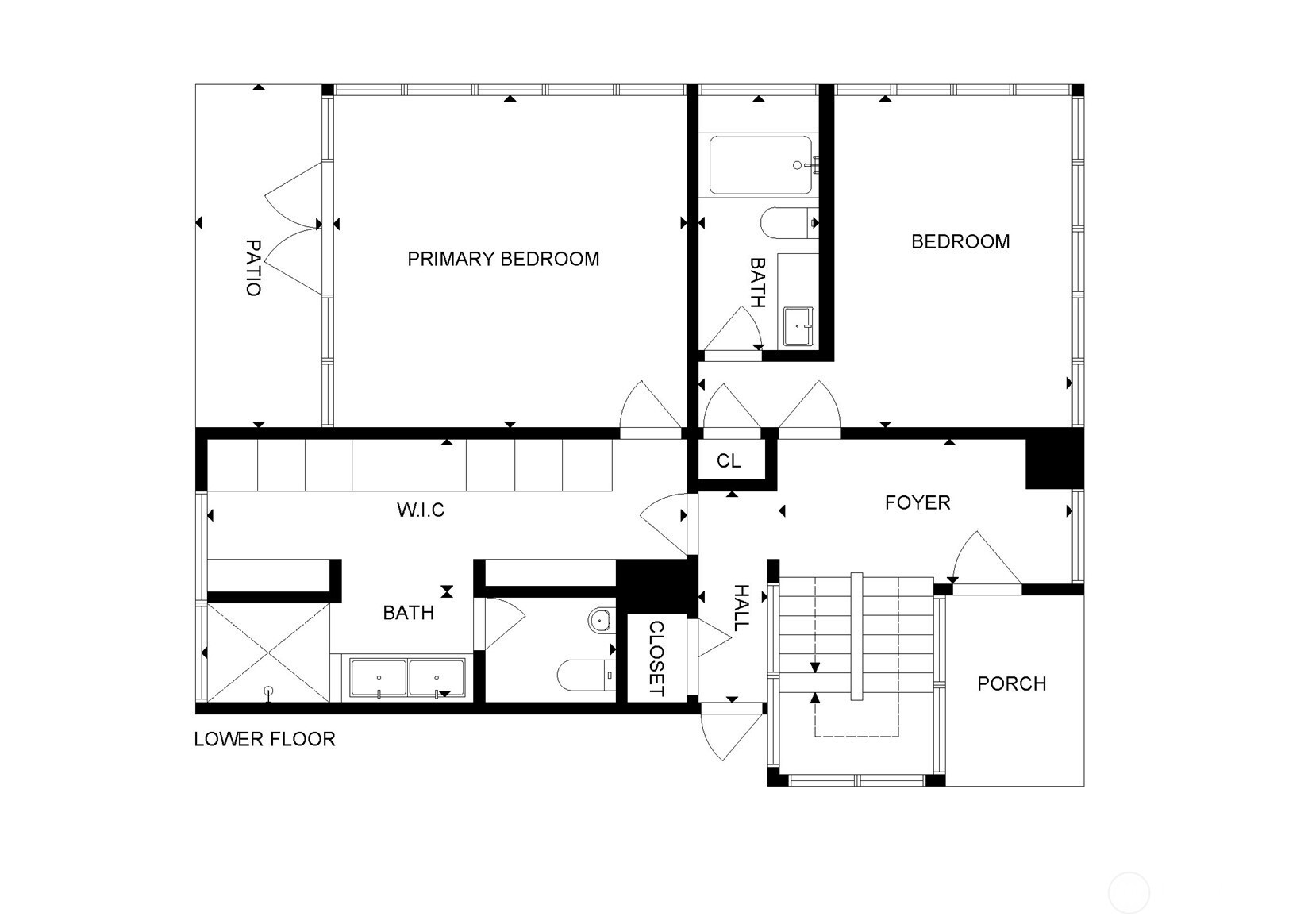
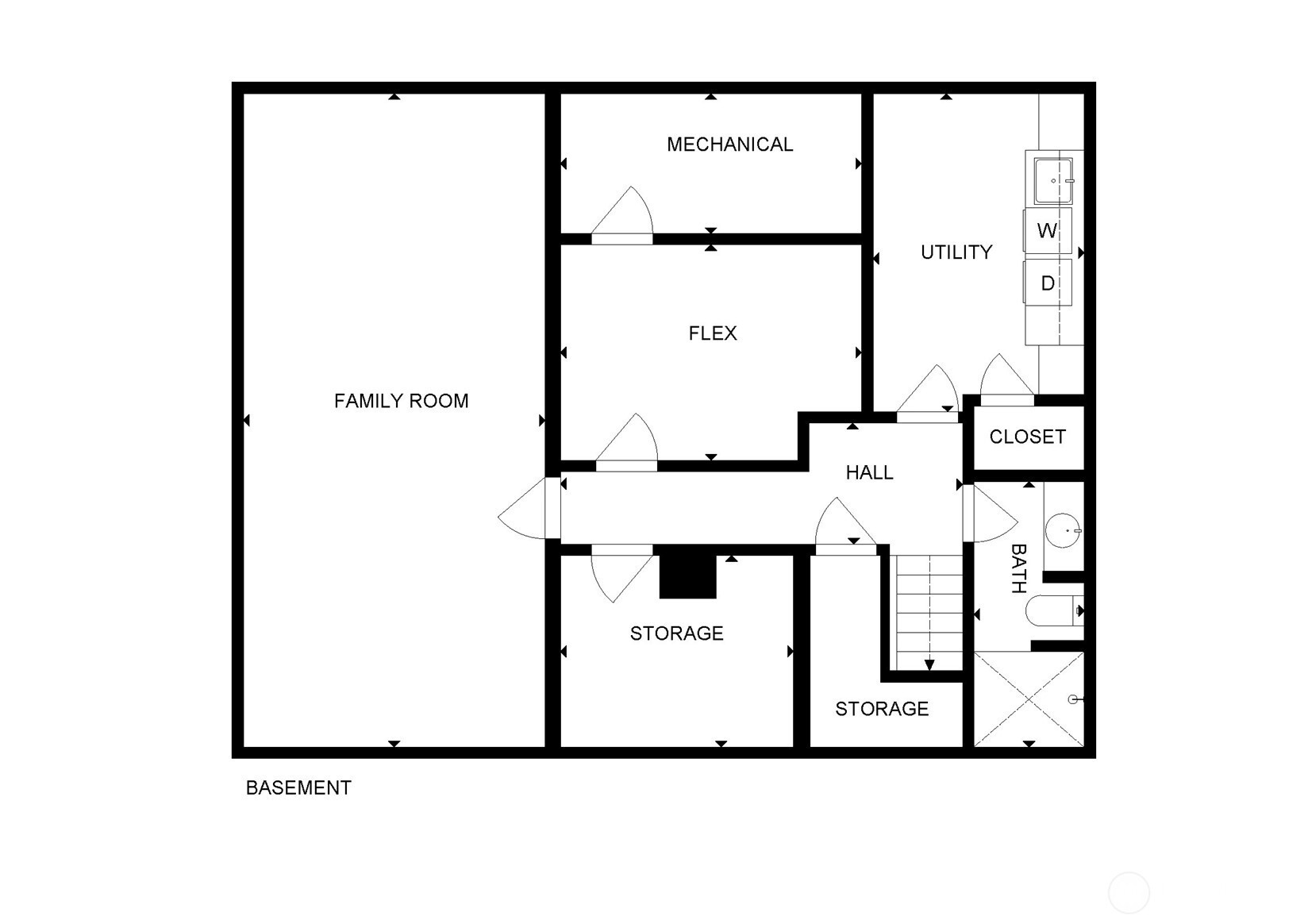
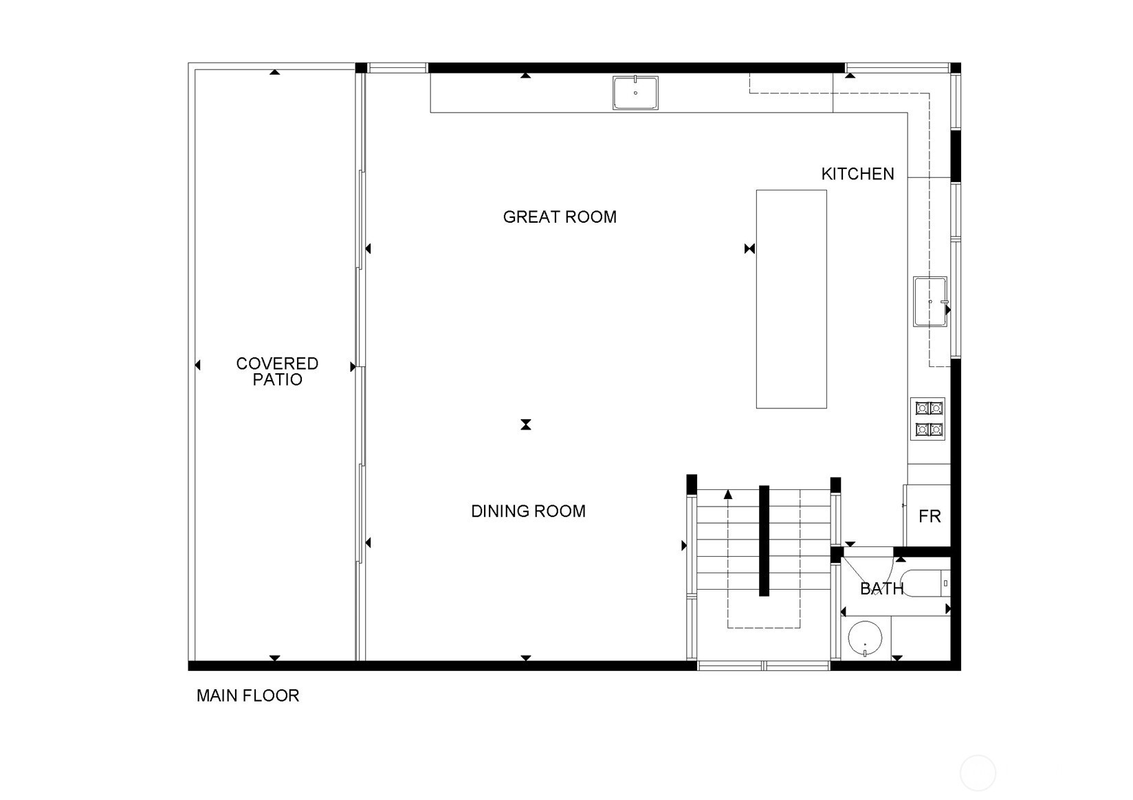
Fairview Landing #6 // Designed by Vandeventer + Carlander Architects, this modern floating home continues Seattle’s rich tradition of life on Lake Union, offering coveted southern exposure and sweeping views of Downtown, Queen Anne Hill, Gas Works Park, the Olympics and Space Needle. Thoughtfully designed, the floorplan inverts a traditional layout by placing public living spaces on the upper level to maximize light, views, and entertaining. Expansive glazing and large sliding doors open to multiple decks, including a rooftop terrace accessed by a sculptural circular stair, creating seamless indoor-outdoor flow. Private spaces are located on the entry level, while a rare underwater lower level with true porthole windows offers an immersive connection to the lake. The home’s carved massing, recessed decks, and material shifts create architectural depth and integrity. Sustainable features include hydronic in-floor heating via energy-efficient heat pump, heat-exchange ventilation, solar power, and strategically placed glazing for passive performance. Exterior fiber cement rainscreen panels and aluminum cladding pair with Alaskan yellow cedar-framed windows, while interiors feature mahogany, zebrawood, bamboo flooring, and warm wood accents, all balancing modern design with livability. Located within the sough after Fairview Landing community with dedicated parking and moorage with remote boat lift, this is refined waterfront living in the heart of the city.
Listing Provided Courtesy of Jay H Kipp, Realogics Sotheby's Int'l Rlty
General Information
NWM2508546
Single Family Residence
20
DOM
3
0 SqFt
2.5
2866
2006
King
Buyer To Verify
Buyer To Verify
Buyer To Verify
Residential
Single Family Residence
Listing Provided Courtesy of Jay H Kipp, Realogics Sotheby's Int'l Rlty
Krishna Realty data last checked: Apr 23, 2026 10:33 | Listing last modified Apr 23, 2026 14:23,
Source:
Fairview Landing #6 // Designed by Vandeventer + Carlander Architects, this modern floating home continues Seattle’s rich tradition of life on Lake Union, offering coveted southern exposure and sweeping views of Downtown, Queen Anne Hill, Gas Works Park, the Olympics and Space Needle. Thoughtfully designed, the floorplan inverts a traditional layout by placing public living spaces on the upper level to maximize light, views, and entertaining. Expansive glazing and large sliding doors open to multiple decks, including a rooftop terrace accessed by a sculptural circular stair, creating seamless indoor-outdoor flow. Private spaces are located on the entry level, while a rare underwater lower level with true porthole windows offers an immersive connection to the lake. The home’s carved massing, recessed decks, and material shifts create architectural depth and integrity. Sustainable features include hydronic in-floor heating via energy-efficient heat pump, heat-exchange ventilation, solar power, and strategically placed glazing for passive performance. Exterior fiber cement rainscreen panels and aluminum cladding pair with Alaskan yellow cedar-framed windows, while interiors feature mahogany, zebrawood, bamboo flooring, and warm wood accents, all balancing modern design with livability. Located within the sough after Fairview Landing community with dedicated parking and moorage with remote boat lift, this is refined waterfront living in the heart of the city.