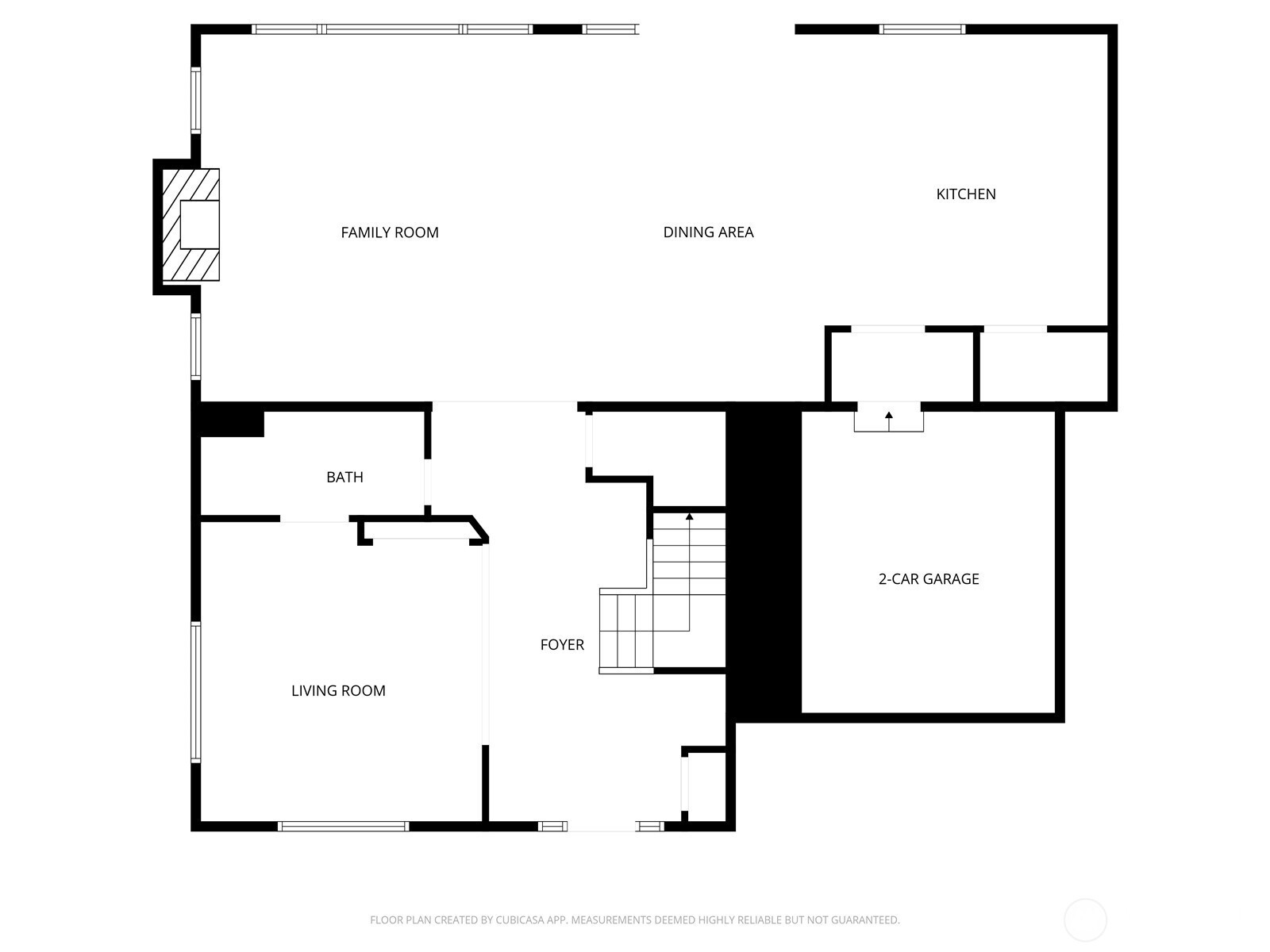
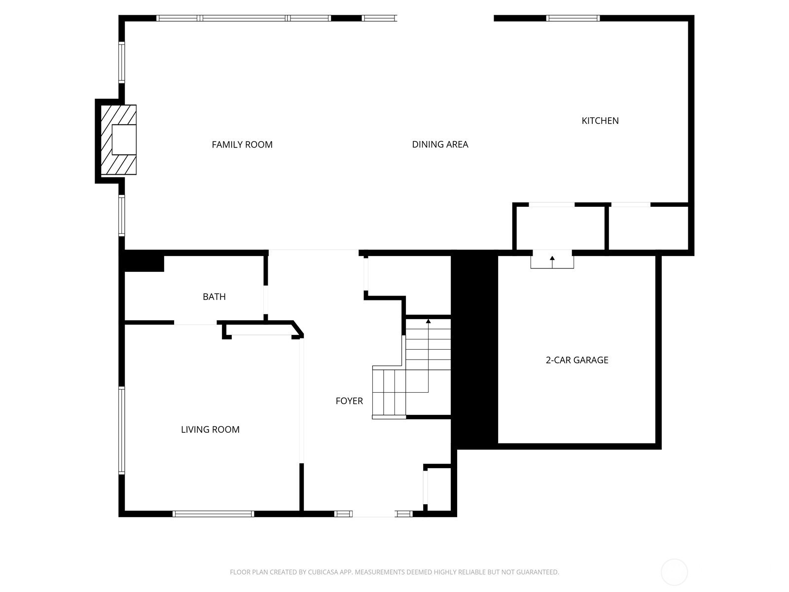
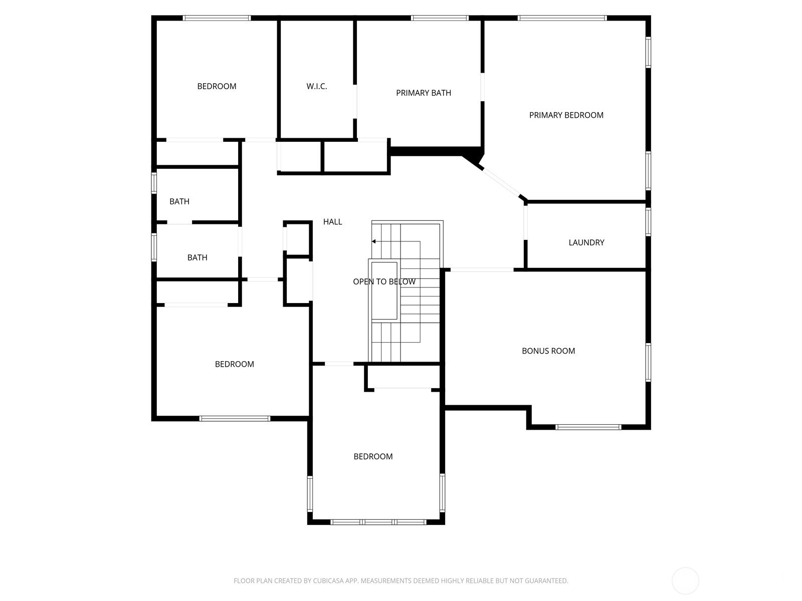
Grand Opening – New Construction in Maple Valley! Introducing a 5-lot new home community in the heart of Maple Valley, Magnolia Pointe. Home on Lot #2 is currently under construction with an estimated completion date of May 2026—and there’s still time to personalize your interior finishes if you act quickly. This stunning 3,356 sq ft floor plan is thoughtfully designed for modern living. Enjoy an oversized kitchen that seamlessly flows into the spacious family room, with direct access to a covered outdoor living space—perfect for entertaining year-round. The main-level junior suite offers flexible living options, ideal for an additional main level bedroom or a private home office. Upstairs, you’ll find three additional bedrooms, and a luxurious primary suite with ensuite bath and walk-in closet. Additional highlights include a 2-car garage and an energy-efficient heat pump for year-round heating and cooling. Conveniently located near SR 516, Hwy 169, and shopping. Ask about the Builder Credit, which may be applied toward mortgage interest rate buydown or closing costs when using the preferred lender. Active construction site—please call to schedule a tour.
Listing Provided Courtesy of Jason Winecka, John L. Scott, Inc
General Information
NWM2470851
Single Family Residence
28
DOM
5
5636.66 SqFt
3
3356
2026
King
Buyer To Verify
Buyer To Verify
Buyer To Verify
Residential
Single Family Residence
Listing Provided Courtesy of Jason Winecka, John L. Scott, Inc
Krishna Realty data last checked: Mar 17, 2026 02:16 | Listing last modified Mar 05, 2026 19:05,
Source:
Grand Opening – New Construction in Maple Valley! Introducing a 5-lot new home community in the heart of Maple Valley, Magnolia Pointe. Home on Lot #2 is currently under construction with an estimated completion date of May 2026—and there’s still time to personalize your interior finishes if you act quickly. This stunning 3,356 sq ft floor plan is thoughtfully designed for modern living. Enjoy an oversized kitchen that seamlessly flows into the spacious family room, with direct access to a covered outdoor living space—perfect for entertaining year-round. The main-level junior suite offers flexible living options, ideal for an additional main level bedroom or a private home office. Upstairs, you’ll find three additional bedrooms, and a luxurious primary suite with ensuite bath and walk-in closet. Additional highlights include a 2-car garage and an energy-efficient heat pump for year-round heating and cooling. Conveniently located near SR 516, Hwy 169, and shopping. Ask about the Builder Credit, which may be applied toward mortgage interest rate buydown or closing costs when using the preferred lender. Active construction site—please call to schedule a tour.