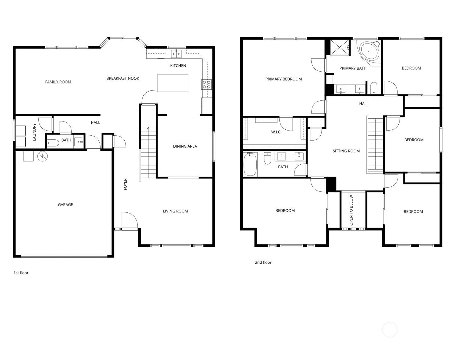
Located just moments from Vibrant downtown Burien, this 10 year young home lives LARGE with 5 bedrooms! Sparkling with brand new interior paint and fresh carpet, there is nothing to do but move in and enjoy the lifestyle afforded in this fab floorplan. Enter into the formal living room with dining room that flows seamlessly to the cooks kitchen, breakfast nook, and generous family room. A powder room and laundry room complete the main floor. Ascend upstairs to a big landing with 5, yes, FIVE bedrooms including a huge primary suite with walk in closet and bathroom with shower and soaking tub. 2 car attached garage and flat lot with ample space for play and relaxation. Just envision your dream landscaping ideas and make it happen! Annex Park and Dottie Harper Park are just a block away and it's an easy 4 block stroll to the heartbeat of Burien including the transit center, Burien Library, and a superabundance of restaurants, shops, and entertainment. Bonus: just minutes to Tukwila International Blvd Station light rail! Start LIVING your best 2026 in Vibrant Burien!
Listing Provided Courtesy of April Geneva, Windermere Real Estate Midtown
General Information
NWM2474722
Single Family Residence
14
DOM
5
7244.03 SqFt
2.5
2740
2014
King
Residential
Single Family Residence
Listing Provided Courtesy of April Geneva, Windermere Real Estate Midtown
Krishna Realty data last checked: Feb 21, 2026 20:37 | Listing last modified Feb 18, 2026 22:14,
Source:
Located just moments from Vibrant downtown Burien, this 10 year young home lives LARGE with 5 bedrooms! Sparkling with brand new interior paint and fresh carpet, there is nothing to do but move in and enjoy the lifestyle afforded in this fab floorplan. Enter into the formal living room with dining room that flows seamlessly to the cooks kitchen, breakfast nook, and generous family room. A powder room and laundry room complete the main floor. Ascend upstairs to a big landing with 5, yes, FIVE bedrooms including a huge primary suite with walk in closet and bathroom with shower and soaking tub. 2 car attached garage and flat lot with ample space for play and relaxation. Just envision your dream landscaping ideas and make it happen! Annex Park and Dottie Harper Park are just a block away and it's an easy 4 block stroll to the heartbeat of Burien including the transit center, Burien Library, and a superabundance of restaurants, shops, and entertainment. Bonus: just minutes to Tukwila International Blvd Station light rail! Start LIVING your best 2026 in Vibrant Burien!