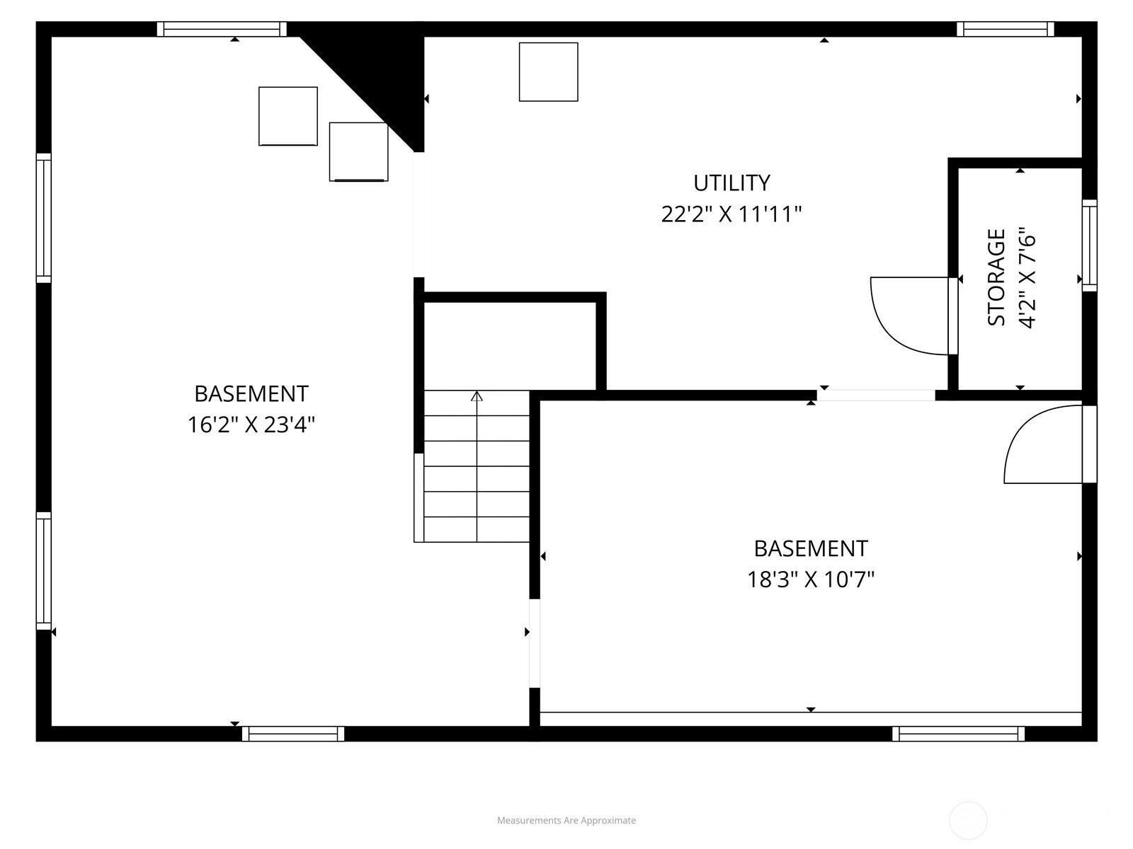
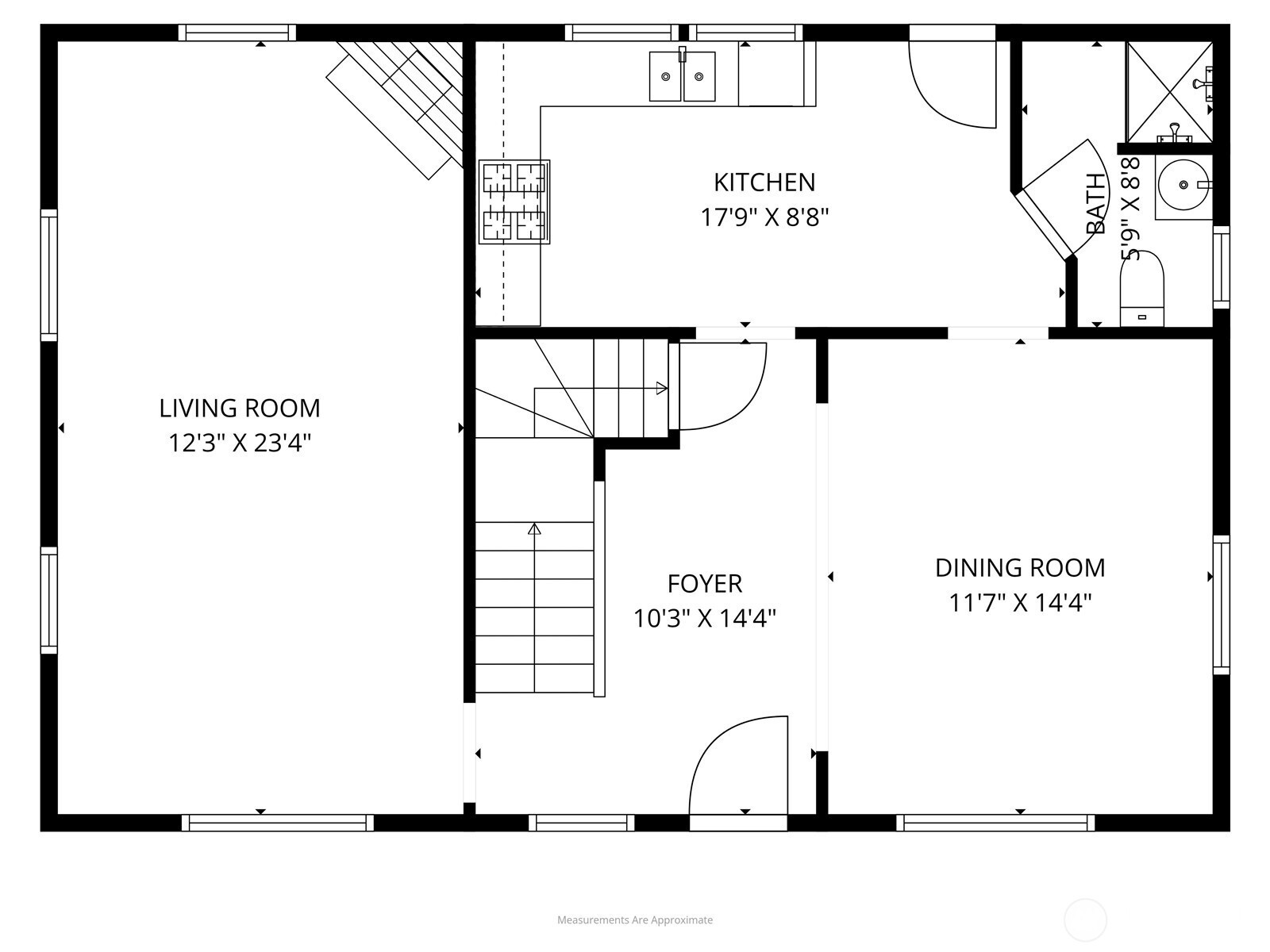
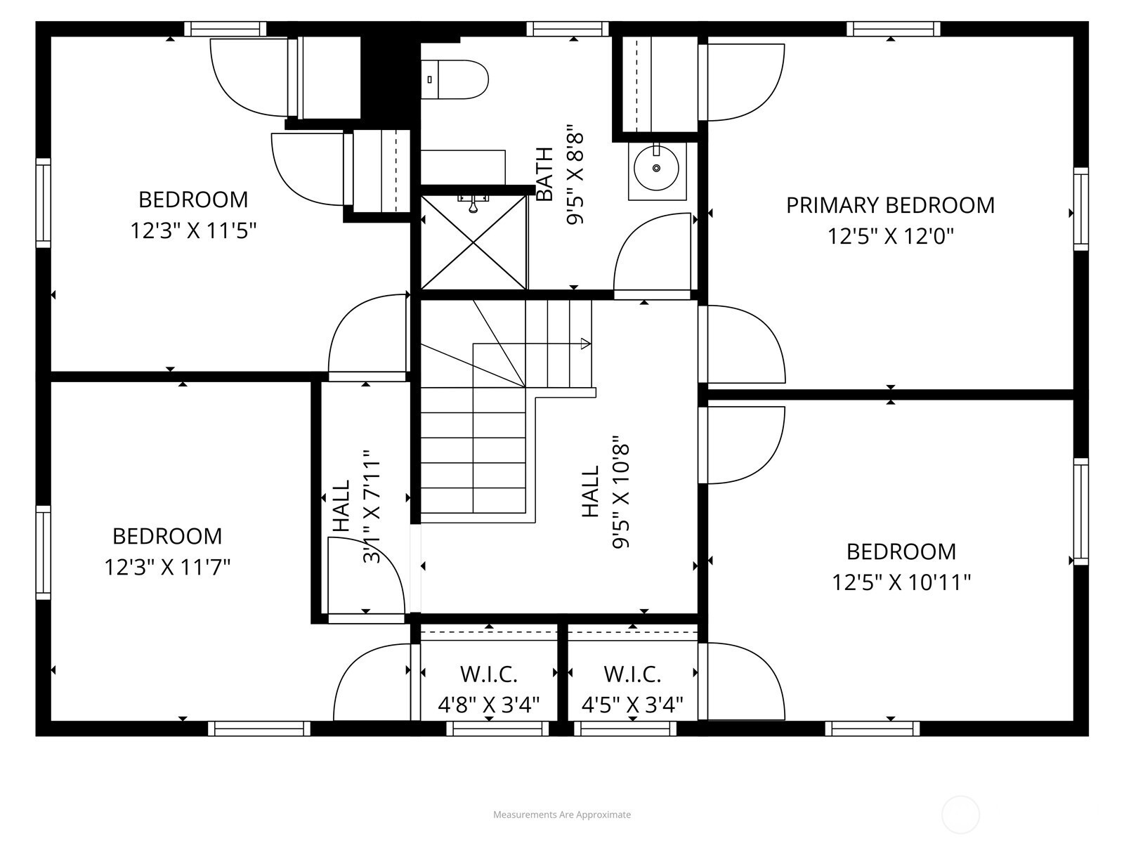
Location, location, location! Live on the top of the hill with easy access to everything we love about Queen Anne! This spacious, well-maintained home retains much of its 1908 charm, with high ceilings and lots of windows to bring in wonderful natural light. A classic layout offers large living and dining spaces on the main level along with an updated kitchen and a 3/4 bath. Upstairs features 4 great bedrooms-- each located on a corner with windows on 2 sides for abundant natural light. A bathroom off the upstairs hall serves these bedrooms. This home could benefit from a few cosmetic upgrades, but it offers tremendous potential, thanks to its practical layout and generously sized rooms. Based on the upstairs bed/bath configuration, it could be fairly straightforward to create a primary suite. The lower level is unfinished space, and currently serves as laundry area and plenty of additional storage. The lower level has exterior access as well for potential as an ADU. This home has been consistently well maintained, with numerous system updates throughout, including newer plumbing and electrical -- no active knob and tube here! Central location in close proximity to everything on the hill, as well as transit, Microsoft and Amazon shuttles, highways, and minutes to downtown, Fremont, or South Lake Union. An opportunity to bring your vision to this classic home and live the Queen Anne lifestyle!
Listing Provided Courtesy of Holley Ring, Windermere Real Estate Midtown
General Information
NWM2486355
Single Family Residence
1
DOM
4
2700.72 SqFt
2
2620
1908
King
Frantz Coe Elem
Mc Clure Mid
Lincoln High
Residential
Single Family Residence
Listing Provided Courtesy of Holley Ring, Windermere Real Estate Midtown
Krishna Realty data last checked: Mar 06, 2026 20:44 | Listing last modified Mar 06, 2026 19:23,
Source:
Location, location, location! Live on the top of the hill with easy access to everything we love about Queen Anne! This spacious, well-maintained home retains much of its 1908 charm, with high ceilings and lots of windows to bring in wonderful natural light. A classic layout offers large living and dining spaces on the main level along with an updated kitchen and a 3/4 bath. Upstairs features 4 great bedrooms-- each located on a corner with windows on 2 sides for abundant natural light. A bathroom off the upstairs hall serves these bedrooms. This home could benefit from a few cosmetic upgrades, but it offers tremendous potential, thanks to its practical layout and generously sized rooms. Based on the upstairs bed/bath configuration, it could be fairly straightforward to create a primary suite. The lower level is unfinished space, and currently serves as laundry area and plenty of additional storage. The lower level has exterior access as well for potential as an ADU. This home has been consistently well maintained, with numerous system updates throughout, including newer plumbing and electrical -- no active knob and tube here! Central location in close proximity to everything on the hill, as well as transit, Microsoft and Amazon shuttles, highways, and minutes to downtown, Fremont, or South Lake Union. An opportunity to bring your vision to this classic home and live the Queen Anne lifestyle!