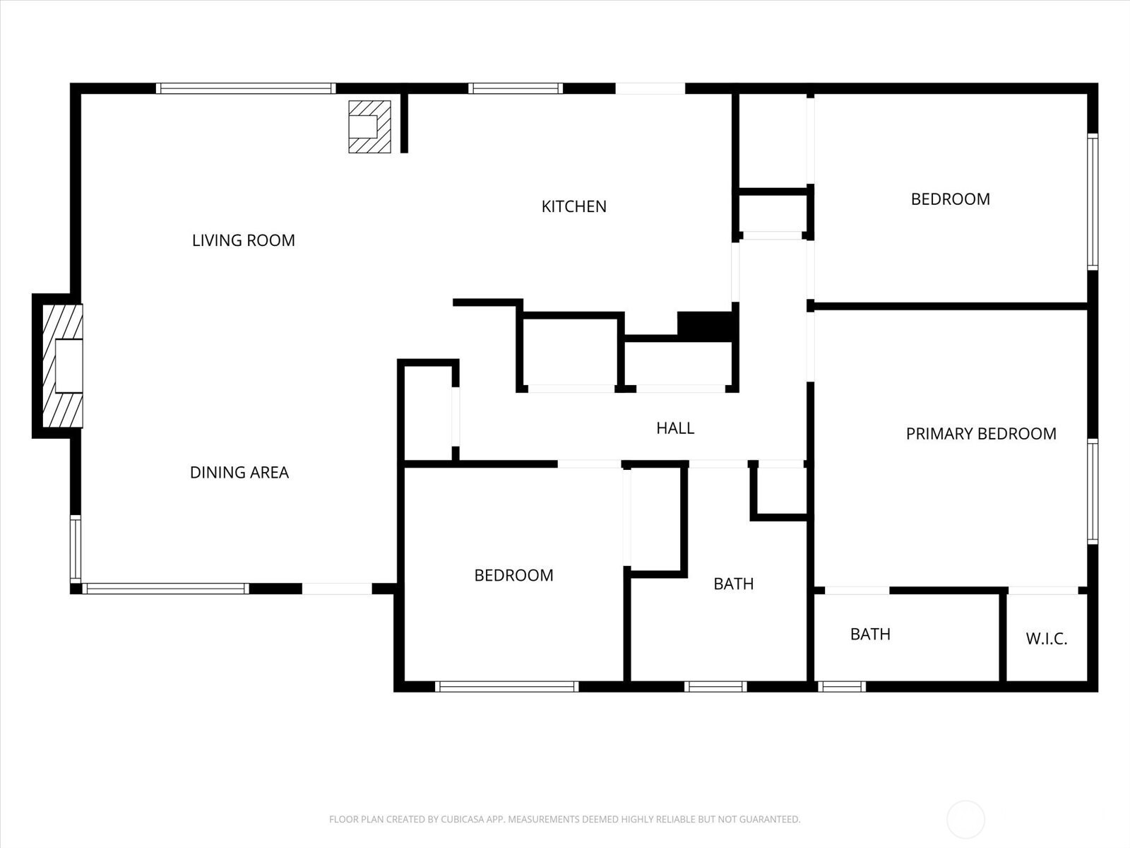
Welcome to the heart of Bothell! This charming mid-century rambler sits on a corner lot in a quiet neighborhood just moments from Main St. and Bothell Landing. Offering true one-level living, this thoughtfully updated home features 3 bedrooms, 1.75 bathrooms, a thoughtfully designed and remodeled kitchen & refinished hardwood floors spilling throughout. Enjoy mountain views from the primary bedroom and relax in the fully fenced backyard, which offers privacy and garden space ready for your green thumb. The inviting covered front porch and cozy wood-burning stove add warmth and character. No HOA in this neighborhood! Enjoy the ease of leaving your car at home and walking to Bothell’s restaurants, coffee shops, parks, and the Sammamish River Trail. Just a stroll to McMenamins, Pop Keeney Stadium, local shops, and all downtown Bothell has to offer. Easy access to UW Bothell, I-405, Hwy 522, and Bothell Everett Hwy. Located in the highly sought-after Northshore School District.
Listing Provided Courtesy of Katie Silver, Real Broker LLC
General Information
NWM2488393
Single Family Residence
1
DOM
3
8494.2 SqFt
2
1374
1959
King
Maywood Hills E
Canyon Park Mid
Bothell Hs
Residential
Single Family Residence
Listing Provided Courtesy of Katie Silver, Real Broker LLC
Krishna Realty data last checked: Mar 07, 2026 01:46 | Listing last modified Mar 06, 2026 17:24,
Source:
Open House
Sat, Mar 7th, 11AM to 2PM
Sun, Mar 8th, 11AM to 2PM
Download our Mobile app
Residence Information
1374
2/Gas
3
1
0
2
Composition
10 - 1 Story
1959
Poured Concrete
Features and Utilities
Bath Off Primary, Dbl Pane/Storm Window, Fireplace, Water Heater
Wood Products
Public
Sewer Connected
Financial
6759
Cash, Conventional
03-06-2026
Comparable Information
1
1
Cash, Conventional
$895,000
$895,000
Mar 06, 2026 17:24
Schools
Elementary : Maywood Hills EN/ARatings Middle : Canyon Park Mid N/ARatings High : Bothell HsN/ARatings
Welcome to the heart of Bothell! This charming mid-century rambler sits on a corner lot in a quiet neighborhood just moments from Main St. and Bothell Landing. Offering true one-level living, this thoughtfully updated home features 3 bedrooms, 1.75 bathrooms, a thoughtfully designed and remodeled kitchen & refinished hardwood floors spilling throughout. Enjoy mountain views from the primary bedroom and relax in the fully fenced backyard, which offers privacy and garden space ready for your green thumb. The inviting covered front porch and cozy wood-burning stove add warmth and character. No HOA in this neighborhood! Enjoy the ease of leaving your car at home and walking to Bothell’s restaurants, coffee shops, parks, and the Sammamish River Trail. Just a stroll to McMenamins, Pop Keeney Stadium, local shops, and all downtown Bothell has to offer. Easy access to UW Bothell, I-405, Hwy 522, and Bothell Everett Hwy. Located in the highly sought-after Northshore School District.