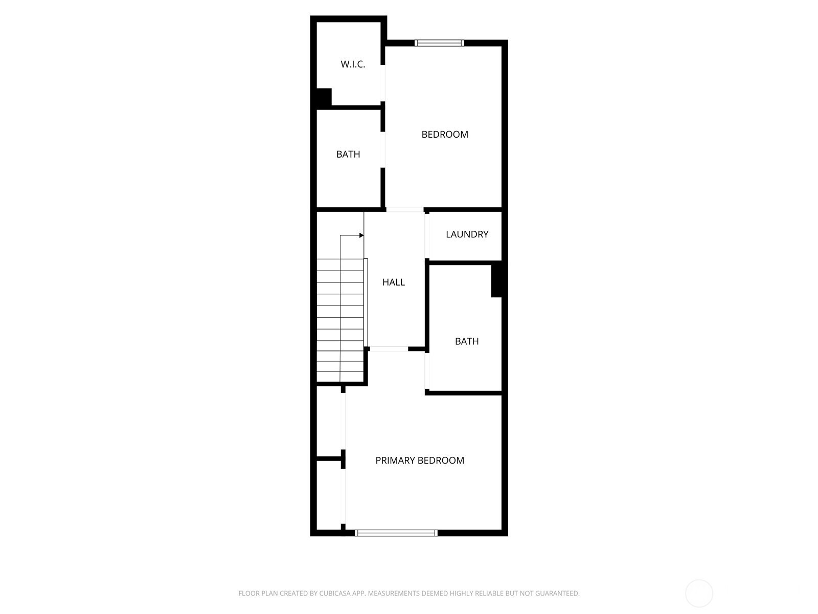
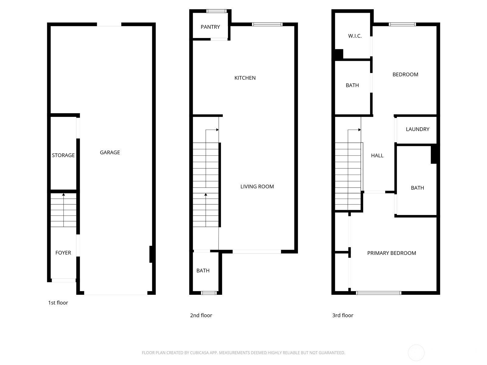
Located in Normandy Park’s Sapphire community, this light-filled 3-story NW contemporary townhome offers a private setting with open surroundings and a quiet residential feel. Built in 2023, the home has been thoughtfully maintained and enhanced with select upgrades throughout. The open-concept main level features durable LVP flooring, a spacious kitchen with quartz countertops, stainless steel appliances, breakfast bar seating & a walk-in pantry-all flowing seamlessly into the bright living area for both everyday living & entertaining. A convenient main-level half bath adds functionality, while the covered front deck extends your living space outdoors for year-round enjoyment. Upstairs, you’ll find two private ensuite bedroom suites, each with its own bath and generous closet space, including a walk-in closet. Set within a quaint 22-unit community with a dedicated dog park, additional highlights include a two-car garage with driveway parking, a level backyard, dedicated laundry area & ample guest parking within the community, along with additional approved parking nearby. Conveniently located near Normandy Park’s scenic Cove waterfront, parks, shopping, dining, and major commuter routes, with easy access to Sea-Tac Airport and approximately 30 minutes to downtown Seattle—this home offers modern comfort, thoughtful design, and a location that balances accessibility with a peaceful neighborhood setting. A transferable 6-year builder warranty provides added piece of mind.
Listing Provided Courtesy of Alicia Dawn Brown, Real Broker LLC
General Information
NWM2508803
Single Family Residence
20
DOM
2
1354.72 SqFt
1.5
1340
2023
King
Marvista Elem
Sylvester Mid
Mount Rainier H
Residential
Single Family Residence
Listing Provided Courtesy of Alicia Dawn Brown, Real Broker LLC
Krishna Realty data last checked: May 08, 2026 19:48 | Listing last modified May 07, 2026 23:28,
Source:
Located in Normandy Park’s Sapphire community, this light-filled 3-story NW contemporary townhome offers a private setting with open surroundings and a quiet residential feel. Built in 2023, the home has been thoughtfully maintained and enhanced with select upgrades throughout. The open-concept main level features durable LVP flooring, a spacious kitchen with quartz countertops, stainless steel appliances, breakfast bar seating & a walk-in pantry-all flowing seamlessly into the bright living area for both everyday living & entertaining. A convenient main-level half bath adds functionality, while the covered front deck extends your living space outdoors for year-round enjoyment. Upstairs, you’ll find two private ensuite bedroom suites, each with its own bath and generous closet space, including a walk-in closet. Set within a quaint 22-unit community with a dedicated dog park, additional highlights include a two-car garage with driveway parking, a level backyard, dedicated laundry area & ample guest parking within the community, along with additional approved parking nearby. Conveniently located near Normandy Park’s scenic Cove waterfront, parks, shopping, dining, and major commuter routes, with easy access to Sea-Tac Airport and approximately 30 minutes to downtown Seattle—this home offers modern comfort, thoughtful design, and a location that balances accessibility with a peaceful neighborhood setting. A transferable 6-year builder warranty provides added piece of mind.