Kirkland, WA 98033
3 Bed
4 Bath
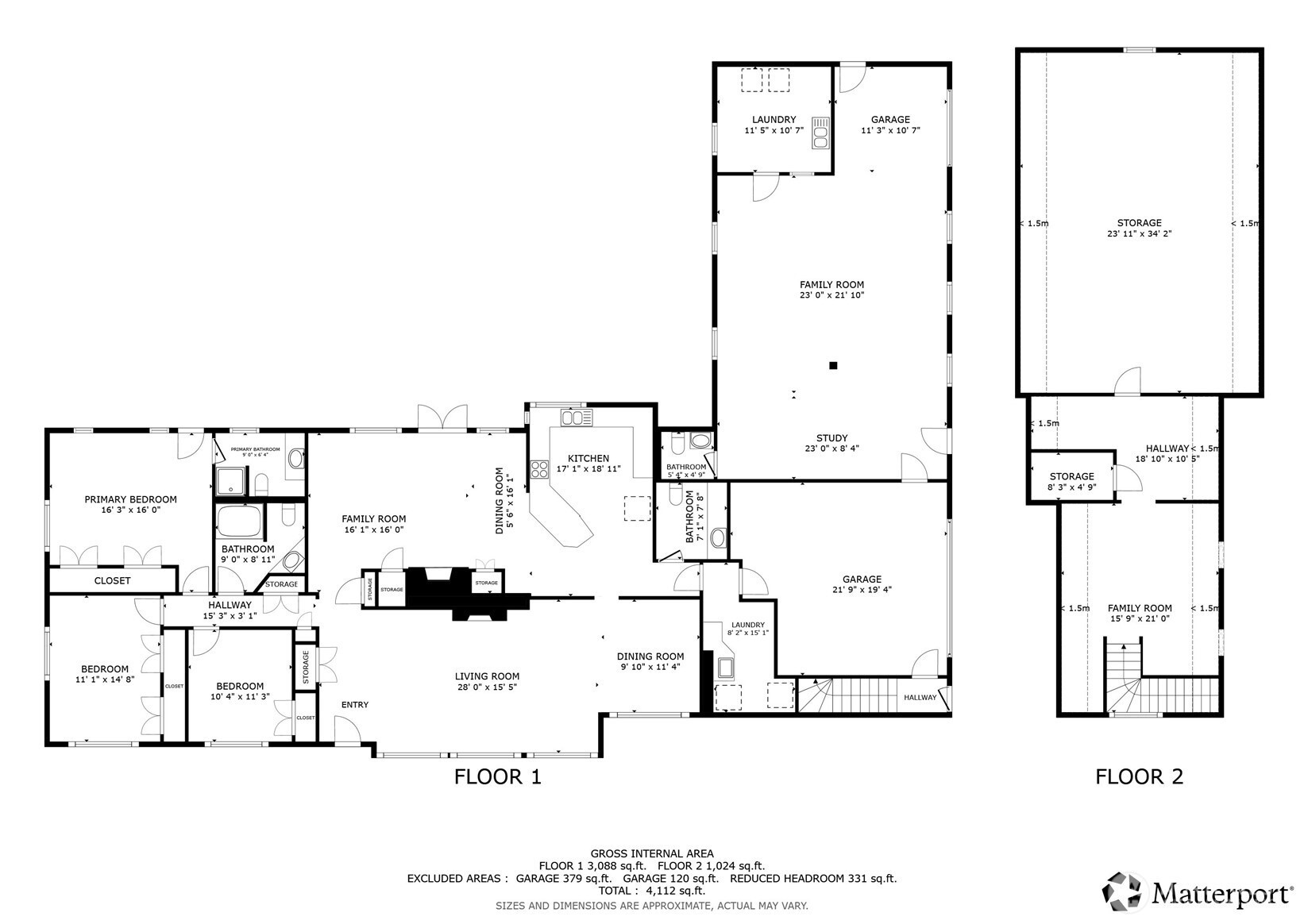
3399 SqFt
44 DOM
Built: 1955
$2,988,000
$2988000
3 Bed
4 Bath
3399 SqFt
44 DOM
Built: 1955
Principal Broker
(503) 893-8874Nestled against the expansive 489-acre Bridle Trails State Park, this rare gem in coveted Bridle Trails offers peaceful sanctuary close to Kirkland, Redmond, and Microsoft. A beautifully updated home on a generous 1.4 acre lot with barn and fenced horse pasture delivers both modern comfort and equestrian lifestyle. Enjoy private forested boundaries, direct trail access, and parkland views. Bridlewood Circle is Eastside equestrian country—serene, sought-after, and utterly unforgettable. Saddle up—home and park await. Don't miss the extra 732 square feet of partially finished space on the upper floor over the garage. Home Inspection available on request.
Listing Provided Courtesy of Ron Upshaw, Kelly Right RE of Seattle LLC
NWM2342519
Single Family Residence
44 DOM
3
1.43 acres
4
3399
1955
King
Franklin Elem
Rose Hill Middl
Lake Wash High
Residential
Single Family Residence
Listing Provided Courtesy of Ron Upshaw, Kelly Right RE of Seattle LLC
Krishna Realty data last checked: Nov 01, 2025 22:58 | Listing last modified Oct 26, 2025 17:49,
Source:
Download our Mobile app
3399
2/Gas
3
1
2
4
Metal
3,
11 - 1 1/2 Story
1955
None
None
Poured Concrete, Sla
Dishwasher(s), Disposal, Dryer(s), Microwave(s), Refrigerator(s), Stove(s)/Range(s), Washer(s)
Bath Off Primary, Double Pane/Storm Window, Dining Room, Fireplace, French Doors, Hot Tub/Spa, Skyli
Wood, Wood Products
Public
Septic Tank
17157
Cash Out, Conventional
09-12-2025
44
44
Cash Out, Conventional
$3,100,000
$3,100,000
Oct 26, 2025 17:49
Listing courtesy of Kelly Right RE of Seattle LLC.
The content relating to real estate for sale on this site comes in part from the IDX program of the NWMLS of Seattle, Washington.
Real Estate listings held by brokerage firms other than this firm are marked with the NWMLS logo, and
detailed information about these properties include the name of the listing's broker.
Listing content is copyright © 2025 NWMLS of Seattle, Washington.
All information provided is deemed reliable but is not guaranteed and should be independently verified.
Krishna Realty data last checked: Nov 01, 2025 22:58 | Listing last modified Oct 26, 2025 17:49.
Some properties which appear for sale on this web site may subsequently have sold or may no longer be available.
Principal Broker
(503) 893-8874Nestled against the expansive 489-acre Bridle Trails State Park, this rare gem in coveted Bridle Trails offers peaceful sanctuary close to Kirkland, Redmond, and Microsoft. A beautifully updated home on a generous 1.4 acre lot with barn and fenced horse pasture delivers both modern comfort and equestrian lifestyle. Enjoy private forested boundaries, direct trail access, and parkland views. Bridlewood Circle is Eastside equestrian country—serene, sought-after, and utterly unforgettable. Saddle up—home and park await. Don't miss the extra 732 square feet of partially finished space on the upper floor over the garage. Home Inspection available on request.
Download our Mobile app