Seattle, WA 98112
3 Bed
0.5 Bath
1740 SqFt
5 DOM
Built: 1900
$1,795,000
$1795000
3 Bed
0.5 Bath
1740 SqFt
5 DOM
Built: 1900
Principal Broker
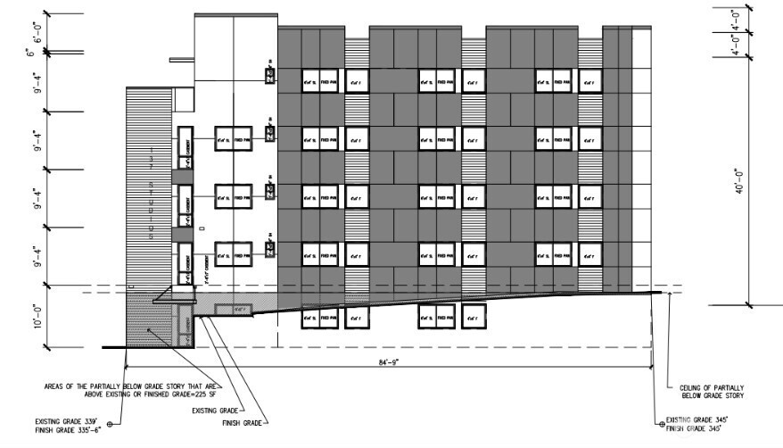
(503) 893-8874Prime SHOVEL READY development site in Seattle’s vibrant Capitol Hill neighborhood. Permits for a 31 unit Small Efficiency Dwelling Unit (SEDU) apartment building have been APPROVED, PAID for, and INCLUDED with the sale. This project is ready for its new owner to break ground on immediately! There are striking mountain, lake, and territorial views from the second story of the existing home, so a buyer can expect views in all directions from the three upper levels of the proposed building. The property is situated in an ideal Capitol Hill location on a corner lot, steps from Miller Park, very close to Pike/Pine, mass transit, Downtown Seattle, and everything Capitol Hill has to offer. Full plan set and permit available upon request.
Listing Provided Courtesy of Max Hoge, KW Greater Seattle
NWM2481610
Single Family Residence
5 DOM
3
4199.18 SqFt
0.5
1740
1900
King
Stevens
Meany Mid
Garfield High
Residential
Single Family Residence
Listing Provided Courtesy of Max Hoge, KW Greater Seattle
Krishna Realty data last checked: Mar 16, 2026 21:24 | Listing last modified Mar 05, 2026 20:05,
Source:
Download our Mobile app
1740
1/Gas
3
0
1
0.5
Composition
12 - 2 Story
1900
None
None
Poured Concrete
Dishwasher(s), Dryer(s), Microwave(s), Refrigerator(s), Stove(s)/Range(s), Washer(s)
Bath Off Primary, Dbl Pane/Storm Window, Dining Room, Fireplace, French Doors, Water Heater
Wood
Public
Sewer Connected
10227
Cash, Conventional, FHA, VA Loan
02-18-2026
5
5
Cash, Conventional, FHA, VA Loan
$1,795,000
$1,795,000
Mar 05, 2026 20:05
Listing courtesy of KW Greater Seattle.
The content relating to real estate for sale on this site comes in part from the IDX program of the NWMLS of Seattle, Washington.
Real Estate listings held by brokerage firms other than this firm are marked with the NWMLS logo, and
detailed information about these properties include the name of the listing's broker.
Listing content is copyright © 2026 NWMLS of Seattle, Washington.
All information provided is deemed reliable but is not guaranteed and should be independently verified.
Krishna Realty data last checked: Mar 16, 2026 21:24 | Listing last modified Mar 05, 2026 20:05.
Some properties which appear for sale on this web site may subsequently have sold or may no longer be available.
Principal Broker
(503) 893-8874Prime SHOVEL READY development site in Seattle’s vibrant Capitol Hill neighborhood. Permits for a 31 unit Small Efficiency Dwelling Unit (SEDU) apartment building have been APPROVED, PAID for, and INCLUDED with the sale. This project is ready for its new owner to break ground on immediately! There are striking mountain, lake, and territorial views from the second story of the existing home, so a buyer can expect views in all directions from the three upper levels of the proposed building. The property is situated in an ideal Capitol Hill location on a corner lot, steps from Miller Park, very close to Pike/Pine, mass transit, Downtown Seattle, and everything Capitol Hill has to offer. Full plan set and permit available upon request.
Download our Mobile app