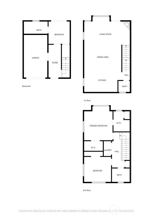
This 3-bedroom, 3.5-bath townhouse offers comfort, flexibility, and convenience in the vibrant North Beacon Hill neighborhood – just blocks from the new light rail and no HOA! With high ceilings, a cozy gas fireplace, and a powder room for guests, the main level is designed for easy living and entertaining. The open concept space features refinished hardwood floors, a bright living room and generous dining space. A breakfast bar looks into the well-appointed kitchen with abundant cabinetry, stainless steel appliances, and expansive quartz counter space. Upstairs you'll find the spacious primary suite with full bathroom and a walk-in closet with custom storage system. The second bedroom, additional full bath and convenient laundry closet complete the upper level. The lower-level offers flexibility with a bedroom, full bathroom and slider to the fully fenced yard—perfect for a guest suite, work from home office, or hobby space. Private patio becomes your spring time oasis with mature Katsura and Spanish Maple trees. Private, attached garage offers additional storage. Additional features include new carpet, beautiful millwork, two new windows, tankless hot water heater and a hydronic heating system. Located near Jefferson Park, golf, dining, and recreation. Less than half a mile to the Judkins Park Light Rail Station with direct service to downtown, Mercer Island, Bellevue, and Redmond. Easy access to I-5, I-90, transit, Harborview, stadiums, and more.
Listing Provided Courtesy of Dana Penuela, Real Broker LLC
General Information
NWM2492062
Single Family Residence
1
DOM
3
1267.6 SqFt
3.5
1360
2007
King
Buyer To Verify
Buyer To Verify
Buyer To Verify
Residential
Single Family Residence
Listing Provided Courtesy of Dana Penuela, Real Broker LLC
Krishna Realty data last checked: Mar 20, 2026 03:05 | Listing last modified Mar 19, 2026 20:51,
Source:
Open House
Sat, Mar 21st, 3PM to 5PM
Sun, Mar 22nd, 2PM to 4PM
Download our Mobile app
Residence Information
1360
1/Gas
3
3
1
3.5
Composition
32 - Townhouse
2007
None
None
Slab
Features and Utilities
Dishwasher, Disposal, Dryer, Microwave, Refrigerator, Stove(s)/Range(s), Tankless Water Heater, Wash
Bath Off Primary, Dbl Pane/Storm Window, Fireplace, Vaulted Ceiling(s), Walk-In Closet(s), Water Hea
Cement Planked, Wood Products
Public
Sewer Connected
Financial
6332
Cash, Conventional, FHA, VA Loan
03-19-2026
2995
Comparable Information
1
1
Cash, Conventional, FHA, VA Loan
$750,000
$750,000
Mar 19, 2026 20:51
Schools
Elementary : Buyer To VerifyN/ARatings Middle : Buyer To Verify N/ARatings High : Buyer To VerifyN/ARatings
This 3-bedroom, 3.5-bath townhouse offers comfort, flexibility, and convenience in the vibrant North Beacon Hill neighborhood – just blocks from the new light rail and no HOA! With high ceilings, a cozy gas fireplace, and a powder room for guests, the main level is designed for easy living and entertaining. The open concept space features refinished hardwood floors, a bright living room and generous dining space. A breakfast bar looks into the well-appointed kitchen with abundant cabinetry, stainless steel appliances, and expansive quartz counter space. Upstairs you'll find the spacious primary suite with full bathroom and a walk-in closet with custom storage system. The second bedroom, additional full bath and convenient laundry closet complete the upper level. The lower-level offers flexibility with a bedroom, full bathroom and slider to the fully fenced yard—perfect for a guest suite, work from home office, or hobby space. Private patio becomes your spring time oasis with mature Katsura and Spanish Maple trees. Private, attached garage offers additional storage. Additional features include new carpet, beautiful millwork, two new windows, tankless hot water heater and a hydronic heating system. Located near Jefferson Park, golf, dining, and recreation. Less than half a mile to the Judkins Park Light Rail Station with direct service to downtown, Mercer Island, Bellevue, and Redmond. Easy access to I-5, I-90, transit, Harborview, stadiums, and more.