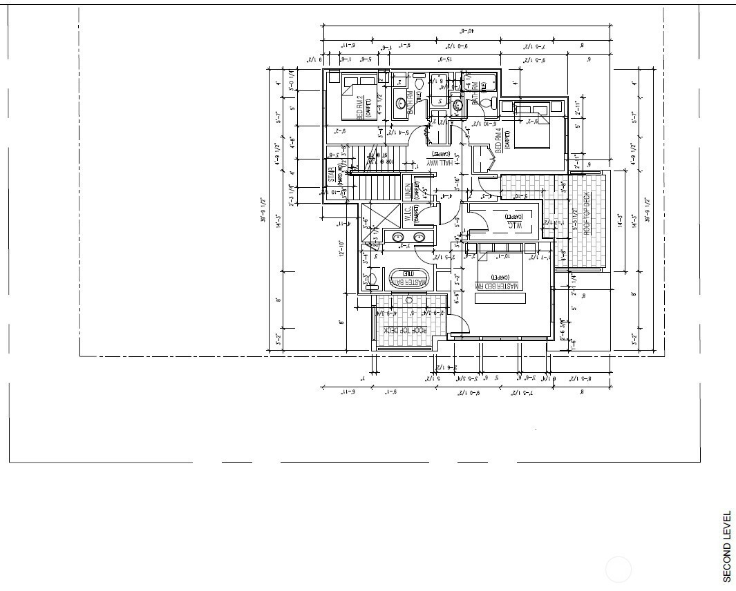
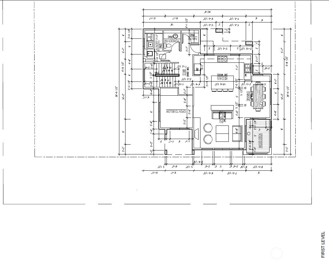
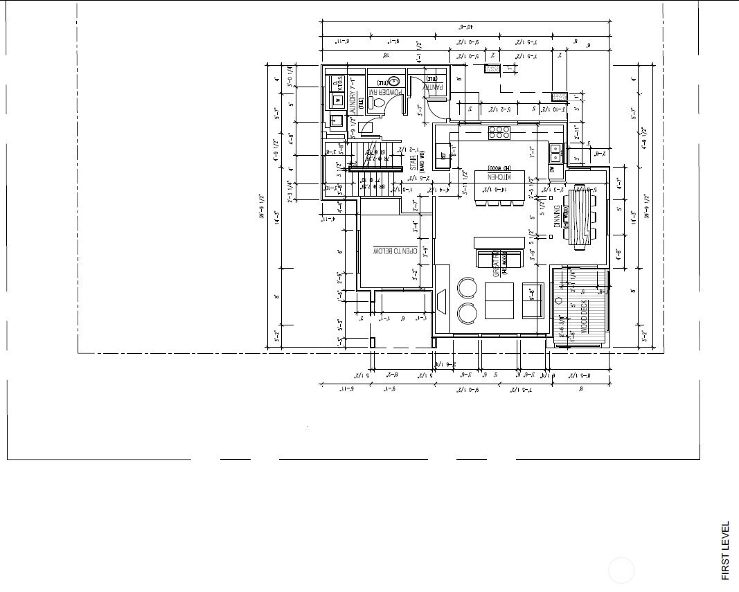
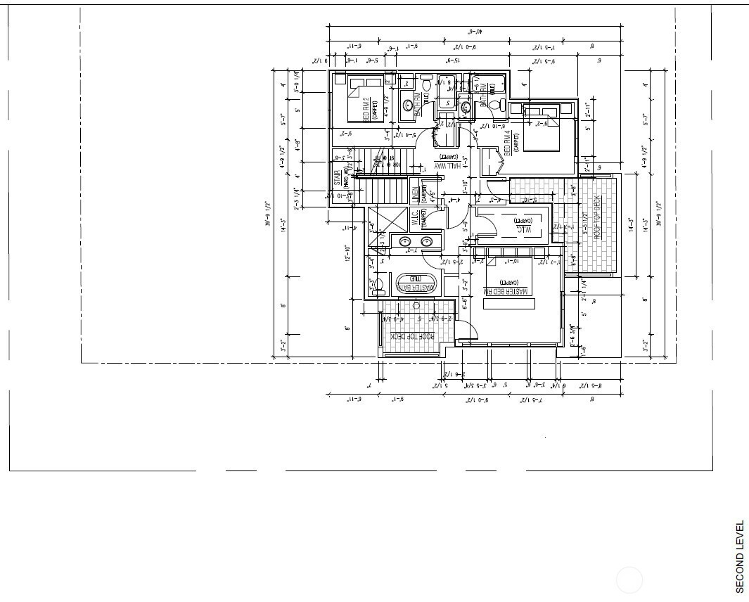
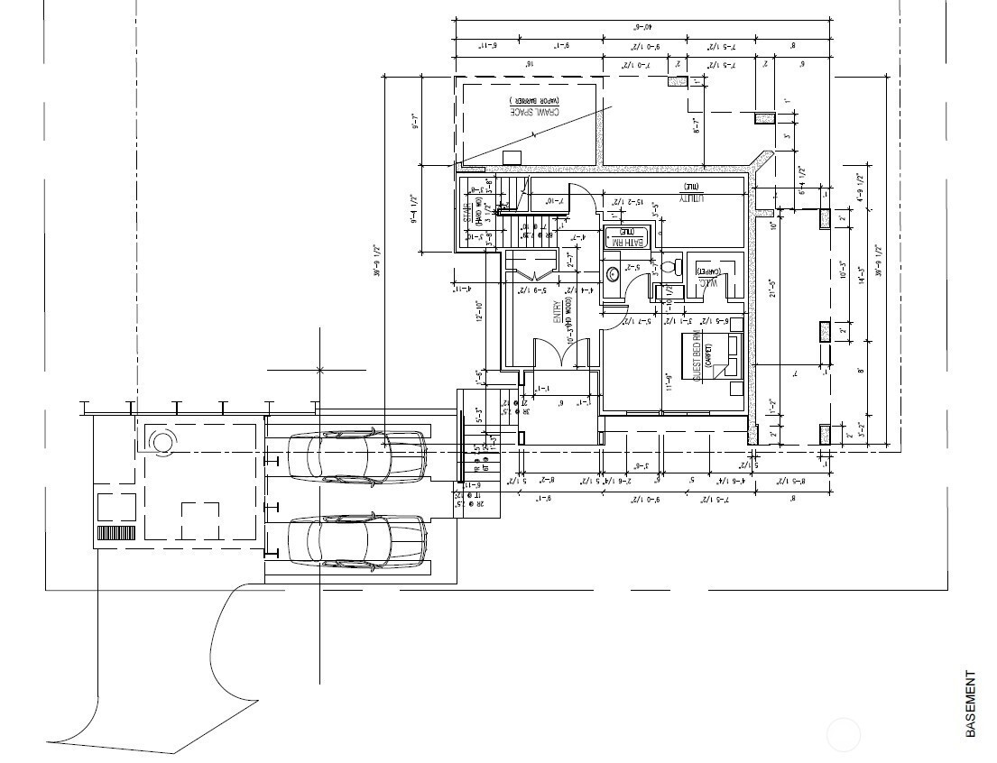
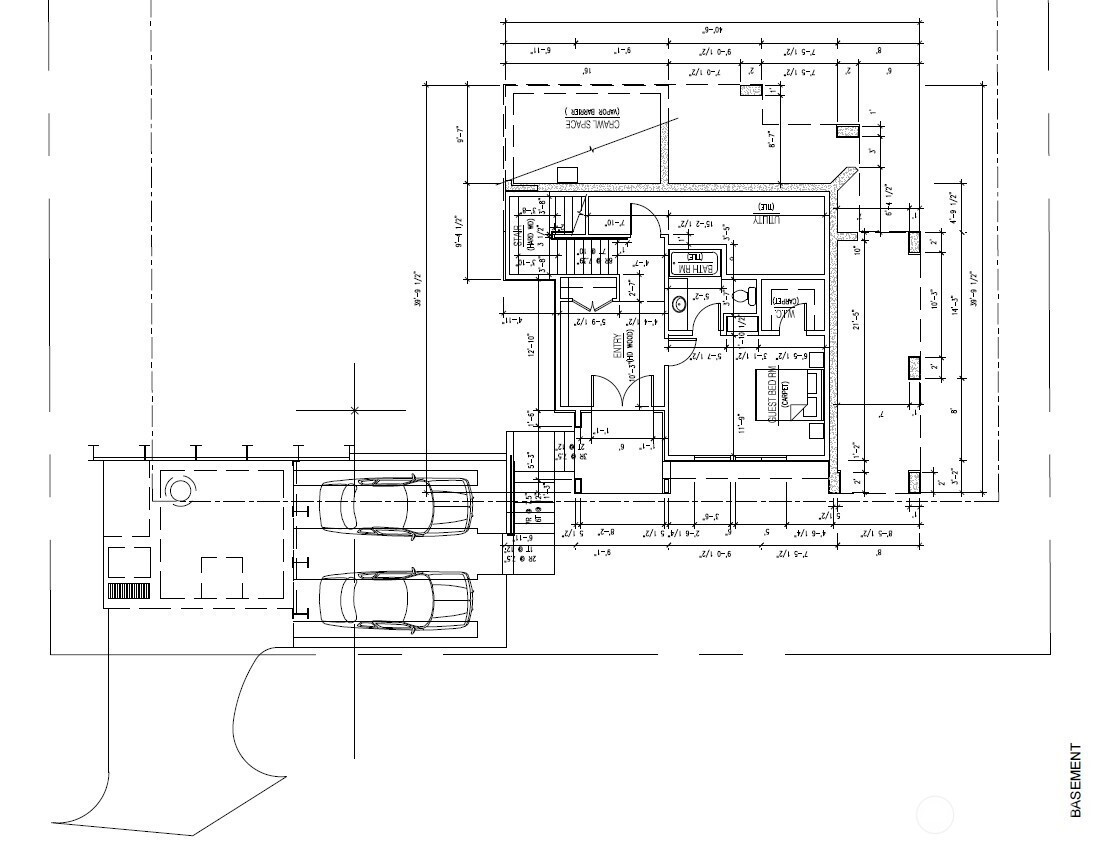
APPROVED PERMITS FOR FLOOR PLANS 3055 SFT. Spent $350000 on topographical survey, title report, soil test, Geo-Tech, structural and civil engineering drainage plans which means you are saving close to 12 months of time/effort in pre-permitting. Located in a quiet cul-de-sac just blocks from Lake Sammamish, this property is surrounded by high-end homes. This prime location is perfect for builders, developers, or anyone looking to design and build their dream home in a premier Eastside community. Build your dream! This is a rectangular lot. Enjoy convenient access to parks, trails, award-winning Lake Washington schools, and a location just minutes from Redmond, Bellevue and Issaquah. Optional Inglewood Beach Club Membership. Located just minutes from both Issaquah & Redmond Bring your vision, lots like this rarely come Available! Permitted plans are included in the list price. Photos contain rendering.
Listing Provided Courtesy of Pranathi Nandivada, Kelly Right RE of Seattle LLC
General Information
NWM2500085
Land
21
DOM
10001.38 SqFt
0
Residen
King
Mead Elem
Inglewood Middl
Eastlake High
Land
Land
Listing Provided Courtesy of Pranathi Nandivada, Kelly Right RE of Seattle LLC
Krishna Realty data last checked: Apr 21, 2026 16:47 | Listing last modified Apr 20, 2026 19:37,
Source:
APPROVED PERMITS FOR FLOOR PLANS 3055 SFT. Spent $350000 on topographical survey, title report, soil test, Geo-Tech, structural and civil engineering drainage plans which means you are saving close to 12 months of time/effort in pre-permitting. Located in a quiet cul-de-sac just blocks from Lake Sammamish, this property is surrounded by high-end homes. This prime location is perfect for builders, developers, or anyone looking to design and build their dream home in a premier Eastside community. Build your dream! This is a rectangular lot. Enjoy convenient access to parks, trails, award-winning Lake Washington schools, and a location just minutes from Redmond, Bellevue and Issaquah. Optional Inglewood Beach Club Membership. Located just minutes from both Issaquah & Redmond Bring your vision, lots like this rarely come Available! Permitted plans are included in the list price. Photos contain rendering.
Similar Properties
Download our Mobile app
$259,950
Bed
Bath
0 SqFt
20 DOM
100 210th Avenue NE,
Sammamish, 98074
$5,000,000
Bed
Bath
0 SqFt
48 DOM
332 Louis Thompson Road NE,
Sammamish, 98074
$825,000
Bed
Bath
0 SqFt
67 DOM
23 YURT E Lake Sammamish Parkway NE,
Sammamish, 98074