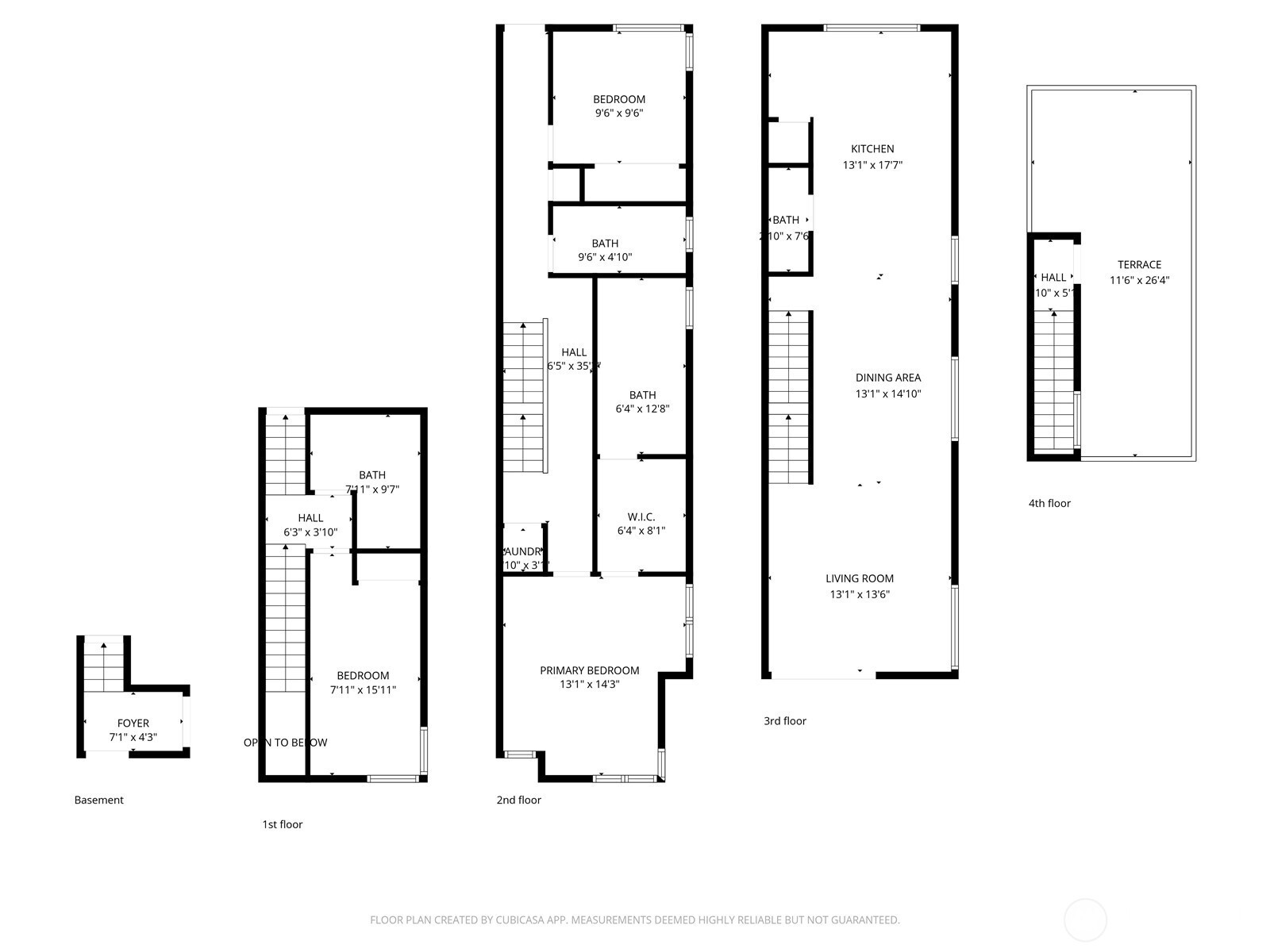
Bright, modern townhouse living with Downtown Seattle views, abundant natural light, and outdoor space you’ll actually use. The home’s top-floor living level is where everything comes together — 9’ ceilings, large windows, and southern exposure fill the space with light while framing Downtown Seattle skyline views. Sliding doors open directly to a spacious deck off the living room, creating an easy indoor-outdoor connection for grilling, relaxing, or entertaining. One level above, a rooftop deck offers an additional outdoor retreat and another place to enjoy the city views. The open kitchen features quartz countertops, stainless appliances, island seating, and pantry storage, flowing naturally into the dining and living spaces. Large bedrooms provide flexibility for guests, work-from-home space, or everyday living. Fresh interior paint and new carpet make the home feel clean and move-in ready. A convenient second-floor entry directly from the parking area makes daily comings and goings easy. The home also has a surprisingly private feel compared to many townhomes, creating a comfortable sense of separation from neighboring homes. Located near Judkins Park with quick access to I-90, commuting is easy to Downtown Seattle, Bellevue, and the Eastside tech corridor. The nearby Judkins Park Light Rail Station and multiple Metro bus routes provide excellent connectivity throughout the city. Modern design, great light, outdoor living, and strong transit, what's not to love!
Listing Provided Courtesy of Matthew J Miner, COMPASS
General Information
NWM2490570
Single Family Residence
1
DOM
3
1820.81 SqFt
2.5
1824
2020
King
Thurgood Marsha
Wash Mid
Garfield High
Residential
Single Family Residence
Listing Provided Courtesy of Matthew J Miner, COMPASS
Krishna Realty data last checked: Mar 14, 2026 01:03 | Listing last modified Mar 12, 2026 12:02,
Source:
Bright, modern townhouse living with Downtown Seattle views, abundant natural light, and outdoor space you’ll actually use. The home’s top-floor living level is where everything comes together — 9’ ceilings, large windows, and southern exposure fill the space with light while framing Downtown Seattle skyline views. Sliding doors open directly to a spacious deck off the living room, creating an easy indoor-outdoor connection for grilling, relaxing, or entertaining. One level above, a rooftop deck offers an additional outdoor retreat and another place to enjoy the city views. The open kitchen features quartz countertops, stainless appliances, island seating, and pantry storage, flowing naturally into the dining and living spaces. Large bedrooms provide flexibility for guests, work-from-home space, or everyday living. Fresh interior paint and new carpet make the home feel clean and move-in ready. A convenient second-floor entry directly from the parking area makes daily comings and goings easy. The home also has a surprisingly private feel compared to many townhomes, creating a comfortable sense of separation from neighboring homes. Located near Judkins Park with quick access to I-90, commuting is easy to Downtown Seattle, Bellevue, and the Eastside tech corridor. The nearby Judkins Park Light Rail Station and multiple Metro bus routes provide excellent connectivity throughout the city. Modern design, great light, outdoor living, and strong transit, what's not to love!