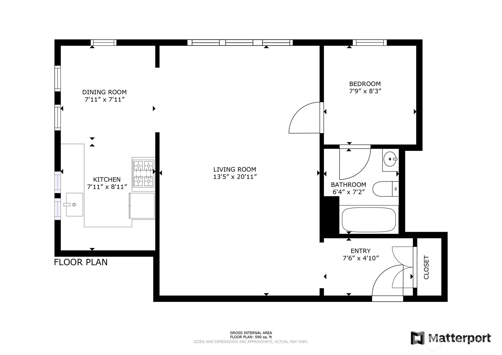
Enjoy a treetop perspective from this top-floor corner unit, elevated above a quiet, tree-lined street and bathed in natural light from abundant windows – 9 to be exact! Historic period details with original oak hardwoods, rich millwork, & coved ceilings. Yet, this home is beautifully updated where it counts with a clean, modern kitchen and stylish bath. SECURE GARAGE PARKING – a rare and valuable find in the neighborhood – completes the package. Queen’s Court is a well-maintained building positioned in the heart of Lower Queen Anne. With a 97 Walk Score, it’s just one block to Climate Pledge Arena and Seattle Center, not to mention countless amenities. Pet-friendly HOA with community garden, library, laundry room, & assigned storage space.
Listing Provided Courtesy of Chris Conroy, Ensemble
General Information
NWM2433139
Condominium
176
DOM
1
0 SqFt
1
571
1930
King
John Hay Elemen
Mc Clure Mid
Lincoln High
Residential
Condominium
Listing Provided Courtesy of Chris Conroy, Ensemble
Krishna Realty data last checked: Oct 31, 2025 10:49 | Listing last modified Oct 16, 2025 16:18,
Source:
Enjoy a treetop perspective from this top-floor corner unit, elevated above a quiet, tree-lined street and bathed in natural light from abundant windows – 9 to be exact! Historic period details with original oak hardwoods, rich millwork, & coved ceilings. Yet, this home is beautifully updated where it counts with a clean, modern kitchen and stylish bath. SECURE GARAGE PARKING – a rare and valuable find in the neighborhood – completes the package. Queen’s Court is a well-maintained building positioned in the heart of Lower Queen Anne. With a 97 Walk Score, it’s just one block to Climate Pledge Arena and Seattle Center, not to mention countless amenities. Pet-friendly HOA with community garden, library, laundry room, & assigned storage space.