Seattle, WA 98177
5 Bed
4 Bath
4683 SqFt
16 DOM
Built: 1975
$2,200,000










































$2200000
5 Bed
4 Bath
4683 SqFt
16 DOM
Built: 1975
Principal Broker
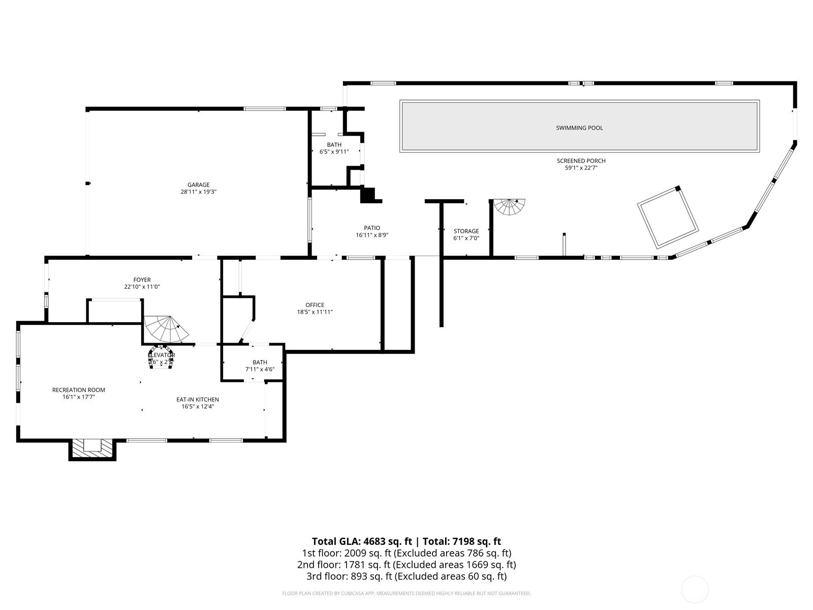
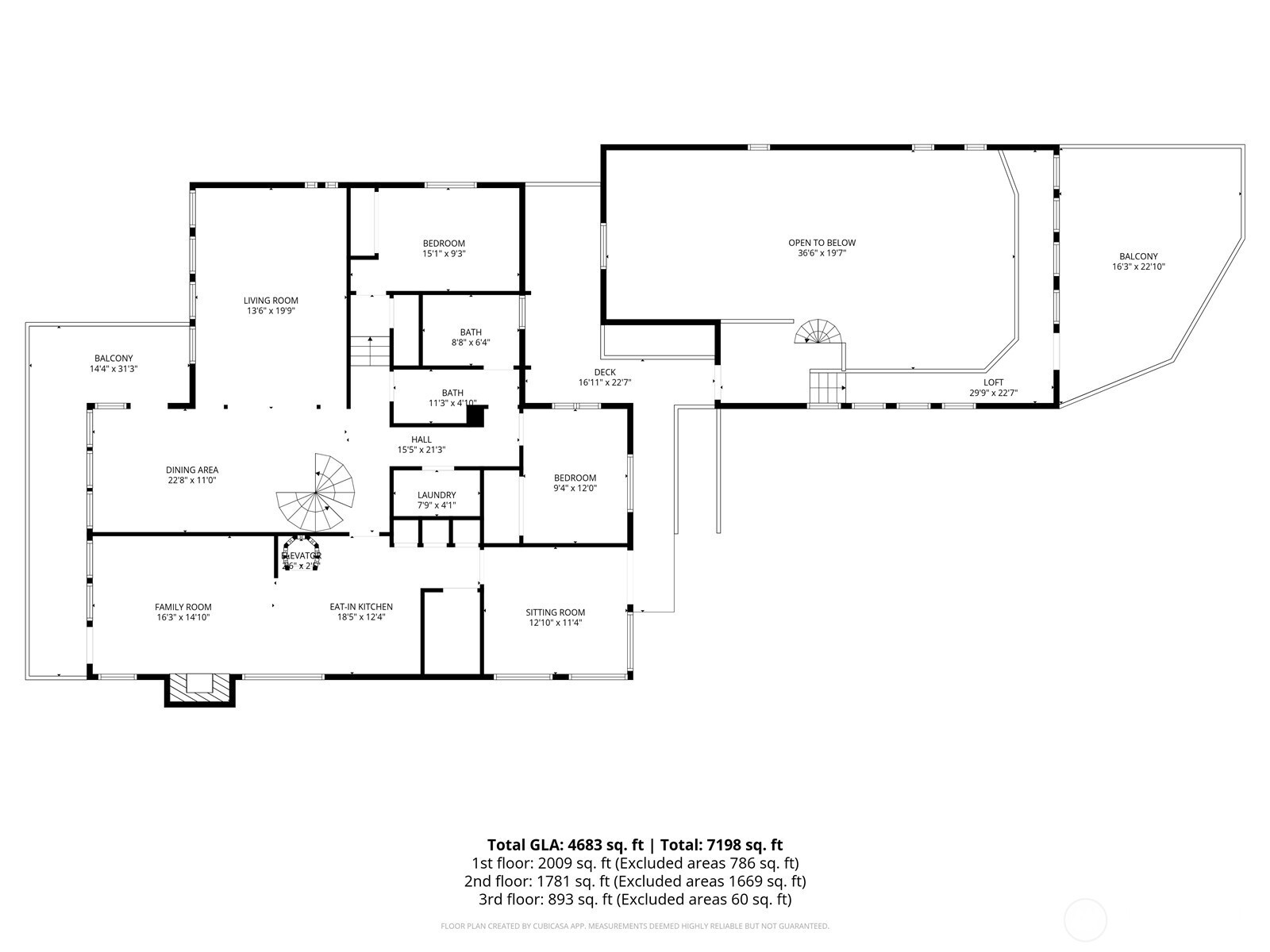
(503) 893-8874Welcome to Seacrest, a rare Broadview haven built to embrace sweeping Puget Sound views. Tucked just a few houses from the shoreline on a quiet cul de sac, this lovingly crafted home was designed for the builder’s daughter and reflects warmth, care, and thoughtful intention throughout. Freshly painted inside and out, with new flooring and updated kitchen and baths, the home feels beautifully refreshed. Floor to ceiling windows frame protected Sound views, and a recently installed modern elevator offers effortless access across all levels. The top floor features two bedrooms including a primary suite with 3/4 bath, and its own private view balcony. A rare indoor lap pool, sauna, steam shower, and six person hot tub create an incredible resort like wellness retreat right at home! Downstairs, a suite with it's own entrance, or can be used as a rec room with spare bedroom with full bath.The main level invites everyday ease with direct gated parking access to the kitchen from the private road behind the home. The main floor includes two bedrooms, a full bath, laundry room, the kitchen, sun room, a formal dining room, a spacious family room, a living room illuminated by impressive two story view windows that capture the Sound, and a view deck that looks out toward the water. The backyard is partially fenced, large and private surrounded by trees with a small covered deck off the family room. Don't miss this rare Seattle beauty!
Listing Provided Courtesy of Matt Steel, Steel Realty Group, LLC
NWM2456941
Single Family Residence
16 DOM
5
10506.67 SqFt
4
4683
1975
King
Broadview-Thoms
Robert Eagle St
Ingraham High
Residential
Single Family Residence
Listing Provided Courtesy of Matt Steel, Steel Realty Group, LLC
Krishna Realty data last checked: Feb 21, 2026 23:45 | Listing last modified Feb 22, 2026 03:29,
Source:
Download our Mobile app
4683
3/Gas
5
2
0
4
Composition
15 - Multi Level
1975
Poured Concrete
Dishwasher(s), Disposal, Dryer(s), Microwave(s), Refrigerator(s), Stove(s)/Range(s), Washer(s)
Second Kitchen, Bath Off Primary, Dining Room, Elevator, Fireplace, Fireplace (Primary Bedroom), Fre
Wood
Public
Sewer Connected
20039.07
Conventional, FHA, VA Loan
02-05-2026
16
16
Conventional, FHA, VA Loan
$2,200,000
$2,200,000
Feb 22, 2026 03:29
Listing courtesy of Steel Realty Group, LLC.
The content relating to real estate for sale on this site comes in part from the IDX program of the NWMLS of Seattle, Washington.
Real Estate listings held by brokerage firms other than this firm are marked with the NWMLS logo, and
detailed information about these properties include the name of the listing's broker.
Listing content is copyright © 2026 NWMLS of Seattle, Washington.
All information provided is deemed reliable but is not guaranteed and should be independently verified.
Krishna Realty data last checked: Feb 21, 2026 23:45 | Listing last modified Feb 22, 2026 03:29.
Some properties which appear for sale on this web site may subsequently have sold or may no longer be available.
Principal Broker
(503) 893-8874Welcome to Seacrest, a rare Broadview haven built to embrace sweeping Puget Sound views. Tucked just a few houses from the shoreline on a quiet cul de sac, this lovingly crafted home was designed for the builder’s daughter and reflects warmth, care, and thoughtful intention throughout. Freshly painted inside and out, with new flooring and updated kitchen and baths, the home feels beautifully refreshed. Floor to ceiling windows frame protected Sound views, and a recently installed modern elevator offers effortless access across all levels. The top floor features two bedrooms including a primary suite with 3/4 bath, and its own private view balcony. A rare indoor lap pool, sauna, steam shower, and six person hot tub create an incredible resort like wellness retreat right at home! Downstairs, a suite with it's own entrance, or can be used as a rec room with spare bedroom with full bath.The main level invites everyday ease with direct gated parking access to the kitchen from the private road behind the home. The main floor includes two bedrooms, a full bath, laundry room, the kitchen, sun room, a formal dining room, a spacious family room, a living room illuminated by impressive two story view windows that capture the Sound, and a view deck that looks out toward the water. The backyard is partially fenced, large and private surrounded by trees with a small covered deck off the family room. Don't miss this rare Seattle beauty!
Download our Mobile app