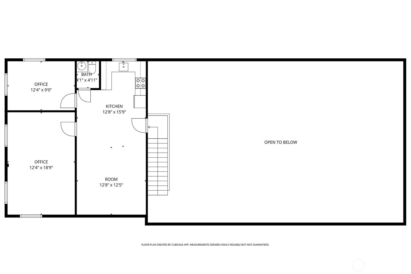
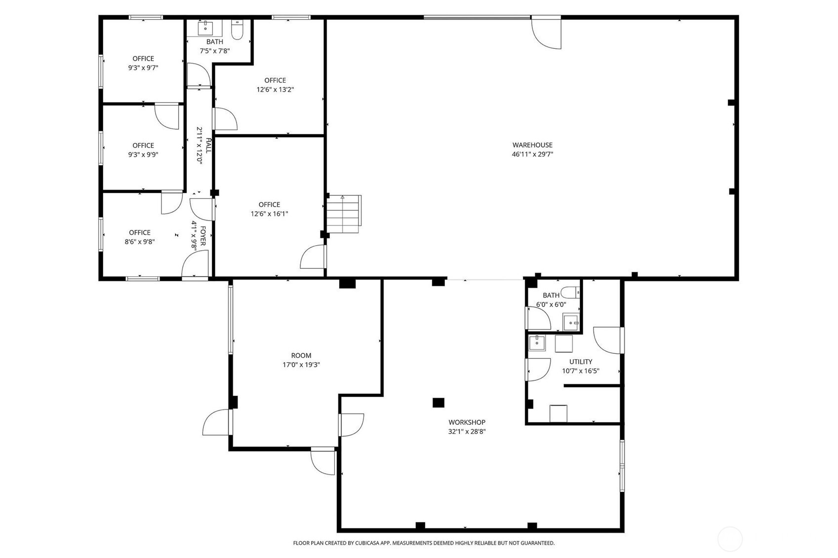
Excellent Corner Lot Location! Building remodeled 2022 - Light Industrial Mixed Use, Multiple Office spaces, Kitchen, Warehouse w/ 3 Phase Power, 12x12 ft Roll Up Door Exterior Grade Level Loading, Owner occupied - occupancy negotiable. Upstairs - 2 Apartments with great rental income potential - each is 690 sq ft with 1 bed/1 bath. Downstairs has an additional 1380 sq ft of warehouse space. New Roof in 2021 - Exterior is high end low maintenance with Rainscreen performance! Retail,Offices,Manufacturing uses are limitless! Floorplan available. Large fenced in parking lot with some covered area. Lots of uses!
Listing Provided Courtesy of Susan Ward, eXp Realty
General Information
NWM2486648
Commercial Industrial
33
DOM
9901.19 SqFt
0
1986
Commerc
King
Commercial Sale
Commercial Industrial
Listing Provided Courtesy of Susan Ward, eXp Realty
Krishna Realty data last checked: May 05, 2026 23:20 | Listing last modified Apr 06, 2026 20:49,
Source:
Excellent Corner Lot Location! Building remodeled 2022 - Light Industrial Mixed Use, Multiple Office spaces, Kitchen, Warehouse w/ 3 Phase Power, 12x12 ft Roll Up Door Exterior Grade Level Loading, Owner occupied - occupancy negotiable. Upstairs - 2 Apartments with great rental income potential - each is 690 sq ft with 1 bed/1 bath. Downstairs has an additional 1380 sq ft of warehouse space. New Roof in 2021 - Exterior is high end low maintenance with Rainscreen performance! Retail,Offices,Manufacturing uses are limitless! Floorplan available. Large fenced in parking lot with some covered area. Lots of uses!
Similar Properties
Download our Mobile app
$725,000
Bed
Bath
0 SqFt
18 DOM
14451 Interurban Avenue S,
Tukwila, 98168
$599,999
Bed
Bath
0 SqFt
76 DOM
12206 1st Avenue S,
Seattle, 98168
$2,300,000
Bed
Bath
0 SqFt
77 DOM
13003 Tukwila International Boulevard,
Tukwila, 98168