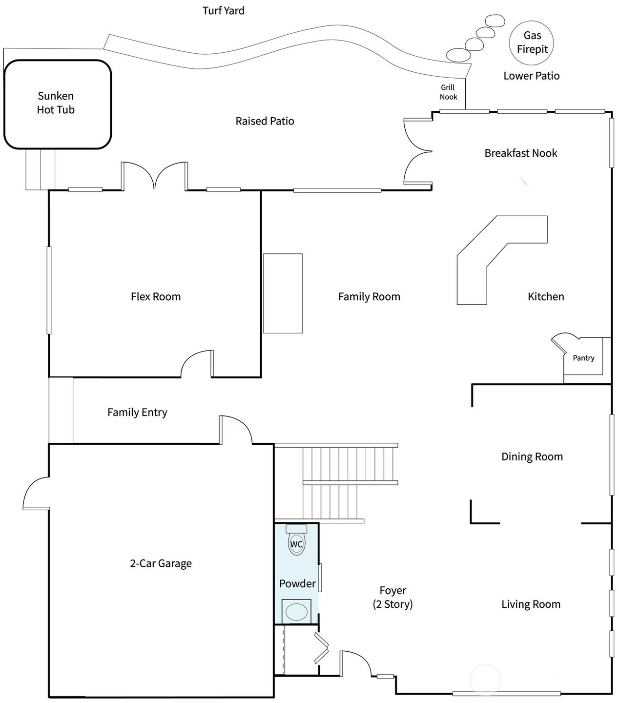
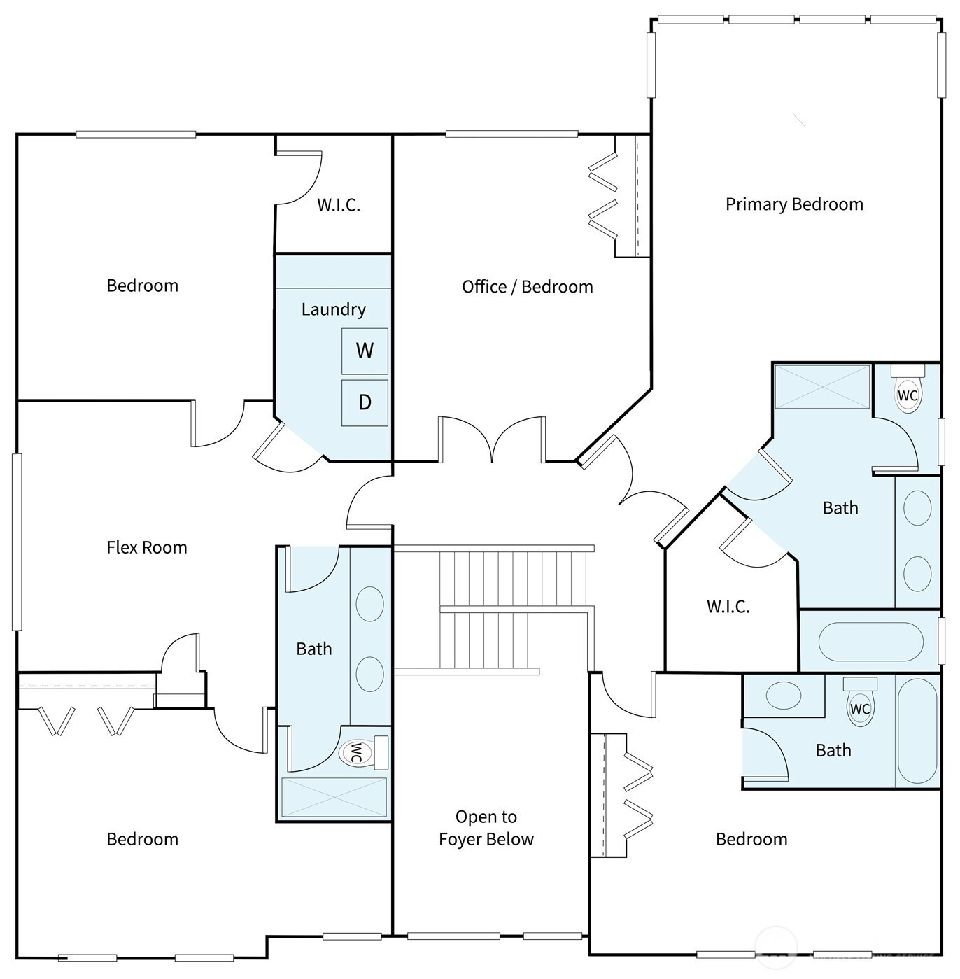
Located in Bellevue's sought-after Enatai neighborhood, this thoughtfully designed home showcases timeless finishes with versatile spaces for modern living. This home perfectly blends location and lifestyle, with top-rated schools, close proximity to downtown Bellevue, plus easy access to I-90, Seattle and the new light rail. The main level features light-filled spaces anchored by birch hardwood floors and a 2-story entry. The open floor plan, accented by contemporary light fixtures, includes living and dining rooms, updated kitchen w/ stainless steel appliances, family room, and a large flex room ideal for media, fitness, work or play. Designed for entertaining, kitchen double doors open to a patio with a hot tub, heat lamps, and an electric retractable awning. The patio connects seamlessly to the flex room and steps down to a turf yard perfect for play or practice. A sunken custom gas fire pit sets the stage for magical evenings. Upstairs offers the primary suite, a secondary ensuite bedroom and two additional spacious bedrooms connected by a flex room, plus a bath with separate WC/shower. The upstairs office (optional 5th bedroom) has double French doors, a closet, and built-in storage. All bedroom closets include custom storage systems. New carpet upstairs completes this turn-key home. Additional amenities include A/C, heat pump, Lutron shades, Nest thermostat, security and sprinkler systems, and ample storage. Pre-inspection & sewer scope reports provided upon request.
Listing Provided Courtesy of Stacie Whitfield, List4FlatFee.com, LLC
General Information
NWM2494276
Single Family Residence
6
DOM
4
7548.95 SqFt
2.5
3740
2004
King
Enatai Elem
Chinook Mid
Bellevue High
Residential
Single Family Residence
Listing Provided Courtesy of Stacie Whitfield, List4FlatFee.com, LLC
Krishna Realty data last checked: Apr 28, 2026 10:31 | Listing last modified Mar 24, 2026 16:55,
Source:
Located in Bellevue's sought-after Enatai neighborhood, this thoughtfully designed home showcases timeless finishes with versatile spaces for modern living. This home perfectly blends location and lifestyle, with top-rated schools, close proximity to downtown Bellevue, plus easy access to I-90, Seattle and the new light rail. The main level features light-filled spaces anchored by birch hardwood floors and a 2-story entry. The open floor plan, accented by contemporary light fixtures, includes living and dining rooms, updated kitchen w/ stainless steel appliances, family room, and a large flex room ideal for media, fitness, work or play. Designed for entertaining, kitchen double doors open to a patio with a hot tub, heat lamps, and an electric retractable awning. The patio connects seamlessly to the flex room and steps down to a turf yard perfect for play or practice. A sunken custom gas fire pit sets the stage for magical evenings. Upstairs offers the primary suite, a secondary ensuite bedroom and two additional spacious bedrooms connected by a flex room, plus a bath with separate WC/shower. The upstairs office (optional 5th bedroom) has double French doors, a closet, and built-in storage. All bedroom closets include custom storage systems. New carpet upstairs completes this turn-key home. Additional amenities include A/C, heat pump, Lutron shades, Nest thermostat, security and sprinkler systems, and ample storage. Pre-inspection & sewer scope reports provided upon request.