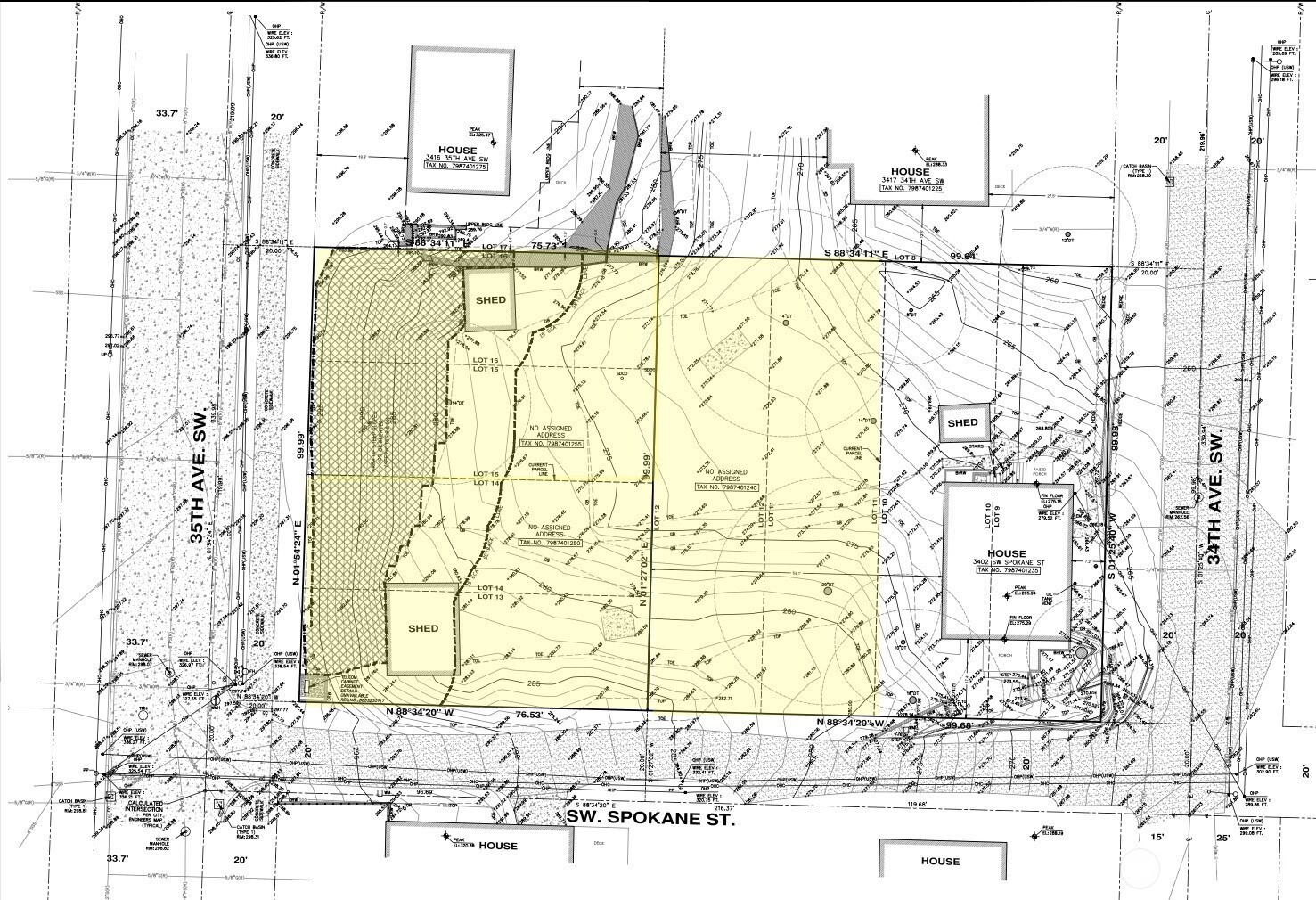
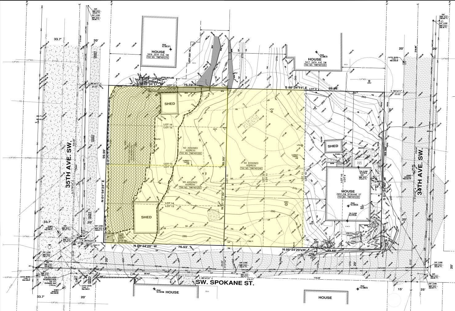
Three Adjacent View Lots in West Seattle - Rare lots in the sought-after Belvedere neighborhood, offering suburban tranquility with urban convenience. Just minutes to downtown Seattle. Nearby amenities in the Admiral District and close to Alki Beach and Lincoln Park. Great Views of Elliott Bay, the Seattle skyline, Cascade Mountains, and West Seattle bridge. Top-rated schools, transit, dining, and shopping nearby. Ideal for builders or homeowners ready to create luxury residences in one of West Seattle's most coveted locations. These lots are combined and priced for a bundled sale. Survey and geotechnical reports have been completed and are available upon request. Parcels 7987401250, 7987401255, & 7987401240
Listing Provided Courtesy of Jon Minerick, homecoin.com
General Information
NWM2453830
Land
113
DOM
0.29 acres
0
Residen
King
Land
Land
Listing Provided Courtesy of Jon Minerick, homecoin.com
Krishna Realty data last checked: Mar 16, 2026 21:28 | Listing last modified Mar 04, 2026 18:37,
Source:
Three Adjacent View Lots in West Seattle - Rare lots in the sought-after Belvedere neighborhood, offering suburban tranquility with urban convenience. Just minutes to downtown Seattle. Nearby amenities in the Admiral District and close to Alki Beach and Lincoln Park. Great Views of Elliott Bay, the Seattle skyline, Cascade Mountains, and West Seattle bridge. Top-rated schools, transit, dining, and shopping nearby. Ideal for builders or homeowners ready to create luxury residences in one of West Seattle's most coveted locations. These lots are combined and priced for a bundled sale. Survey and geotechnical reports have been completed and are available upon request. Parcels 7987401250, 7987401255, & 7987401240