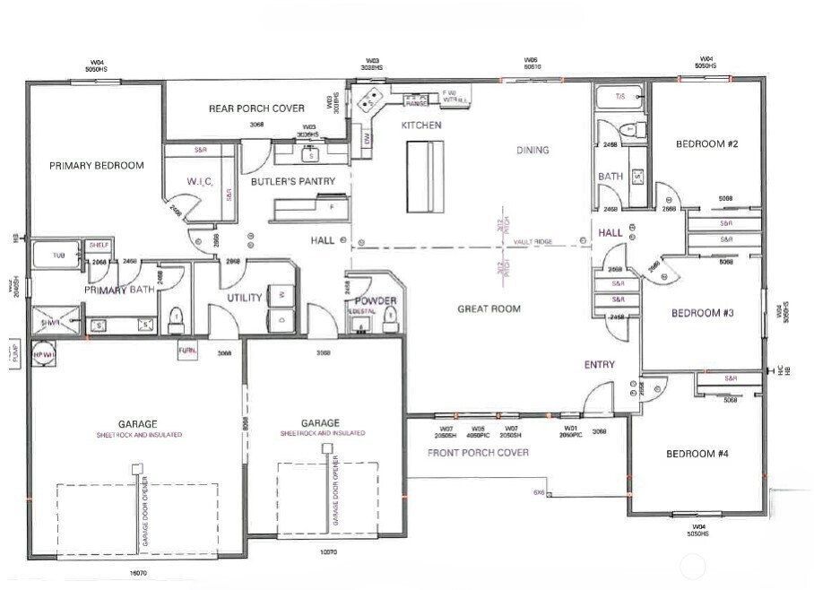
PERMITS READY AND INCLUDED IN PRICE!! 2248 SF, 4 BD, 2.5 BA, 3 CAR GARAGE. SHY 0.5 AC - EASY BUILD - END OF QUIET CUL-DE-SAC – 4BD GRAVITY SEPTIC. Plans feature open gourmet kitchen, butler's panty, great room, vaulted ceilings, primary suite w/soaking tub & walk-in shower. Beautifully treed Kala Point lot with covered deck designed offering space for outdoor kitchen or fireplace, if desired. Survey lines & septic marked. Public water. Utilities at front of lot, not yet connected. Beautiful story book setting. Large evergreens & perfect grade for a zero-step simply with meandering path to front door. With a landscaping plan, plenty of room for both a natural setting and ample or RV parking. Please note that the image is a rendering and landscape/hardscape added for illustration purposes. Kala Point community offers a clubhouse, pool, tennis courts, private beach, boat launch & trails. Kala Point adjoins State Park w/ additional trails & beach access. Ideal location - short commute to Port Townsend & Edmonds Kingston Ferry. Wonderful community to start your dream home. Act now, and construction is finished by Spring 2027!
Listing Provided Courtesy of Duane Petzoldt, Windermere Real Estate M2 LLC
General Information
NWM2324871
Land
38
DOM
0.46 acres
0
Residen
Jefferson
Buyer To Verify
Buyer To Verify
Buyer To Verify
Land
Land
Listing Provided Courtesy of Duane Petzoldt, Windermere Real Estate M2 LLC
Krishna Realty data last checked: Mar 16, 2026 20:39 | Listing last modified Feb 20, 2026 21:16,
Source:
Download our Mobile app
Residence Information
0
40 - Res-Less thn 1 Ac
Features and Utilities
In Street, On Property, See Re
Not Available
Financial
738
Cash, Conventional, See Remarks
01-22-2025
Comparable Information
38
38
Cash, Conventional, See Remarks
$107,000
$107,000
Feb 20, 2026 21:16
Schools
Elementary : Buyer To VerifyN/ARatings Middle : Buyer To Verify N/ARatings High : Buyer To VerifyN/ARatings
Map
Listing courtesy of Windermere Real Estate M2 LLC.
PERMITS READY AND INCLUDED IN PRICE!! 2248 SF, 4 BD, 2.5 BA, 3 CAR GARAGE. SHY 0.5 AC - EASY BUILD - END OF QUIET CUL-DE-SAC – 4BD GRAVITY SEPTIC. Plans feature open gourmet kitchen, butler's panty, great room, vaulted ceilings, primary suite w/soaking tub & walk-in shower. Beautifully treed Kala Point lot with covered deck designed offering space for outdoor kitchen or fireplace, if desired. Survey lines & septic marked. Public water. Utilities at front of lot, not yet connected. Beautiful story book setting. Large evergreens & perfect grade for a zero-step simply with meandering path to front door. With a landscaping plan, plenty of room for both a natural setting and ample or RV parking. Please note that the image is a rendering and landscape/hardscape added for illustration purposes. Kala Point community offers a clubhouse, pool, tennis courts, private beach, boat launch & trails. Kala Point adjoins State Park w/ additional trails & beach access. Ideal location - short commute to Port Townsend & Edmonds Kingston Ferry. Wonderful community to start your dream home. Act now, and construction is finished by Spring 2027!