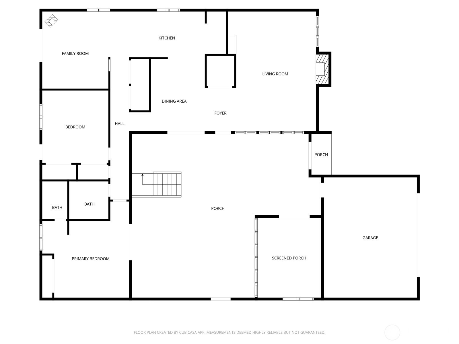
Welcome to this inviting Pacific Northwest-style home, where charming structures embrace a sunny central courtyard—perfect for relaxing or gathering with friends. Step into the spacious living room, featuring vaulted ceilings, warm hardwood floors, a cozy gas fireplace, and an energy-efficient mini-split for year-round comfort. The chef's kitchen boasts beautiful granite countertops, abundant storage, and a gas cooktop, making meal prep a joy. Enjoy the adjacent family room with easy access to the yard, ideal for indoor-outdoor living. Retreat to a generous primary suite with an ensuite bath for your own private sanctuary, while guests enjoy the separate hall 3/4 bath and comfortable second bedroom. A versatile 192 sq ft studio offers flexible space for hobbies or work- perhaps this was originally a greenhouse. The courtyard is an important feature, as it allows a dog-friendly space and keeps deer out of your vegetable and flower beds. Upstairs, discover extra storage for all your needs. The large lot is dotted with mature trees and space for garden pots, creating a peaceful oasis. As a resident of Kala Point, you will delight in amenities such as a seasonal pool, a welcoming community clubhouse, several tennis courts and a pickleball court, a beautiful beach, a dock, and scenic trails. Please look at the governing documents on the Kala Point website. 25 year Roof Certification. Just minutes from vibrant Port Townsend with access to hiking, boating, and loads of fun events.
Listing Provided Courtesy of Teri Nomura, Bell Tower Brokers
General Information
NWM2471382
Single Family Residence
45
DOM
2
0.38 acres
2
2064
1980
Jefferson
Salish Coast El
Blue Heron Mid
Port Townsend H
Residential
Single Family Residence
Listing Provided Courtesy of Teri Nomura, Bell Tower Brokers
Krishna Realty data last checked: Mar 16, 2026 06:11 | Listing last modified Mar 09, 2026 23:07,
Source:
Welcome to this inviting Pacific Northwest-style home, where charming structures embrace a sunny central courtyard—perfect for relaxing or gathering with friends. Step into the spacious living room, featuring vaulted ceilings, warm hardwood floors, a cozy gas fireplace, and an energy-efficient mini-split for year-round comfort. The chef's kitchen boasts beautiful granite countertops, abundant storage, and a gas cooktop, making meal prep a joy. Enjoy the adjacent family room with easy access to the yard, ideal for indoor-outdoor living. Retreat to a generous primary suite with an ensuite bath for your own private sanctuary, while guests enjoy the separate hall 3/4 bath and comfortable second bedroom. A versatile 192 sq ft studio offers flexible space for hobbies or work- perhaps this was originally a greenhouse. The courtyard is an important feature, as it allows a dog-friendly space and keeps deer out of your vegetable and flower beds. Upstairs, discover extra storage for all your needs. The large lot is dotted with mature trees and space for garden pots, creating a peaceful oasis. As a resident of Kala Point, you will delight in amenities such as a seasonal pool, a welcoming community clubhouse, several tennis courts and a pickleball court, a beautiful beach, a dock, and scenic trails. Please look at the governing documents on the Kala Point website. 25 year Roof Certification. Just minutes from vibrant Port Townsend with access to hiking, boating, and loads of fun events.