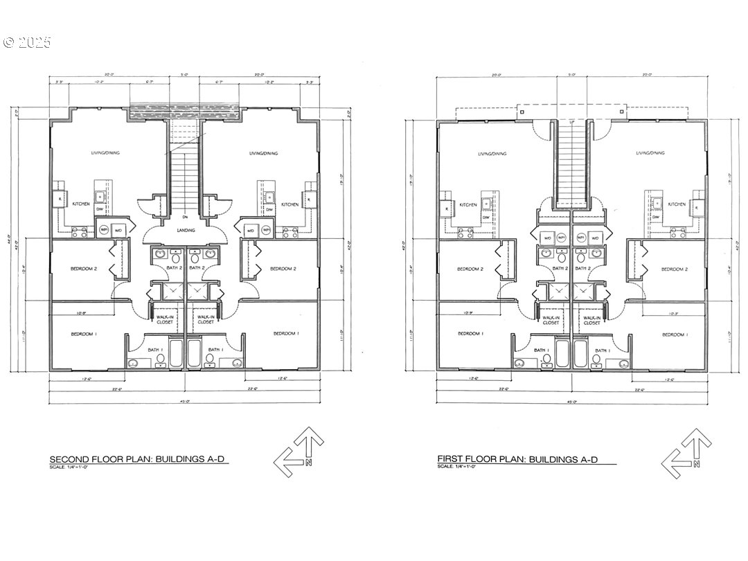
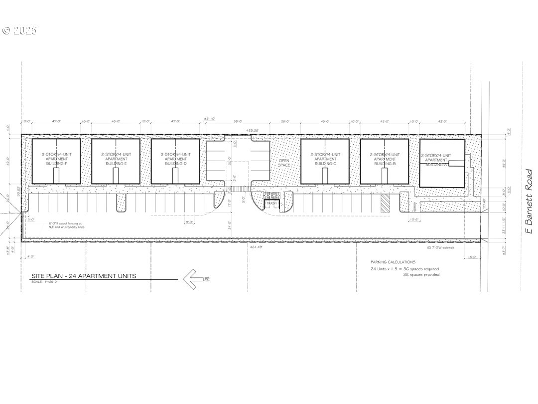
Discover an exceptional multifamily development opportunity in East Medford! With a recent zone change to MFR-30, this site now supports up to 30+ units and benefits from reduced parking requirements. An approved plan is in place for a 24-unit apartment complex, and conceptual drawings are available for six 4-plex buildings. Buyer to verify all information through independent due diligence. Seller is a licensed broker in the State of Oregon.
Listing Provided Courtesy of Rob Chisholm, Rogue Real Estate, LLC
General Information
255329184
MultiFamily
69
DOM
0.97 acres
MFR-30
Jackson
10358431
Hoover 7/10
Hedrick 8/10
South Medford
Land
MultiFamily
371W29DD 4300
Listing Provided Courtesy of Rob Chisholm, Rogue Real Estate, LLC
Krishna Realty data last checked: Oct 17, 2025 21:32 | Listing last modified Jul 29, 2025 07:39,
Source:
Download our Mobile app
Residence Information
No
Features and Utilities
Financial
3200.07
0
Cash,Conventional
05-21-2025
No
No
Comparable Information
69
149
Cash,Conventional
$599,000
$579,000
Jul 29, 2025 07:39
Schools
public Elementary : Hoover
7/10Ratingspublic Middle : Hedrick
8/10Ratings High : South MedfordN/ARatings
Discover an exceptional multifamily development opportunity in East Medford! With a recent zone change to MFR-30, this site now supports up to 30+ units and benefits from reduced parking requirements. An approved plan is in place for a 24-unit apartment complex, and conceptual drawings are available for six 4-plex buildings. Buyer to verify all information through independent due diligence. Seller is a licensed broker in the State of Oregon.