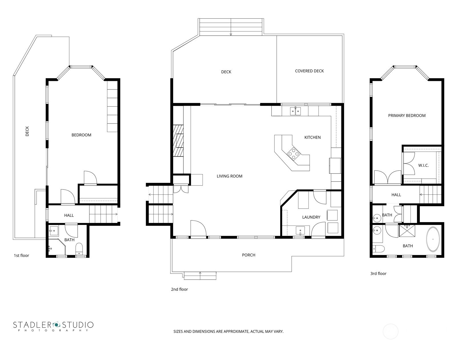
Perched on approx 1.82 acres of waterfront, this custom luxury home offers sweeping 180-degree views of the Cascades, Mt. Baker, the Saratoga Passage which extends to the twinkling city lights of the mainland. From the warmth of your home, enjoy front-row seats to nature’s spectacle as orca pods glide past, gray whales feed below & eagles soar above. Thoughtfully designed & custom built by the owners in 2008, this residence blends refined craftsmanship with timeless Northwest elegance. The main home features beautiful hardwoods, warm fir trim, & expansive picture windows that frame breathtaking vistas from every room. The open-concept living flows seamlessly for everyday comfort & entertaining. The partially covered view deck creates an ideal space for hosting gatherings or relaxing while soaking in the ever-changing scenery. Also featured is the 802 sq ft. guest house± w/ full kitchen & private view deck offering luxurious accommodations for visitors or multi-gen living. Below is a versatile flex space with ¾ bath, perfect for art studio, workout room, or guest overflow. The impressive 672 sq ft. barn± features pass-through garage doors ideal for boats & recreational vehicles, a cozy wood-burning stove and loft showcasing remarkable views. Public beach access just minutes down the road, perfect for launching kayaks, crabbing, & beachcombing. Close to the Greenbank Farm & the off-leash trail system as well as the amenities of both Freeland and Coupeville in equal directions.
Listing Provided Courtesy of Louis Muniz, Windermere RE/South Whidbey
General Information
NWM2478241
Single Family Residence
21
DOM
2
1.82 acres
2
1854
2008
Island
Residential
Single Family Residence
Listing Provided Courtesy of Louis Muniz, Windermere RE/South Whidbey
Krishna Realty data last checked: Mar 26, 2026 01:01 | Listing last modified Mar 24, 2026 23:58,
Source:
Perched on approx 1.82 acres of waterfront, this custom luxury home offers sweeping 180-degree views of the Cascades, Mt. Baker, the Saratoga Passage which extends to the twinkling city lights of the mainland. From the warmth of your home, enjoy front-row seats to nature’s spectacle as orca pods glide past, gray whales feed below & eagles soar above. Thoughtfully designed & custom built by the owners in 2008, this residence blends refined craftsmanship with timeless Northwest elegance. The main home features beautiful hardwoods, warm fir trim, & expansive picture windows that frame breathtaking vistas from every room. The open-concept living flows seamlessly for everyday comfort & entertaining. The partially covered view deck creates an ideal space for hosting gatherings or relaxing while soaking in the ever-changing scenery. Also featured is the 802 sq ft. guest house± w/ full kitchen & private view deck offering luxurious accommodations for visitors or multi-gen living. Below is a versatile flex space with ¾ bath, perfect for art studio, workout room, or guest overflow. The impressive 672 sq ft. barn± features pass-through garage doors ideal for boats & recreational vehicles, a cozy wood-burning stove and loft showcasing remarkable views. Public beach access just minutes down the road, perfect for launching kayaks, crabbing, & beachcombing. Close to the Greenbank Farm & the off-leash trail system as well as the amenities of both Freeland and Coupeville in equal directions.