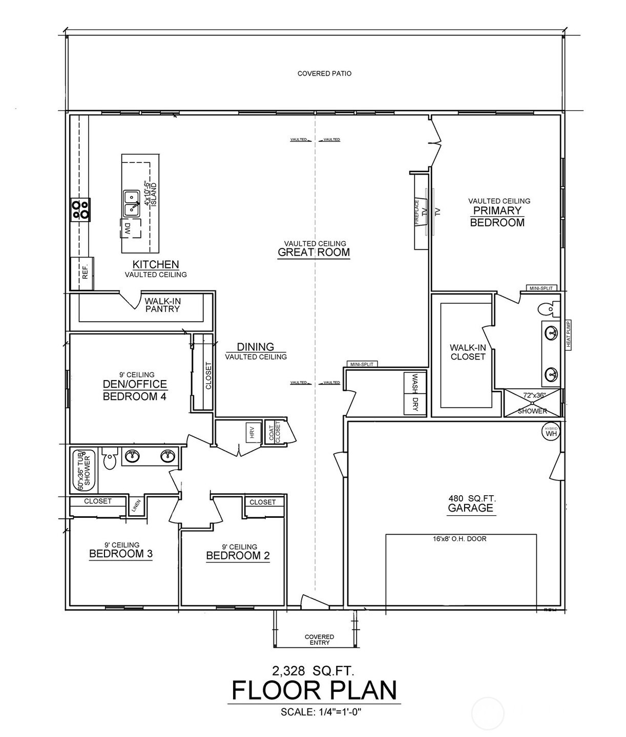
Introducing a NEW floorplan in the Cedar Hill Neighborhood. This thoughtfully designed 4 bedroom rambler offers an open & functional layout perfect for modern living. The inviting entry leads into a spacious great room that seamlessly connects the living, dining, & kitchen areas -ideal for entertaining or everyday comfort. The kitchen features ample cabinetry, a large island, quartz countertops & a walk-in pantry, providing both style & functionality. The adjoining dining area opens to a covered outdoor space, extending your living area & creating the perfect setting for gatherings year-round. The private primary suite with vaulted ceilings & offers a luxurious ensuite bath with dual sinks, oversized tile shower, & a generous walk-in closet. Additional bedrooms are spacious & share a conveniently located full bath, making this home ideal for guests or flexible living. The home features 9 ft ceilings throughout & soaring vaulted ceilings in the Living room & primary bedroom. Ductless units offer heating & Air Conditioning! Evan a fully fenced & landscaped yard, making this dream home move in ready. With its single-level living & smart layout, this rambler combines quality, comfort, convenience, & timeless appeal. Located in Cedar Hill built by Sullivan Home Builders, North Whidbey’s newest community of 26 homes, centrally positioned near schools, NAS Whidbey, town & just minutes from West Beach. Ask about preferred lender closing cost credit of up to $5,000!
Listing Provided Courtesy of Marissa Evans, Coldwell Banker 360 Team
General Information
NWM2482784
Single Family Residence
2
DOM
4
7361.64 SqFt
2
2328
2026
Island
Buyer To Verify
North Whidbey M
Oak Harbor High
Residential
Single Family Residence
Listing Provided Courtesy of Marissa Evans, Coldwell Banker 360 Team
Krishna Realty data last checked: Mar 29, 2026 03:03 | Listing last modified Mar 09, 2026 05:07,
Source:
Download our Mobile app
Residence Information
2328
1/Gas
4
1
0
2
Composition
10 - 1 Story
2026
None
None
Poured Concrete
Features and Utilities
Dishwasher(s), Microwave(s), Stove(s)/Range(s)
Bath Off Primary, Ceiling Fan(s), Dbl Pane/Storm Window, Dining Room, Fireplace, Vaulted Ceilings, W
Cement Planked
Public
Sewer Connected
Financial
25
Cash, Conventional, VA Loan
03-06-2026
Comparable Information
2
2
Cash, Conventional, VA Loan
$699,000
$699,000
Mar 09, 2026 05:07
Schools
Elementary : Buyer To VerifyN/ARatings Middle : North Whidbey M N/ARatings High : Oak Harbor HighN/ARatings
Introducing a NEW floorplan in the Cedar Hill Neighborhood. This thoughtfully designed 4 bedroom rambler offers an open & functional layout perfect for modern living. The inviting entry leads into a spacious great room that seamlessly connects the living, dining, & kitchen areas -ideal for entertaining or everyday comfort. The kitchen features ample cabinetry, a large island, quartz countertops & a walk-in pantry, providing both style & functionality. The adjoining dining area opens to a covered outdoor space, extending your living area & creating the perfect setting for gatherings year-round. The private primary suite with vaulted ceilings & offers a luxurious ensuite bath with dual sinks, oversized tile shower, & a generous walk-in closet. Additional bedrooms are spacious & share a conveniently located full bath, making this home ideal for guests or flexible living. The home features 9 ft ceilings throughout & soaring vaulted ceilings in the Living room & primary bedroom. Ductless units offer heating & Air Conditioning! Evan a fully fenced & landscaped yard, making this dream home move in ready. With its single-level living & smart layout, this rambler combines quality, comfort, convenience, & timeless appeal. Located in Cedar Hill built by Sullivan Home Builders, North Whidbey’s newest community of 26 homes, centrally positioned near schools, NAS Whidbey, town & just minutes from West Beach. Ask about preferred lender closing cost credit of up to $5,000!