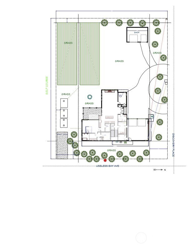
A fantastic, flat, 19,932 sqft, double-lot in Useless Bay Colony looking over the 4th green. Property includes architectural plans, engineering and septic design for 2925 sqft, 3bed / 2.75 bath contemporary home design with open-concept. A fantastic floor plan, complete with main level Primary Suite, office + bonus. Bring your builder (we can help) and finish your dream home in this sought after Golf Course and Country Club community. As a resident you'll have access to Useless Bay Golf & Country Club and its world-class amenities including a private community beach, pool, year-round fitness center, tennis & pickleball courts, an exceptional clubhouse and bar, plus optional full golf membership on this beautiful course with scenic views.
Listing Provided Courtesy of Dave Anderson, John L. Scott Woodinville
General Information
NWM2467146
Land
107
DOM
0.46 acres
0
Residen
Island
Buyer To Verify
Buyer To Verify
Buyer To Verify
Land
Land
Listing Provided Courtesy of Dave Anderson, John L. Scott Woodinville
Krishna Realty data last checked: Apr 27, 2026 01:46 | Listing last modified Jan 11, 2026 03:15,
Source:
Download our Mobile app
Residence Information
0
40 - Res-Less thn 1 Ac
Features and Utilities
Available, On Property
Not Available
Financial
Cash Out, Conventional
01-10-2026
Comparable Information
107
107
Cash Out, Conventional
$338,000
$338,000
Jan 11, 2026 03:15
Schools
Elementary : Buyer To VerifyN/ARatings Middle : Buyer To Verify N/ARatings High : Buyer To VerifyN/ARatings
A fantastic, flat, 19,932 sqft, double-lot in Useless Bay Colony looking over the 4th green. Property includes architectural plans, engineering and septic design for 2925 sqft, 3bed / 2.75 bath contemporary home design with open-concept. A fantastic floor plan, complete with main level Primary Suite, office + bonus. Bring your builder (we can help) and finish your dream home in this sought after Golf Course and Country Club community. As a resident you'll have access to Useless Bay Golf & Country Club and its world-class amenities including a private community beach, pool, year-round fitness center, tennis & pickleball courts, an exceptional clubhouse and bar, plus optional full golf membership on this beautiful course with scenic views.