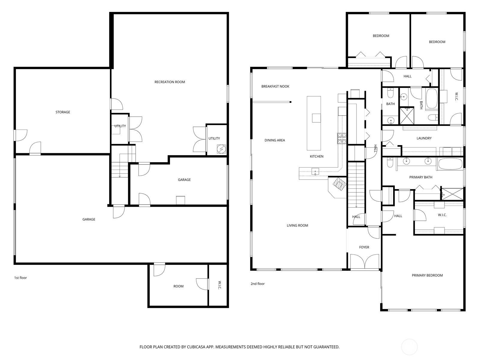
Stunning 2,880 sq ft home on 2.5 private acres at the end of a quiet road with breathtaking views over Skagit Bay toward the Cascades. The thoughtfully designed floorplan offers spacious living areas, a generous main-floor primary suite, exceptional storage, and an attached three-car garage. Quality craftsmanship is evident at every turn. The walkout basement offers expansive additional living and flex space, including a dedicated secure storage area — ideal for valuables, collections, or a vault room. The impressive 36x48 shop features a studio efficiency with bathroom and laundry, an oversized 13' garage door, and a 12x36 lean-to for additional covered workspace or equipment storage. RV parking with hookups sits conveniently alongside. A 9kW backup generator ensures peace of mind and uninterrupted power year-round — a valuable asset in the Pacific Northwest. Outside, enjoy a productive 12x16 greenhouse and abundant garden space, all within a serene, private setting. Just 10 minutes from town and moments from Strawberry Point Preserve.
Listing Provided Courtesy of Josh Murphy, COMPASS
General Information
NWM2512422
Single Family Residence
0
DOM
3
2.5 acres
2.5
2880
2010
Island
Crescent Harbor
North Whidbey M
Oak Harbor High
Residential
Single Family Residence
Listing Provided Courtesy of Josh Murphy, COMPASS
Krishna Realty data last checked: Apr 23, 2026 20:37 | Listing last modified Apr 24, 2026 00:38,
Source:
Download our Mobile app
Residence Information
2880
3
2
1
2.5
Metal
16 - 1 Story w/Bsmnt.
2010
Daylight
Daylight
Concrete Ribbon
Features and Utilities
Dishwasher, Disposal, Dryer, Microwave, Refrigerator, See Remarks, Stove(s)/Range(s), Washer
Bath Off Primary, Ceiling Fan(s), Dbl Pane/Storm Window, Walk-In Closet(s), Water Heater
Cement Planked
Community
Septic Tank
Financial
7765
Cash, Conventional, FHA, VA Loan
04-23-2026
Comparable Information
0
0
Cash, Conventional, FHA, VA Loan
$998,000
$998,000
Apr 24, 2026 00:38
Schools
Elementary : Crescent HarborN/ARatings Middle : North Whidbey M N/ARatings High : Oak Harbor HighN/ARatings
Stunning 2,880 sq ft home on 2.5 private acres at the end of a quiet road with breathtaking views over Skagit Bay toward the Cascades. The thoughtfully designed floorplan offers spacious living areas, a generous main-floor primary suite, exceptional storage, and an attached three-car garage. Quality craftsmanship is evident at every turn. The walkout basement offers expansive additional living and flex space, including a dedicated secure storage area — ideal for valuables, collections, or a vault room. The impressive 36x48 shop features a studio efficiency with bathroom and laundry, an oversized 13' garage door, and a 12x36 lean-to for additional covered workspace or equipment storage. RV parking with hookups sits conveniently alongside. A 9kW backup generator ensures peace of mind and uninterrupted power year-round — a valuable asset in the Pacific Northwest. Outside, enjoy a productive 12x16 greenhouse and abundant garden space, all within a serene, private setting. Just 10 minutes from town and moments from Strawberry Point Preserve.