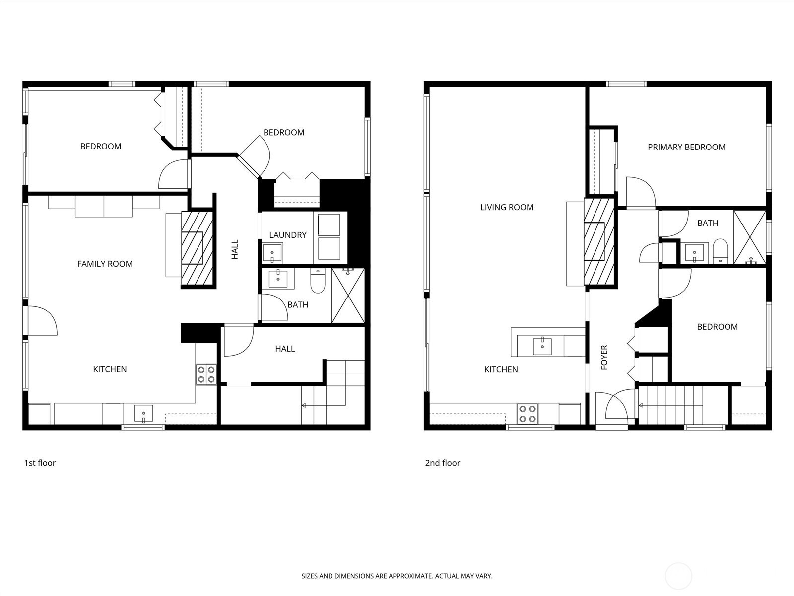
Nestled on one of Camano's most sought after communities, this stunning 4-bedroom, 2-bath high-bank waterfront home offers an unparalleled blend of luxury, privacy, and natural beauty. Large flat lot of expansive lawns, mature evergreens, and room for gardens—perfect for those seeking space to breathe and create. Step inside to find a light-filled open floor plan with vaulted ceilings, a remodeled kitchen featuring butcher block counters and stainless appliances. Three additional bedrooms provide ample space for guests, while the cozy living room with stone fireplace invites gatherings by the fire. Second kitchen makes this a great opportunity for rental income or keeping extended guests comfortable. With no HOA, this would make a great short or long term rental. But it's the views that steal the show: From your elevated vantage, gaze across sparkling Puget Sound waters, where eagles soar, whales breach, and sunrises paint the sky in fiery hues. High-bank positioning ensures privacy and protection, with access to private pebbled beaches below for agate collecting, kayaking, clamming, or simply unwinding. Camano Island's vibrant community enhances the allure— a bridge-connected haven just 1 hour from Seattle, yet worlds away. Explore 2 state parks with miles of hiking trails, beaches, and boating. Savor fresh seafood at local eateries, browse art studios in the island's creative enclave, or join community events like the summer farmers' market. Life is better on the islands!
Listing Provided Courtesy of Andrew J. Kim, Windermere RE Greenwood
General Information
NWM2480104
Single Family Residence
25
DOM
2
0.66 acres
2
2048
1964
Island
Elger Bay Elem
Stanwood Mid
Stanwood High
Residential
Single Family Residence
Listing Provided Courtesy of Andrew J. Kim, Windermere RE Greenwood
Krishna Realty data last checked: Mar 16, 2026 23:48 | Listing last modified Mar 10, 2026 21:12,
Source:
Nestled on one of Camano's most sought after communities, this stunning 4-bedroom, 2-bath high-bank waterfront home offers an unparalleled blend of luxury, privacy, and natural beauty. Large flat lot of expansive lawns, mature evergreens, and room for gardens—perfect for those seeking space to breathe and create. Step inside to find a light-filled open floor plan with vaulted ceilings, a remodeled kitchen featuring butcher block counters and stainless appliances. Three additional bedrooms provide ample space for guests, while the cozy living room with stone fireplace invites gatherings by the fire. Second kitchen makes this a great opportunity for rental income or keeping extended guests comfortable. With no HOA, this would make a great short or long term rental. But it's the views that steal the show: From your elevated vantage, gaze across sparkling Puget Sound waters, where eagles soar, whales breach, and sunrises paint the sky in fiery hues. High-bank positioning ensures privacy and protection, with access to private pebbled beaches below for agate collecting, kayaking, clamming, or simply unwinding. Camano Island's vibrant community enhances the allure— a bridge-connected haven just 1 hour from Seattle, yet worlds away. Explore 2 state parks with miles of hiking trails, beaches, and boating. Savor fresh seafood at local eateries, browse art studios in the island's creative enclave, or join community events like the summer farmers' market. Life is better on the islands!