Hood River, 97031
2 Bed
2 Bath
1531 SqFt
1 DOM
Built: 2015
$1,175,000
Hood River 97031
$1175000
Request Tour, Ask a Question or Start an Offer
Principal Broker
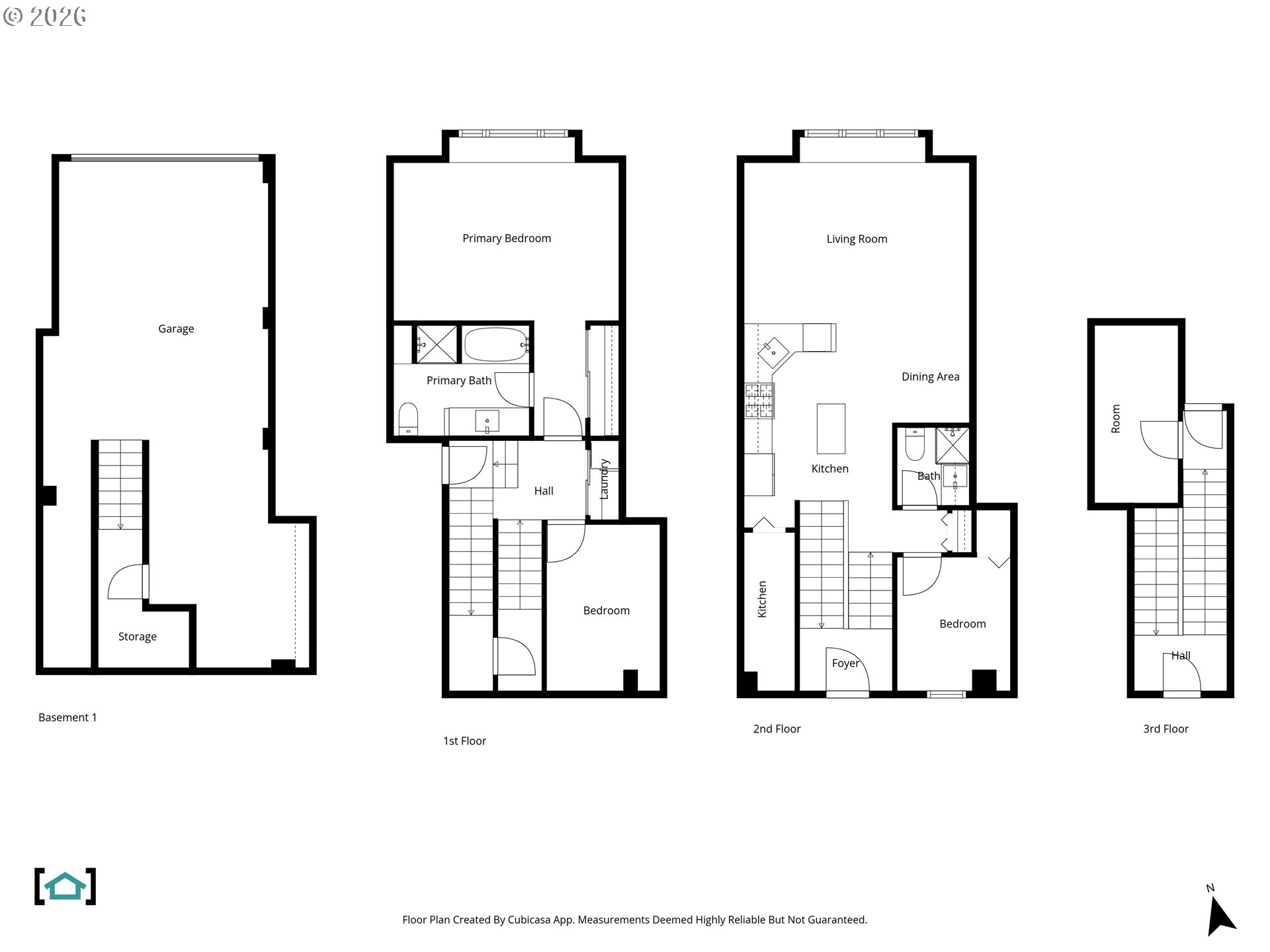
Opportunity awaits in the iconic Union Building. Commercially zoned allowing STRs, this stunning 2 bed (+office), 2 bath townhome offers both lifestyle and flexibility while delivering the perfect fusion of character and contemporary design. This is the largest Phase 1 unit and right in the heart of downtown Hood River! Thoughtfully constructed keeping a modern industrial aesthetic, the home showcases original concrete columns, warm wood stairs, and a dynamic mix of textures and materials that make it truly one-of-a-kind. Expansive windows invite abundant natural light and showcase panoramic views of the Columbia River. The spacious rooftop terrace offers an ideal setting for entertaining or relaxing in privacy thanks to custom landscaping. A private 2-car garage provides ample gear storage and parking, an unbeatable convenience in this strollable location. Just one block from top-rated restaurants, shops, and cafés. It also offers easy access to some of the Gorge’s best outdoor activities, from windsurfing and kiteboarding to skiing and hiking. This multi-use townhouse is a perfect home and investment!
Listing Provided Courtesy of Cyndee Kurahara, Copper West Real Estate
MLS #706085648
TypeAttached
Days on Market 1 DOM
Beds2
Lot Size 871.2 SqFt
Baths2
SqFt1531
Year built2015
ZoningC2
CountyHoodRiver
Tax ID19480
ElemMay Street 8/10
MiddleHood River 6/10
HighHood River Vall 5/10
PropCategoryResidential
PropTypeAttached
Neighborhood (Legal)3N10E25CD11207
Krishna Realty data last checked: Mar 16, 2026 11:39 | Listing last modified Feb 24, 2026 14:35, Source:
Please Sign In or Create Account to view more details.
Download our Mobile app
Upper SqFt203
Main SqFt664
Lower SqFt664
Total SqFt1531
SFSrctax
TotUp/Mn867
Fireplaces
Bdrms2
Full Bath2
Partial Bath0
Total Bath2
RoofFlat
Garage1, Attached, Oversized, TuckUnder
StyleModern,Townhouse
Parking
Levels4
Year Built2015
Green CertNo
Energy Eff
ExteriorBrick, Stucco
Bsmt/Fnd
RV
URM
Basement
FoundationConcretePerimeter,Sl
Windows
AmenitiesExteriorMaintenance,
Living
KitchenDishwasher, Disposal, FreeStandingGasRange, FreeStandingRefrigerator, Island, Microwave, Quartz, StainlessS
InteriorConcreteFloor, GarageDoorOpener, Quartz, ReclaimedMaterial, SoakingTub, Sprinkler, TileFloor, WasherDryer
ExteriorPatio
Accessibility
CoolCentralAir
WaterGas
HeatForcedAir95Plus
SewerPublicSewer
Hot WaterGas
FuelGas
PTax/Yr5715.53
HOA1
HOA Incl
HOA Fee250 / Month
Other Dues
Terms ConsideredCash,Conventional
List Date02-23-2026
Rent (If Rented)
Bank Owned/REONo
Short SaleNo
Pending Date
DOM 1
CDOM 21
Sold Date
TermsCash,Conventional
Original Price$1,175,000
List Price$1,175,000
Sold Price
Last ModifiedFeb 24, 2026 14:35
Listing courtesy of Copper West Real Estate.
The content relating to real estate for sale on this site comes in part from the IDX program of the RMLS of Portland, Oregon. Real Estate listings held by brokerage firms other than this firm are marked with the RMLS logo, and detailed information about these properties include the name of the listing's broker. Listing content is copyright © 2019 RMLS of Portland, Oregon. All information provided is deemed reliable but is not guaranteed and should be independently verified. Krishna Realty data last checked: Mar 16, 2026 11:39 | Listing last modified Feb 24, 2026 14:35. Some properties which appear for sale on this web site may subsequently have sold or may no longer be available.
Please Sign In or Create Account to view more listings.
$575,000
1314 SqFt
17 DOM
$1,050,000
1292 SqFt
57 DOM
$675,000
3 Bed
2.5 Bath
1785 SqFt
112 DOM
$830,000
2280 SqFt
129 DOM
<
>
Choose at least one recipient
You don't have access to share. Please contact admin.