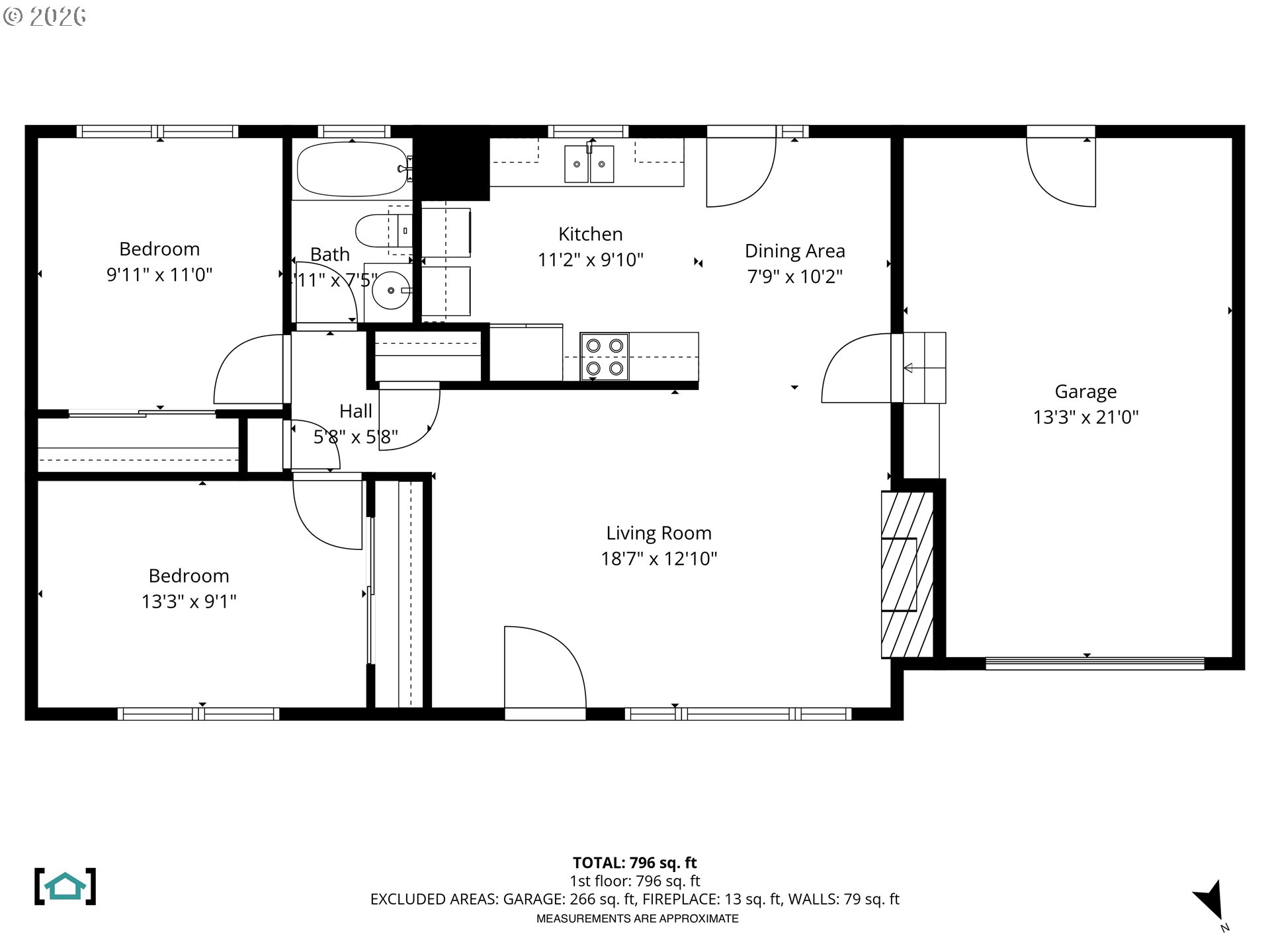
Welcome home to this charming one-story retreat in Hood River, where comfort, character, and convenience come together in a wonderful in-town setting. Nestled on a generous 7,841 sq ft lot with a fenced, secluded backyard, this inviting 2-bedroom, 1-bath home offers 864 sq ft of living space, beautiful oak hardwood floors, an attached garage with workbench, and a cozy fireplace that adds warmth and charm. Built in 1966, this home offers an appealing blend of classic character and everyday livability. Enjoy close proximity to shopping, schools, parks, and Providence Hood River Memorial Hospital, along with easy access to uptown, and downtown Hood River’s historic shopping district, featuring boutiques, galleries, outdoor gear shops, coffee spots, wineries, and a wide variety of restaurants. Hood River’s vibrant waterfront lifestyle is also nearby, with Waterfront Park offering a popular destination for recreation and outdoor enjoyment, while the renowned Hood River Fruit Loop adds even more appeal with its farm stands, wineries, cideries, breweries, and scenic valley beauty. A short drive south, Mt. Hood Meadows welcomes Alpine and Nordic ski enthusiasts. This is a wonderful opportunity to enjoy comfortable in-town living with access to shopping, dining, recreation, and the unique lifestyle that makes Hood River such a special place to call home!
Listing Provided Courtesy of Chase Willcuts, Willcuts Company Real Estate
General Information
305923503
SingleFamilyResidence
0
DOM
2
7840.8 SqFt
1
864
1966
UR1
HoodRiver
2718
May Street 8/10
Hood River 6/10
Hood River Vall 5/10
Residential
SingleFamilyResidence
SEC 35 TWN 03N RNG 10E
Listing Provided Courtesy of Chase Willcuts, Willcuts Company Real Estate
Krishna Realty data last checked: Apr 14, 2026 20:07 | Listing last modified Apr 14, 2026 11:02,
Source:
Download our Mobile app
Residence Information
0
864
0
864
tax
864
1/Gas
2
1
0
1
Composition
1, Attached
Stories1,Traditional
Driveway
1
1966
No
WoodSiding
CrawlSpace
CrawlSpace
ConcretePerimeter
DoublePaneWindows
Features and Utilities
HardwoodFloors
Yard
Tank
Baseboard
PublicSewer
Tank
Electricity
Financial
2394.69
0
Cash,Conventional
04-14-2026
No
No
Comparable Information
0
0
Cash,Conventional
$489,900
$489,900
Apr 14, 2026 11:02
Schools
public Elementary : May Street
8/10Ratingspublic Middle : Hood River
6/10Ratingspublic High : Hood River Vall
5/10Ratings
Welcome home to this charming one-story retreat in Hood River, where comfort, character, and convenience come together in a wonderful in-town setting. Nestled on a generous 7,841 sq ft lot with a fenced, secluded backyard, this inviting 2-bedroom, 1-bath home offers 864 sq ft of living space, beautiful oak hardwood floors, an attached garage with workbench, and a cozy fireplace that adds warmth and charm. Built in 1966, this home offers an appealing blend of classic character and everyday livability. Enjoy close proximity to shopping, schools, parks, and Providence Hood River Memorial Hospital, along with easy access to uptown, and downtown Hood River’s historic shopping district, featuring boutiques, galleries, outdoor gear shops, coffee spots, wineries, and a wide variety of restaurants. Hood River’s vibrant waterfront lifestyle is also nearby, with Waterfront Park offering a popular destination for recreation and outdoor enjoyment, while the renowned Hood River Fruit Loop adds even more appeal with its farm stands, wineries, cideries, breweries, and scenic valley beauty. A short drive south, Mt. Hood Meadows welcomes Alpine and Nordic ski enthusiasts. This is a wonderful opportunity to enjoy comfortable in-town living with access to shopping, dining, recreation, and the unique lifestyle that makes Hood River such a special place to call home!