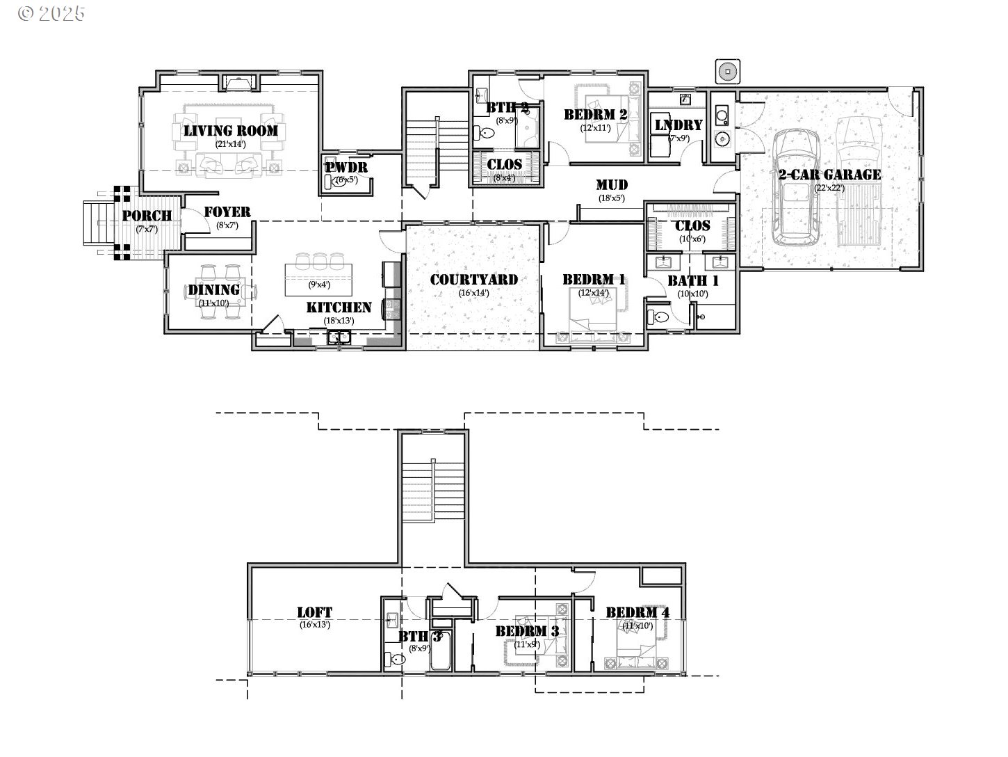
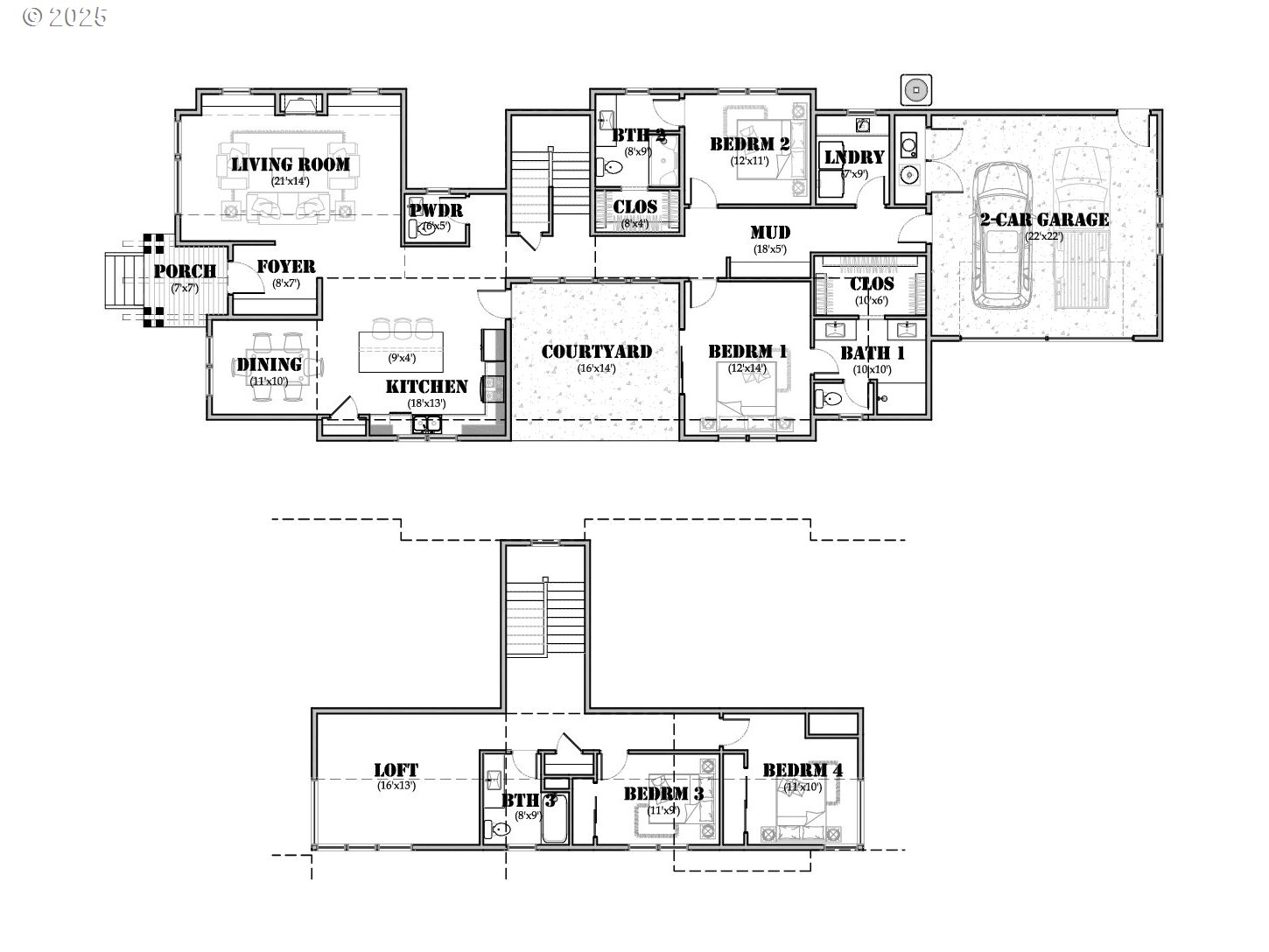
Welcome to Rock Creek Lot 6 located in the newest neighborhood in Hood River, where thoughtful design meets everyday comfort. This 4-bedroom, 3.5-bathroom home offers versatile living with two primary-style suites on the main level, each featuring walk-in closets and connected bathrooms. Upstairs, you’ll find two additional bedrooms and a spacious loft—perfect for a home office, playroom, or second living space. The heart of the home surrounds a private courtyard, ideal for indoor-outdoor living and entertaining. An open-concept living room, dining area, and kitchen make hosting and daily life seamless, while a mudroom and 2-car garage add convenience. Enjoy a welcoming front porch entrance and an ideal location just minutes from all that Hood River has to offer—outdoor adventure, local shops, and great dining—with the added bonus of beautiful surrounding views.
Listing Provided Courtesy of Jim Tennant, Curtis Homes Realty
General Information
725671353
SingleFamilyResidence
227
DOM
4
7405.2 SqFt
3.5
2646
2025
HoodRiver
1069
Westside
Hood River 6/10
Hood River Vall 5/10
Residential
SingleFamilyResidence
Part of parcel #03N10E4A2400
Listing Provided Courtesy of Jim Tennant, Curtis Homes Realty
Krishna Realty data last checked: Apr 27, 2026 08:13 | Listing last modified Apr 23, 2026 14:02,
Source:
Welcome to Rock Creek Lot 6 located in the newest neighborhood in Hood River, where thoughtful design meets everyday comfort. This 4-bedroom, 3.5-bathroom home offers versatile living with two primary-style suites on the main level, each featuring walk-in closets and connected bathrooms. Upstairs, you’ll find two additional bedrooms and a spacious loft—perfect for a home office, playroom, or second living space. The heart of the home surrounds a private courtyard, ideal for indoor-outdoor living and entertaining. An open-concept living room, dining area, and kitchen make hosting and daily life seamless, while a mudroom and 2-car garage add convenience. Enjoy a welcoming front porch entrance and an ideal location just minutes from all that Hood River has to offer—outdoor adventure, local shops, and great dining—with the added bonus of beautiful surrounding views.