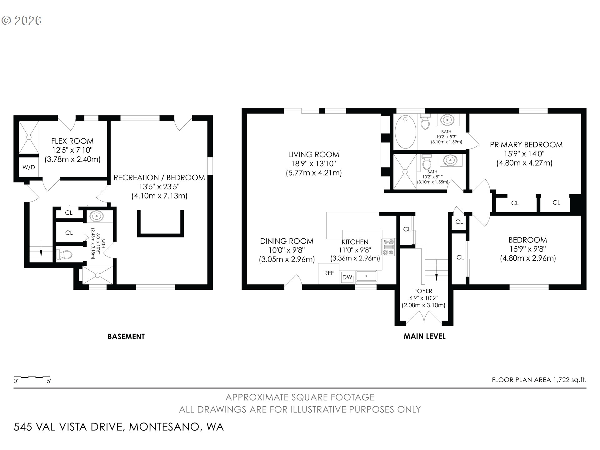
Beautifully updated 1,800 sq. ft. split-level home offering modern comfort and serene valley views. This 3-bed, 3-bath home features contemporary finishes and thoughtful upgrades throughout, and the roof is only 5 years old! The upper living area showcases tongue-and-groove vaulted ceilings and a stone fireplace, creating an airy, inviting space. A large back deck extends the living area outdoors - perfect for entertaining or enjoying the view. A smaller front deck creates the perfect setting for morning coffee with the sunrise. The kitchen includes custom concrete counters, subway tile backsplash, ceramic tile flooring, stainless steel appliances, and a newly added coffee bar with extra cabinetry in the dining room. The primary suite offers new LVP flooring, a built-in desk, mini-split, and a private bath with tile shower, built-ins, and a deep soaking tub. A second spacious bedroom with new flooring and an updated guest bath complete the upper level. Downstairs features a fully finished living space with a second mini-split, built-in desk, new flooring and access to a private hot tub patio. The lower bath includes a large tile shower and walk-in closet. The utility room adds a dog-washing station, doggie door to the approx. 2000 sq. ft. fully fenced dog run, and additional patio access. Additionally, enjoy a two-car garage with two tankless water heaters, firepit, beautiful hot tub with a privacy fence, storage shed, covered area, and RV parking with hookups.
Listing Provided Courtesy of Lisa Blake, Realty ONE Group Pacifica
General Information
782089999
Attached
11
DOM
3
0.27 acres
3
1800
1977
GraysHarbor
828500100800
Other
Other
Other
Residential
Attached
Val Vista Terrace Lot8 Block1
Listing Provided Courtesy of Lisa Blake, Realty ONE Group Pacifica
Krishna Realty data last checked: Apr 25, 2026 18:17 | Listing last modified Mar 24, 2026 12:13,
Source:
Beautifully updated 1,800 sq. ft. split-level home offering modern comfort and serene valley views. This 3-bed, 3-bath home features contemporary finishes and thoughtful upgrades throughout, and the roof is only 5 years old! The upper living area showcases tongue-and-groove vaulted ceilings and a stone fireplace, creating an airy, inviting space. A large back deck extends the living area outdoors - perfect for entertaining or enjoying the view. A smaller front deck creates the perfect setting for morning coffee with the sunrise. The kitchen includes custom concrete counters, subway tile backsplash, ceramic tile flooring, stainless steel appliances, and a newly added coffee bar with extra cabinetry in the dining room. The primary suite offers new LVP flooring, a built-in desk, mini-split, and a private bath with tile shower, built-ins, and a deep soaking tub. A second spacious bedroom with new flooring and an updated guest bath complete the upper level. Downstairs features a fully finished living space with a second mini-split, built-in desk, new flooring and access to a private hot tub patio. The lower bath includes a large tile shower and walk-in closet. The utility room adds a dog-washing station, doggie door to the approx. 2000 sq. ft. fully fenced dog run, and additional patio access. Additionally, enjoy a two-car garage with two tankless water heaters, firepit, beautiful hot tub with a privacy fence, storage shed, covered area, and RV parking with hookups.