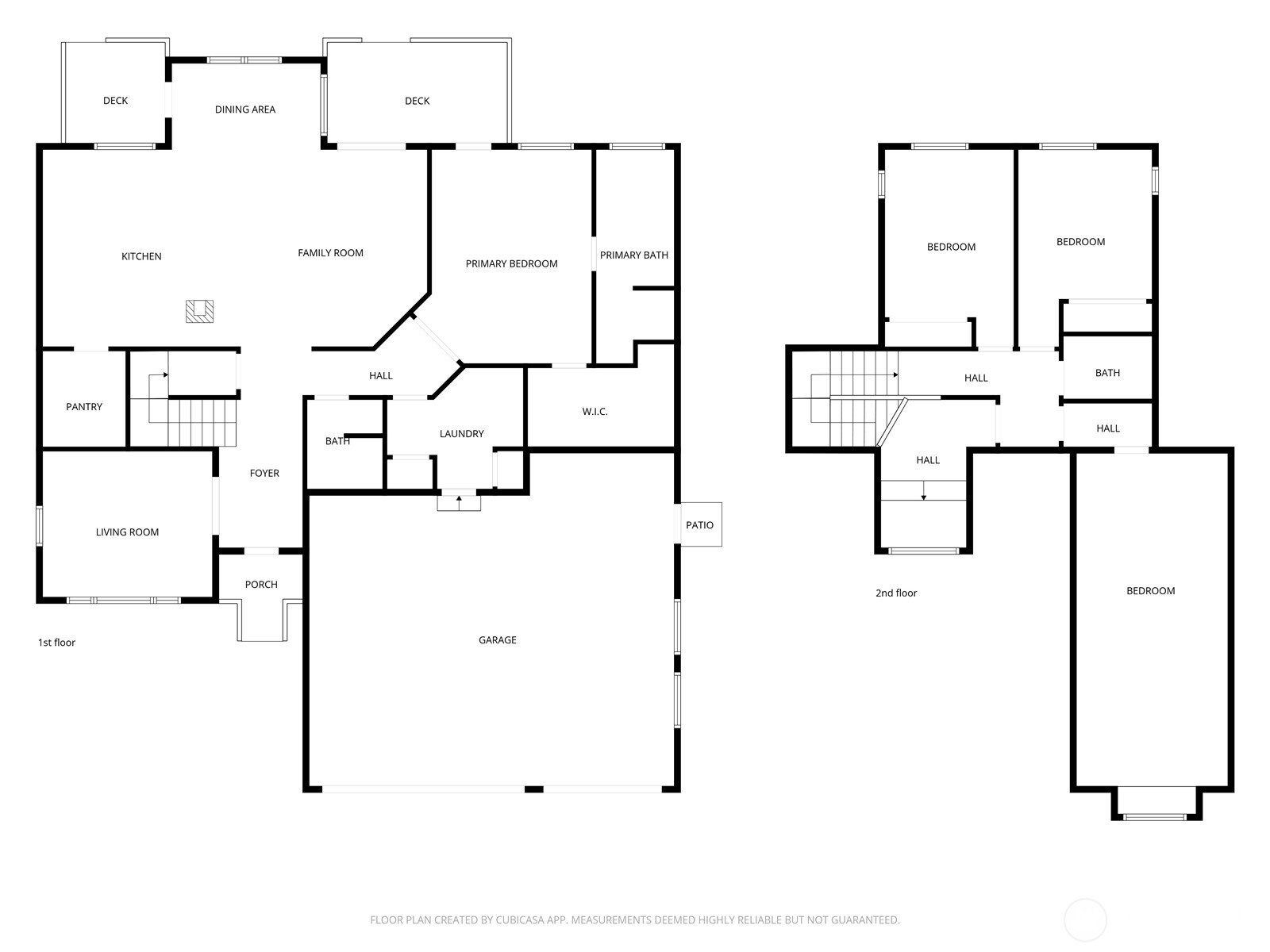
Located in desirable SE Ocean Shores, this inviting 4-bedroom, 2.75-bath home with a 3-car garage offers a well-planned layout with comfortable living spaces and flexible functionality. Just inside, a private office with French doors provides an ideal space for remote work or quiet focus. The home opens into a warm and welcoming family room, highlighted by a wood-burning fireplace, creating a cozy gathering space that connects seamlessly to the kitchen and dining area. The kitchen is designed for both everyday living and entertaining, featuring an island, updated appliances, and a temperature-controlled walk-in pantry. The primary floor also includes a convenient 3/4 bath and a dedicated laundry room. The main-floor primary suite offers LVP flooring, a walk-in closet, and an en suite bath. Upstairs includes a study nook above the stairs, a full bathroom, two additional bedrooms, and a finished extra bedroom with skylights above the garage, offering abundant natural light and versatile use. Outside, enjoy two separate entrance decks, a fully fenced yard, raised flower beds, covered wood storage, and multiple utility storage areas, making this home as practical as it is inviting.
Listing Provided Courtesy of Kaylan Forbis, Spivey Realty Group, LLC
General Information
NWM2472477
Single Family Residence
2
DOM
4
8102.16 SqFt
3
2416
2007
Grays Harbor
Ocean Shores El
North Beach Mid
North Beach Hig
Residential
Single Family Residence
Listing Provided Courtesy of Kaylan Forbis, Spivey Realty Group, LLC
Krishna Realty data last checked: Feb 22, 2026 06:07 | Listing last modified Feb 11, 2026 17:09,
Source:
Located in desirable SE Ocean Shores, this inviting 4-bedroom, 2.75-bath home with a 3-car garage offers a well-planned layout with comfortable living spaces and flexible functionality. Just inside, a private office with French doors provides an ideal space for remote work or quiet focus. The home opens into a warm and welcoming family room, highlighted by a wood-burning fireplace, creating a cozy gathering space that connects seamlessly to the kitchen and dining area. The kitchen is designed for both everyday living and entertaining, featuring an island, updated appliances, and a temperature-controlled walk-in pantry. The primary floor also includes a convenient 3/4 bath and a dedicated laundry room. The main-floor primary suite offers LVP flooring, a walk-in closet, and an en suite bath. Upstairs includes a study nook above the stairs, a full bathroom, two additional bedrooms, and a finished extra bedroom with skylights above the garage, offering abundant natural light and versatile use. Outside, enjoy two separate entrance decks, a fully fenced yard, raised flower beds, covered wood storage, and multiple utility storage areas, making this home as practical as it is inviting.